In attraktiver Lage entsteht ab Sommer 2026 eine moderne Ferienwohnanlage mit 16 exklusiven Eigentumswohnungen zwischen 40 und 84 m². Die barrierefrei erreichbaren Wohnungen überzeugen durch eine hochwertige Bauausführung, stilvolle Ausstattung und durchdachte Grundrisse für höchsten Komfort.
Highlights im Ăśberblick:
. Barrierefreie Erschließung über eine moderne Aufzugsanlage . Großzügige Balkone oder Terrassen zu jeder Wohnung . Design-Planken in edler Parkettoptik und hochwertige Malerarbeiten inklusive . Elektrische Rollläden und dreifach verglaste Wärmeschutzfenster . Fußbodenheizung in allen Räumen für angenehm gleichmäßige Wärme . Effiziente Luftwärmepumpe kombiniert mit Photovoltaikanlage und Stromspeicher . Carportanlage mit Abstellräumen sowie gemeinschaftlicher Fahrradraum . Geflieste Kellerabstellräume zu jeder Wohnung
Diese Anlage vereint moderne Technik, stilvolles Design und nachhaltige Energieeffizienz - ideal für Eigentümer, die Wert auf Qualität, Komfort und zukunftsorientiertes Wohnen legen.
Baubeginn wird im Sommer 2026 sein, die Fertigstellung ist fĂĽr FrĂĽhjahr 2028 geplant.
Merkmale
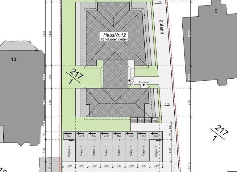
21 Stellplätze
Individuelle Ausstattungsmerkmale:
- elektrisch betriebene Rollläden - Fußbodenheizung - Aufzugsanlage ausgestattet mit Sicherheitsnotrufsystem - Fenster mit Dreifach-Wärme-Schutzverglasung - ausgewählte Fußbodenbeläge mit hochwertigen strapazierfähigen Planken in Parkettoptik - Photovoltaikanlage mit Speicher - barrierefreies Bad mit Dusche und WC
Grundrisse
Grundrisse
1 / 1
Realisiere Dein Projekt
Bausubstanz und Energie
Energieausweis
Ein Energieausweis ist für diesen Gebäudetyp nicht notwendig.
Baujahr2027
Zustand der ImmobilieMassivhaus, Erstbezug
EnergieträgerLuft-/Wasser-Wärmepumpe
Preisdetails
Kaufpreis
483300 €483.300 €
7.704,45 €/m²
Provision für Käufer
provisionsfrei; prov.frei
Geschätzte Gesamtkosten
517.132 €1
Kaufpreis
483.300 €
Kaufnebenkosten
33.832 €
2
Notarkosten (1,5%)
7.250 €
Grunderwerbsteuer (5%)
24.165 €
Grundbucheintrag (0,5%)
2.417 €
1Der angezeigte Wert ist eine automatisch berechnete Schätzung von immowelt.
2Bei den Angaben handelt es sich um ortsübliche Werte. Individuelle Kosten können abweichen.
Lage
Duhnen, Cuxhaven (27476)
Der Anbieter hat die genaue Adresse nicht freigegeben
In einer der begehrtesten Lagen der NordseekĂĽste entsteht eine hochwertige Neubau-Eigentumswohnanlage in Cuxhaven-Duhnen, nur wenige Schritte vom Deich, vom Strand und vom einzigartigen Wattenmeer entfernt. Die Immobilie vereint moderne Architektur, nachhaltige Technik und eine erstklassige Lage zu einer ebenso attraktiven Wohn- wie Kapitalanlage.