Version: 8.22.4Navigation überspringen
neuner.immo - Beratung & Verkauf
2.150.000 €
800 m² Grundstück

Grundstück zum Kauf
2150000 €
2.688 €/m²
800 m² Grundstück

Grundstück mit fertiger Projektierung

In einer sonnigen Lage von St. Johann in Tirol befindet sich dieses 800 m² große Grundstück mit Baugenehmigung für ein Einfamilienhaus, das eine Einliegerwohnung umfasst und eine beeindruckende Aussicht auf die umliegenden Berge bietet.

Planung:
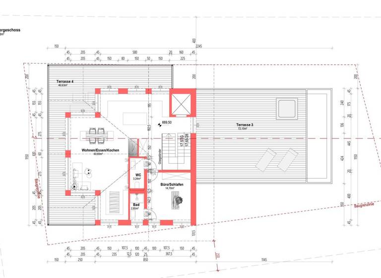
Der großzügige Wohnbereich mit Küche und Esszimmer ist im Dachgeschoss vorgesehen. Die weitläufigen Terrassen bieten Platz, um die Sonne und den atemberaubenden Blick auf den Wilden Kaiser und das Kitzbüheler Horn zu genießen. Zudem ist auf dieser Ebene ein Büro oder Schlafzimmer mit eigenem Bad geplant.

Im Erdgeschoss befindet sich der Eingangsbereich mit geräumiger Garderobe. Auf dieser Etage liegen der Masterbereich mit Bad en Suite, zwei weitere Schlafzimmer, ein zusätzliches Badezimmer sowie ein Gästebad.

Das Untergeschoss beinhaltet neben Technik- und Lagerräumen auch einen Fitnessraum mit Bad und einen Lichthof.

Die Einliegerwohnung von etwa 58 m² ist im Erdgeschoss geplant und bietet eine Wohnküche, ein Schlafzimmer mit Bad en Suite sowie ein Gäste-WC.

Die Tiefgarage bietet Platz für bis zu vier Fahrzeuge, und ein separater Abstellraum ermöglicht die Unterbringung von Sportgeräten wie Skiern und Fahrrädern.

Wohnfläche ca. 296 m²
Nutzfläche ca. 63 m²
Tiefgarage ca. 133 m²
Terrassen ca. 166 m²

Merkmale

  • 800 m² Grundstück
  • 6 Stellplätze: 2 Außen-Stellplätze, 4 Tiefgaragenstellplätze

Grundrisse

Grundrisse
1 / 3

Realisiere Dein Projekt

Bausubstanz und Energie

Der Anbieter hat keine Informationen zu Energieverbrauch oder Zustand der Immobilie bereit gestellt.

Preisdetails

Kaufpreis
2150000 €
2.687,50 €/m²
Provision für Käufer
3% zzgl. 20% Mwst. inkl. MwSt.
Weitere Preisinformationen
2 Stellplätze
4 Tiefgaragenstellplätze

Lage

address-icon
St. Johann in Tirol (6380)
Der Anbieter hat die genaue Adresse nicht freigegeben
In sonniger Lage, nahe dem Zentrum von St. Johann in Tirol, liegt dieses Grundstück mit atemberaubendem Bergblick.

Dank des breiten Talkessels gilt St. Johann in Tirol als echtes Sonnental. Die Region bietet 50 Pistenkilometer am Kitzbüheler Horn, 17 Liftanlagen, über 250 Kilometer Langlaufloipen, eine Eislaufbahn, mehr als 200 km Wanderwege zwischen Kitzbüheler Horn und Wilder Kaiser sowie über 200 km Rad- und Mountainbikewege. Zudem locken die Panorama Badewelt, Tennisplätze, ein Hochseilgarten, eine Boulderhalle und vieles mehr.

Viele Menschen bezeichnen St. Johann in Tirol als Ort mit der besten Infrastruktur für den täglichen Bedarf in der Region, einschließlich Geschäften, Ärzten, Schulen, einem Krankenhaus und vielem mehr.

Weitere Informationen

Stichworte Bundesland: Tirol

Weitere Services

Lust auf eine Besichtigung?
Eine Frage zur Immobilie?
Nachricht hinzufügen
Mit der Nutzung der oben angegebenen Telefonnummer oder durch Klicken auf „Kontaktieren“ akzeptierst Du die Allgemeinen Nutzungsbedingungen, denen Du jederzeit widersprechen kannst. Weitere Informationen zum Datenschutz

Über den Anbieter

Kaiserstraße 5, 6380 St. Johann in Tirol
partner badge
Partnerschaft
Herr Thomas NeunerDein Kontakt
Online-ID: 2k6jh5v
Referenznummer: 25-1034
neuner.immo - Beratung & Verkauf
neuner.immo - Beratung & Verkauf
Nachricht hinzufügen
Mit der Nutzung der oben angegebenen Telefonnummer oder durch Klicken auf „Kontaktieren“ akzeptierst Du die Allgemeinen Nutzungsbedingungen, denen Du jederzeit widersprechen kannst. Weitere Informationen zum Datenschutz
MediumRectangleTop
MediumRectangleTop
Wie zufrieden bist du mit dieser Seite (nicht mit der Immobilie selbst)?