

Temme Immobilien GmbH & Co. KG
Frau Ulrike Temme
091 ···
Nr. anzeigenPreise & Kosten
Provision für Käufer
Bitte beachte, das Angebot beinhaltet bei Vertragsabschluss die Zahlung einer Provision. Weitere Informationen erhältst Du vom Anbieter.
Lage
Das Objekt zeichnet sich durch seine erstklassige Lage aus, nur wenige Gehminuten vom Nürnberger Hauptbahnhof entfernt. Diese Nähe gewährleistet eine optimale Anbindung an den öffentlichen Nahverkehr, während die Distanz zum Bahnhof zugleich ein ruhiges und angenehmes Arbeitsumfeld sicherstellt. Die Nähe zur Innenstadt bietet...
Das Renditeobjekt
Kategorie
Bürogebäude
Bezug
sofort
Details
Objektbeschreibung
GRÖSSE
BÜROGEBÄUDE
Erdgeschoss ca. 409 m²
1. Obergeschoss ca. 502 m²
2. Obergeschoss ca. 500 m²
3. Obergeschoss ca. 487 m²
4. Obergeschoss ca. 360 m²
Penthouse (Bürofläche) ca. 212 m²
Penthouse (Terrasse) ca. 111 m²
GESAMT ca. 2.581 m²
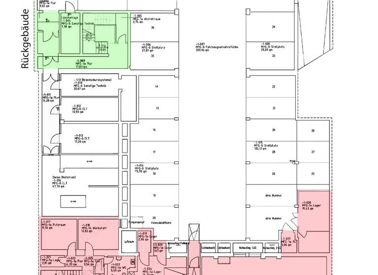
RÜCKGEBÄUDE
Erdgeschoss ca. 384 m²
GESAMT...
Ausstattung
Das Objekt erstreckt sich über 3.565 m² und bietet ein exklusives Arbeitsumfeld, das sich aus Haupt-, Seiten- und Rückgebäude zu einer beeindruckenden Einheit fügt. Die lichtdurchfluteten Räume im Hauptgebäude, ausgestattet mit eleganten Fensterfronten, schaffen eine helle und einladende Atmosphäre. Dank der geplanten...
Weitere Informationen
Sonstiges
AUFTRAGGEBER
Vertreten durch unser Büro. Wir sind vom Auftraggeber exklusiv beauftragt.
BESICHTIGUNG
Jederzeit ausschließlich über unser Büro möglich.
Telefon: 0911 548099-0 | info@temme.de
KÄUFERPROVISION
3,00 % zzgl. gesetzlicher MwSt., aus dem erzielten Kaufpreis, fällig bei...
Dokumente
Anbieter der Immobilie
Temme Immobilien GmbH & Co. KG
Am Tullnaupark 4, 90402 Nürnberg

Online-ID: 2m6nd53
Referenznummer: P128/G2
Finde Angebote wie dieses
Hier geht es zu unserem Impressum, den Allgemeinen Geschäftsbedingungen, den Hinweisen zum Datenschutz und nutzungsbasierter Online-Werbung.