Version: 8.25.1Navigation überspringen
749.000 €
1 Zimmer  •  364 m²
Immowelt logo

Laden zum Kauf • als Kapitalanlage geeignet
749000 €
1 Zimmer  •  364 m²

Langfristig vermietete Gewerbeeinheit auf 364m² in zentraler Lage von Neumarkt i. d. Opf. !

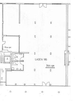
Zum Verkauf steht eine großzügige und repräsentative Gewerbeeinheit im Erdgeschoss in sehr guter Lage von Neumarkt in der Oberpfalz. Die Einheit befindet sich im Erdgeschoss eines modernen Mehrfamilienhaus und verfügt über eine Gesamtnutzfläche von ca. 364 m². Dank der ebenerdigen Lage, der guten Sichtbarkeit sowie der funktionalen Grundrissgestaltung eignet sich das Objekt ideal für Einzelhandel, Dienstleistung, Praxis oder Showroom. Die Gewerbeeinheit ist sehr gut und langfristig vermietet an einen bonitätsstarken, zuverlässigen Mieter. Damit stellt das Objekt eine äußerst solide Kapitalanlage mit stabilen und planbaren Mieteinnahmen dar.

Merkmale

  • vermietet
  • Nicht möbliert
  • 5 Geschosse
  • Barrierefrei
  • 2 WCs
  • 4 Außen-Stellplätze
  • 15 m Schaufensterfront
- Erdgeschoss-Gewerbeeinheit - ca. 364 m² Nutzfläche - Sehr gut & langfristig vermietet - Solventer Mieter - Attraktive Lage in Neumarkt - 4 optionale Kundenstellplätze - Ideale Kapitalanlage

Grundrisse

Grundrisse
1 / 1

Virtueller Rundgang

3D tour

Realisiere Dein Projekt

Bausubstanz und Energie

Energieausweis

Ein Energieausweis ist für diesen Gebäudetyp nicht notwendig.
  • Baujahr1995
  • Zustand der Immobilieneuwertig
  • HeizungsartZentralheizung: Heizkörper
Immowelt logo

Preisdetails

Kaufpreis
749000 €
Preis pro Stellplatz
15000 €
Provision für Käufer
3,57% vom Kaufpreis inkl. 19% MwSt.
Geschätzte Gesamtkosten
775.739 €1
Kaufpreis
749.000 €
Provision für Käufer (3,57%)
26.739 €
1Der angezeigte Wert ist eine automatisch berechnete Schätzung von immowelt.
2Bei den Angaben handelt es sich um ortsübliche Werte. Individuelle Kosten können abweichen.

Lage

address-icon
NeumarktNeumarkt in der Oberpfalz (92318)
Der Anbieter hat die genaue Adresse nicht freigegeben
Die Amberger Straße zählt zu den etablierten Geschäfts- und Ausfallstraßen von Neumarkt. Sehr gute Erreichbarkeit, Nähe zur Innenstadt sowie ein gewachsenes Umfeld aus Gewerbe, Handel und Dienstleistung zeichnen diesen Standort aus. Öffentliche Verkehrsmittel, Einkaufsmöglichkeiten und weitere Infrastruktur befinden sich in kurzer Entfernung.

Weitere Informationen

Weitere Objekte finden Sie auf unserer Homepage: www.seth-immobilien.de

Weitere Services

Lust auf eine Besichtigung?
Eine Frage zur Immobilie?
Nachricht hinzufügen
Mit der Nutzung der oben angegebenen Telefonnummer oder durch Klicken auf „Kontaktieren“ akzeptierst Du die Allgemeinen Nutzungsbedingungen, denen Du jederzeit widersprechen kannst. Weitere Informationen zum Datenschutz

Über den Anbieter

Schwabenstr. 16, 90518 Atldorf
partner badge
Partnerschaft
Herr T. SethDein Kontakt
Online-ID: 26YBTFC2TW3U
Referenznummer: VG-26006
Seth Immobilien
Seth Immobilien
Nachricht hinzufügen
Mit der Nutzung der oben angegebenen Telefonnummer oder durch Klicken auf „Kontaktieren“ akzeptierst Du die Allgemeinen Nutzungsbedingungen, denen Du jederzeit widersprechen kannst. Weitere Informationen zum Datenschutz
Wie zufrieden bist du mit dieser Seite (nicht mit der Immobilie selbst)?