Version: 8.25.1Navigation überspringen
1.200 €
3 Zimmer  •  72 m²  •  22. Geschoss  •  frei ab sofort
Immowelt logo

Wohnung zur Miete
1.200 €
3 Zimmer  •  72 m²  •  22. Geschoss  •  frei ab sofort

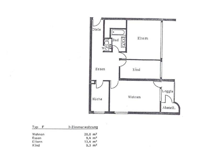
Drei Zimmer Wohnung

Das angebotene Hochhauskonzept befindet sich in einem
Groß-Parteienhaus aus dem Jahre 1974. Die
Die Wohnung besteht 3 Zimmern, Küche, Diele, Bad/ WC.
einem Balkon

Merkmale

  • frei ab sofort
  • 22. Geschoss
  • Personenaufzug
  • Badewanne
  • Bodenbelag: Kunststoff
  • Balkon
  • Fernblick
Das Haus verfügt über 2 Aufzüge.
Heizung: Fernwärme
Befeuerungsart: Fernwärme
Energieausweistyp:
Verbrauchsausweis - gültig vom 06.10.2017 bis
05.10.2027
Energieeffizienz-Klasse: F
Energieverbrauchs-Kennwert: 177 kWh/(m2*a)
Energieverb. Warmwasser enthalten: ja
Baujahr laut Energieausweis: 1974

Grundrisse

Grundrisse
1 / 2

Realisiere Dein Projekt

Bausubstanz und Energie

Energieausweis

F
  • Baujahr1974
  • Zustand der Immobilierenoviert / saniert
  • EnergieträgerFernwärme
Immowelt logo

Mietkosten

Warmmiete
1.450 €
Kaltmiete
16,67 €/m²
1.200 €
Nebenkosten
150 €
Heizkosten
100 €
Kaution
3.600,00 3600

Lage

address-icon
An der Fuhr 5Meschenichköln (50997)
Der Ort Meschenich ist vorgelagert vor Köln, in einer noch
ländlichen Umgebung. Das in Stadt und Umgebung bekannte
Haus. Fußläufig erreichen Sie alle Einkaufsmöglichkeiten.
Grundschule und Kindergärten in der Nähe Geschäfte des täglichen Bedarfs, Ärzte, Jugendzentrum - alles fußläufig
erreichbar. Bushaltestelle nach Rondorf- Rodenkirchen, sowie in
die Innenstadt. Zahlreiche Sportarten werden im Ort angeboten
und ansonsten in Rondorf 2 km .z.B. Tennis, Basketball u. v .m.
Reiten und Golf sowie diverse Wasser- und
Freizeitmöglichkeiten,werden vielseitig in unmittelbarer Nähe in
Rodenkirchen oder
Brühl angeboten, Baggerseen in unmittelbarer Nähe. Viel
Natur. Naherholungsmöglichkeiten Nach Brühl sind es ca. 2-3 km.
Sehr
gute Autobahnanbindung, in wenigen Minuten erreichbar,
Flughafen Köln-Bonn ca. 20-25 Minuten, Düsseldorf ca. 45
Minuten, die Kölner Innenstadt /Rodenkirchen. Nach
Rodenkirchen am Rhein mit seinen exklusiven Geschäften, guten
Restaurants, Biergärten, vielseitige Schulformen, sind es nur 6-7
km. Von hier aus weitere gute Verkehrsanbindung in alle
Richtungen

Weitere Informationen

Sonstiges Alle Angaben in diesem Exposé wurden sorgfältig und so
vollständig wie möglich gemacht. Gleichwohl kann das
Vorhandensein von Fehlern nicht ausgeschlossen werden. Die
Angaben in diesem Exposé erfolgen daher ohne jede Gewähr.
Maßgeblich sind die im Mietvertrag geschlossenen
Vereinbarungen. Soweit die Grundrissgrafiken Maßangaben und
Einrichtungen enthalten, wird auch für diese jegliche Haftung
ausgeschlossen. Mietpreisänderungen bleiben vorbehalten.
bei Weitergabe unseres Exposés an Dritte Provisions- bzw.
Schadenersatzansprüche geltend zu machen. Wir weisen auf
unsere Allgemeinen Geschäftsbedingungen der Bilhan Öz
Immobilien hin, diese finden Sie ausführlich auf unserer
Homepage www.immobilien-oez.de Stichworte Anzahl der Schlafzimmer: 2, Anzahl der Badezimmer: 1, Anzahl Balkone: 1, 26 Etagen, modernisiert: 2026

Weitere Services

Lust auf eine Besichtigung?
Eine Frage zur Immobilie?
Mit einer persönlichen Nachricht hast du bessere Chancen auf eine Antwort.
Mit der Nutzung der oben angegebenen Telefonnummer oder durch Klicken auf „Kontaktieren“ akzeptierst Du die Allgemeinen Nutzungsbedingungen, denen Du jederzeit widersprechen kannst. Weitere Informationen zum Datenschutz

Über den Anbieter

Aloeweg 18, 51109 Köln
partner badge
10 Jahre Partnerschaft
Herr Öz Bilhan
Herr Öz BilhanDein Kontakt

Weitere Unterlagen

Online-ID: 26EKWCCZ7M5L
Referenznummer: 300050
Bilhan Öz Immobilien
title
Bilhan Öz Immobilien
Bewertung: 4,9 von 5 Sternen
Mit einer persönlichen Nachricht hast du bessere Chancen auf eine Antwort.
Mit der Nutzung der oben angegebenen Telefonnummer oder durch Klicken auf „Kontaktieren“ akzeptierst Du die Allgemeinen Nutzungsbedingungen, denen Du jederzeit widersprechen kannst. Weitere Informationen zum Datenschutz
Wie zufrieden bist du mit dieser Seite (nicht mit der Immobilie selbst)?