Version: 8.25.1Navigation überspringen
ohne-makler.net - Immobilien selbst vermarkten
Preis auf Anfrage
525 m² Lagerfläche

Lagerhalle zum Kauf • provisionsfrei
525 m² Lagerfläche

Produktionshalle mit einem Portalkran auf einem großem Grundstück

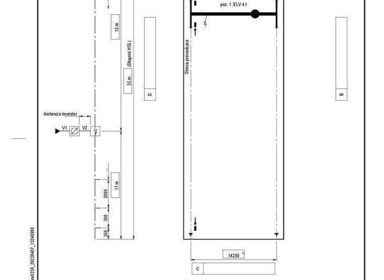
Eine Produktionshalle, Rohbau:
.35 m x 15 m x 5 m
.Dachneigung 20 Grad.
.Ein Portalkran mit einer Tragfähigkeit von 3,2 t (Zone 2) bereits montiert.
.Seitenstützen sowie Dachträger aus Doppel-T-Trägern und Fachwerken gefertigt.
.Stahlkonstruktion aus geschweißten Hochleistungsstahlelementen
.KORROSIONSSCHUTZ: Stahlkonstruktion mit Polyurethanfarbe gestrichen. Stärke der Farbschicht bis zu 100 Mikrometer.
.Feuerverzinkte Dachpfetten aus hochfestem Stahlprofil
.Wand-Sandwichpaneele mit PIR-Polyurethanfüllung
.Isolierungsstärke 120 mm
.Feuerwiderstand NRO / EI 15
.Dachrinnen und Fallrohre aus beschichtetem Stahl, Rinnenmaß 150 mm, Fallrohr 100 mm
.2 Segmenttore mit einer Breite von 4,00 m x 4,00 m. Hergestellt aus Sandwichplatten mit einer Stärke von 45 mm mit einem Kern aus schwer entflammbarer Polyurethanschaum. Die äußeren Verkleidungen des Segments bestehen aus feuerverzinktem und lackiertem Blech.
.2 Vollstahl-Einschlagtüren mit einem Flügel Breite 0,9 m x 2,0 m.
.Firstlicht-Dachkuppel, kuppelförmig mit einer Breite von 2 m und einer Länge von 25 m (Polycarbonat 16 mm).

Merkmale

  • Bezug: sofort
  • 165.770.000 m² Grundstück
Bemerkungen:
Portalkran Firma ABUS, montiert, Zustand Neu

Grundrisse

Grundrisse
1 / 3

Realisiere Dein Projekt

Bausubstanz und Energie

Möchtest du Details zum Energieverbrauch?info_energy_calculation-icon
  • Baujahr2025
MediumRectangleTop

Preisdetails

Provision für Käufer
provisionsfrei; keine Provision, courtagefrei

Lage

address-icon
Kozielice (74-204)
Der Anbieter hat die genaue Adresse nicht freigegeben
Das Grundstück mit einer Fläche von 1,6577 ha in der Nähe des Knotens Pyrzyce und Kozielice. Bei Bedarf kann das Grundstück auch geteilt werden.

Weitere Informationen

Sonstiges Heizungsart: Sonstiges (s. Text)


ohne-makler (OM) ist weder Anbieter noch Vermittler der Immobilie. OM betreibt eine Plattform für Immobilieneigentümer, die unter anderem die gleichzeitige Veröffentlichung einzelner Inserate auf mehreren Immobilienportalen ermöglicht. Die Inhalte dieser Inserate werden ausschließlich von Dritten verantwortet. Für die Richtigkeit, Vollständigkeit oder Rechtmäßigkeit der Angaben übernimmt OM keine Haftung. Hinweise auf mögliche Rechtsverstöße können jederzeit gemeldet werden und werden nach Prüfung umgehend bearbeitet. Stichworte Lagerfläche: 525,00 m², Gesamtfläche: 165.770.000,00 m², Freifläche: 165.769.475,00 m², Bundesland: Westpommern [Zachodniopomorskie], 1 Etagen

Weitere Services

Lust auf eine Besichtigung?
Eine Frage zur Immobilie?
Nachricht hinzufügen
Mit der Nutzung der oben angegebenen Telefonnummer oder durch Klicken auf „Kontaktieren“ akzeptierst Du die Allgemeinen Nutzungsbedingungen, denen Du jederzeit widersprechen kannst. Weitere Informationen zum Datenschutz

Über den Anbieter

Humboldtstr. 25 A, 21509 Glinde
partner badge
Partnerschaft
Angebot vom EigentümerDein Kontakt
Keine Telefonnummer hinterlegt
Keine Telefonnummer hinterlegt

Weitere Unterlagen

Online-ID: 2632166T7F74
Referenznummer: 436887
ohne-makler.net - Immobilien selbst vermarkten
ohne-makler.net - Immobilien selbst vermarkten
Nachricht hinzufügen
Mit der Nutzung der oben angegebenen Telefonnummer oder durch Klicken auf „Kontaktieren“ akzeptierst Du die Allgemeinen Nutzungsbedingungen, denen Du jederzeit widersprechen kannst. Weitere Informationen zum Datenschutz
MediumRectangleTop
MediumRectangleBottom
MediumRectangleTop
Wie zufrieden bist du mit dieser Seite (nicht mit der Immobilie selbst)?