Version: 8.25.1Navigation überspringen
McMakler GmbH
649.000 €
7 Zimmer  •  208 m²  •  890 m² Grundstück

Einfamilienhaus zum Kauf
649000 €
3.120 €/m²
7 Zimmer  •  208 m²  •  890 m² Grundstück

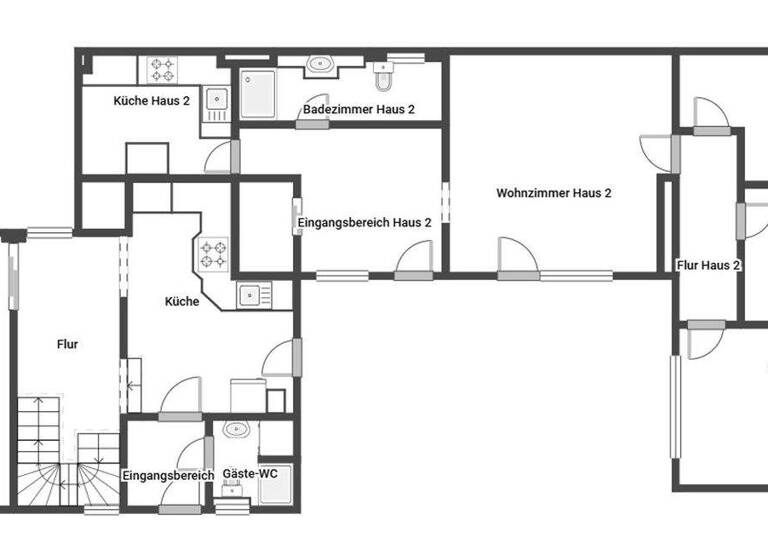
Ein Haus - Zwei Möglichkeiten Einfamilienhaus mit separatem Anbau

Objektnr: 1070200

Ihre Suche nach dem idealen Zuhause findet hier ein Ende.
Diese Immobilie bietet ein außergewöhnlich flexibles Wohnkonzept und richtet sich ideal an Familien und Mehrgenerationenhaushalte. In ruhiger Feldrandlage von Norderstedt verbindet das Objekt naturnahes Wohnen mit vielseitigen Nutzungsmöglichkeiten.

Das Haus besteht aus zwei vollständig voneinander getrennten Wohneinheiten, die jeweils über eigene Eingänge verfügen: Somit besteht auch die Möglichkeit einer Teilvermietung.

Haupthaus: ca. 112 m² Wohnfläche mit 3 Zimmern

Anbau Baujahr 2001: ca. 96 m² Wohnfläche mit 4 Zimmern

Das Haupthaus eignet sich ideal als Hauptwohnbereich. Es bietet großzügige Wohn- und Schlafräume, ein Badezimmer sowie ein separates Gäste-WC. Ein Kaminofen schafft eine angenehme, wohnliche Atmosphäre und unterstreicht den gemütlichen Charakter dieser Einheit.

Der separat zugängliche Anbau stellt eine eigenständige Wohneinheit mit eigener Küche und Badezimmer dar. Mit seinen 4 Zimmern eignet er sich hervorragend als Einliegerwohnung, für Mehrgenerationenhaushalte, zur Teilvermietung, für Gäste oder als separater Homeoffice- und Arbeitsbereich.

Das ca. 890 m² große Grundstück bietet viel Raum für Erholung im Freien. Der Garten mit Teich ist übersichtlich angelegt und lädt zu entspannten Stunden, Spiel und geselligem Beisammensein ein - bei gleichzeitig überschaubarem Pflegeaufwand.

Zusätzlichen Stauraum bietet der Keller. Für Fahrzeuge stehen zwei Carportstellplätze sowie eine separate Garage zur Verfügung. Die Immobilie wurde zuletzt im Jahr 2001 instandgesetzt und befindet sich in einem dem Baujahr entsprechenden Zustand - eine solide Basis für individuelle Modernisierungen.

Merkmale

  • Bezug: nach Absprache
  • 890 m² Grundstück
  • Einbauküche
  • Badezimmer: Badewanne, Bad mit Dusche
  • Gäste-WC
  • Keller
  • Garten
  • 3 Stellplätze
+ Zwei separat zugängliche Wohneinheiten
+ Fußbodenheizung im EG des Haupthauses
+ Entspannung im Freien: Der große Garten inkl. Teich auf ca. 890 m² übersichtlichem Grund lädt zum Verweilen ein
+ Stellplatzmöglichkeiten in Form von 2 Carports und einer Garage

Grundrisse

Grundrisse
1 / 2

Realisiere Dein Projekt

Bausubstanz und Energie

Energieausweis

B
  • Baujahr1978
  • EnergieträgerGas
MediumRectangleTop

Preisdetails

Kaufpreis
649000 €
3.120,19 €/m²
Provision für Käufer
Die Provision i.H.v. 3,57 % inkl. MwSt. ist mit Kaufvertragsbeurkundung fällig, sofern der Verkaufspreis über 83.000,00 € liegt.

Liegt der Verkaufspreis dagegen bei/unter 83. Weitere Informationen siehe Provisionshinweis.
Geschätzte Gesamtkosten
704.230 €1
Kaufpreis
649.000 €
Notarkosten (1,5%)
9.735 €
Grunderwerbsteuer (6,5%)
42.185 €
Provision für Käufer (0,01%)
65 €
Grundbucheintrag (0,5%)
3.245 €
1Der angezeigte Wert ist eine automatisch berechnete Schätzung von immowelt.
2Bei den Angaben handelt es sich um ortsübliche Werte. Individuelle Kosten können abweichen.

Lage

address-icon
HarksheideNorderstedt (22844)
Der Anbieter hat die genaue Adresse nicht freigegeben
Lage: Frische Luft dank Feldrandlage - ideal für einen naturnahen Lebensstil
Bildung und Betreuung: Top-Lage: Schule und Kindergarten in max. 800 m Entfernung
Nahversorgung: Anlaufstellen schnell erreicht: Supermarkt, Apotheke und Postfiliale in max. ca. 800 m
Anbindung: Gut erreichbar: Bushaltestelle, Bahnhof und Autobahn

Weitere Informationen

Provisionshinweis Die Provision i.H.v. 3,57 % inkl. MwSt. ist mit Kaufvertragsbeurkundung fällig, sofern der Verkaufspreis über 83.000,00 € liegt.

Liegt der Verkaufspreis dagegen bei/unter 83.000,00 €, ist die fest vereinbarte Mindestprovision i.H.v. mind. 5.950,00 € inkl. MwSt. mit Kaufvertragsbeurkundung fällig. Die Mindestprovision fällt insg. nur einmal an, wodurch Verkäufer und Käufer die Mindestprovision dann jeweils mit 2.975,00 € inkl. MwSt. tragen. Sonstiges Vereinbaren Sie noch heute einen Besichtigungstermin!
_____________________________________________________

Alle Angaben sind ohne Gewähr und basieren ausschließlich auf Informationen, die uns von unserem Auftraggeber zur Verfügung gestellt wurden. Wir übernehmen keine Gewähr für die Vollständigkeit, Richtigkeit und Aktualität der Angaben. Stichworte Gesamtfläche: 205,00 m², Anzahl der Schlafzimmer: 2, Anzahl der Badezimmer: 2, 1 Etagen, modernisiert: 2001 Sonstiges/Wohnen: Einliegerwohnung

Weitere Services

Lust auf eine Besichtigung?
Eine Frage zur Immobilie?
Nachricht hinzufügen
Mit der Nutzung der oben angegebenen Telefonnummer oder durch Klicken auf „Kontaktieren“ akzeptierst Du die Allgemeinen Nutzungsbedingungen, denen Du jederzeit widersprechen kannst. Weitere Informationen zum Datenschutz

Über den Anbieter

Am Postbahnhof 17, 10243 Berlin
Ihr McMakler TeamDein Kontakt
Online-ID: 26JPTEFFD3LN
Referenznummer: 89af2c5fb6
McMakler GmbH
McMakler GmbH
Nachricht hinzufügen
Mit der Nutzung der oben angegebenen Telefonnummer oder durch Klicken auf „Kontaktieren“ akzeptierst Du die Allgemeinen Nutzungsbedingungen, denen Du jederzeit widersprechen kannst. Weitere Informationen zum Datenschutz
MediumRectangleTop
MediumRectangleBottom
MediumRectangleTop
Wie zufrieden bist du mit dieser Seite (nicht mit der Immobilie selbst)?