Weitere Informationen
Sonstiges
Der Text wurde ins Deutsche mithilfe einer automatischen Software übersetzt und es ist möglich, dass er einige Ungenauigkeiten enthält. Für eine korrekte Beschreibung und aktuelle Informationen zur Immobilie wenden Sie sich bitte an unseren Makler!
Wir bieten eine Maisonette-Wohnung in einem neu errichteten Wohngebäude zum Vorzugspreis an. Das Gebäude ist einzigartig - ein Mehrfamilienhaus mit Wohnungen in einer Anlage, die ausschließlich mit Häusern bebaut ist und sich am Fuße des Witoscha-Gebirges befindet.
VOR AKT 16!
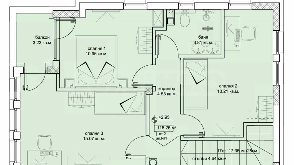
Die Wohnung erstreckt sich über zwei Ebenen mit einer Gesamtfläche von 142,47 m² (Nettofläche 116,26 m² + Gemeinschaftsflächen 26,21 m²) und besteht aus einer Eingangshalle, einem Wohnzimmer mit Kochnische, 3 Schlafzimmern, zwei Badezimmern mit WC und zwei Balkonen.
Der Komplex verfügt über einen Supermarkt, ein Restaurant, einen Autoservice und weitere Annehmlichkeiten. Ein Schwimmbad befindet sich in der Nähe, und der Studena-Staudamm sowie der Beginn der Ökowanderwege im Vitosha-Naturpark sind gut erreichbar.
Der größte Vorteil des Standorts ist die saubere Luft in der Gegend und die schnelle Anbindung an die Hauptstadt.
Das Wohngebäude besteht aus insgesamt 10 Wohnungen verschiedener Art, Kellergeschossen, einem Ladenlokal und Tiefgaragen.
Im ersten Stock befinden sich das Geschäft, die ersten Stockwerke zweier Maisonette-Wohnungen und zweier Dreizimmerwohnungen.
Im zweiten Stock befinden sich die zweiten Etagen der Maisonette-Wohnungen sowie eine Einzimmerwohnung und zwei Zweizimmerwohnungen.
Im dritten Stock befinden sich zwei Zweizimmerwohnungen und die erste Etage einer Maisonette-Wohnung.
Im vierten Stock befindet sich die zweite Ebene der Maisonette-Wohnung.
Die Wohnungen werden gemäß den bulgarischen Baustandards in folgendem Fertigstellungsgrad vermietet:
? Wohnzimmer - Wände und Decken - Feinputz (Turbosol), Boden - Zementestrich;
? Küche und Esszimmer - Wände und Decken - Feinputz (Turbosol), unter Zementestrich, Kalt- und Warmwasseranschlüsse mit Stöpseln, Abfluss für Schmutzwasser;
? Schlafzimmer - Wände und Decken - Feinputz (Turbosol), unter Zementestrich;
? Flure und Korridore - Wände und Decken - Feinputz (Turbosol), unter Zementestrich;
? Schränke und Badezimmer - Boden - Zementestrich, Wände und Decken - Putz, Kalt- und Warmwasseranschlüsse für Waschbecken und Dusche mit Stöpseln, Schmutzabfluss für Waschbecken, Dusche und Toilette im Badezimmer;
? Terrassen - Boden - Granitfliesen und Entwässerung in Rinnen, installiertes Geländer, Wandbeleuchtung.
Technische Merkmale:
? Mauerwerk - Außenwände - Ziegel, Innenwände - Ziegel;
? Eingangstür - Metalltür mit Metallbeschlägen und einem Geheimschloss;
? Fenster - PVC-Fenster - Öffnung nach Ausführung, außenliegende Fensterbänke;
? Elektroinstallation - elektrische Verteileranlage in den Wohnungen, Verkabelung gemäß Projekt;
? Sanitärinstallation - aus Polypropylen- und PVC-Rohren, mit installiertem Kaltwasserzähler, einem Wasserversorgungssystem und einem gemäß Projekt errichteten Abwasserkanal, ohne Installation von Sanitäreinrichtungen;
? Internet ? Verkabelung zu einer Steckdose;
? Kabelinstallation - Kabelfernsehanschluss an Buchse;
? Installation von Gegensprechanlagen und Türklingeln;
? Treppen und Treppenabsätze - unter Hartbodenbelag, Wänden und Decken, Feinputz, Latex, Elektroinstallation mit Schaltern und Leuchten gemäß Projekt; Hauptverteilerkasten gemäß Plan mit Metallschrank; Eingangstür zum Treppenhaus - Aluminium; Gegensprechanlage am Eingang; Briefkästen;
? Fassade - Wärmedämmung von außen, farbiger Polymerputz, PVC-Fenster, Fensterbänke;
? Vertikale Anordnung - gebaut mit Gassen, Zufahrtsstraßen, Gehwegen - Basaltziegeln.
Besichtigungen
Wir können eine Besichtigung der Immobilie zu einer für Sie passenden Zeit vereinbaren. Bitte kontaktieren Sie den für dieses Angebot zuständigen Makler und teilen Sie ihm die von Ihnen gewünschte Uhrzeit mit.
Reservierung der Immobilie
Gegen eine nicht erstattete Anzahlung in Höhe von 2.000 Euro wird die Immobilie reserviert. Weitere Besichtigungen mit anderen Käufern finden nicht statt und Makler beginnt mit der Vorbereitung der Dokumente für den Abschluss des endgültigen Vertrags für Eigentumsübertragung. Bitte kontaktieren Sie den zuständigen Makler für mehr Information über den Kauf einer Immobilie und Zahlungsarten.
Zusatzleistungen und Kundendienst
Wir sind ein seriöses Unternehmen und werden nicht nur während des Kaufs, sondern auch danach bei Ihnen sein und Ihnen auf Ihren Wunsch zusätzliche Dienstleistungen anbieten, um die neu gekaufte Immobilie vollständig und nahtlos zu nutzen. Die Dienstleistungen, die wir anbieten können, umfassen die Erlangung einer Hypothekengenehmigung, eine Versicherung für bewegliche und unbewegliche Sachen, eine Lebensversicherung, eine Kranken- und Autoversicherung, Bau- und Reparaturaktivitäten, Möbel, Rechts- und Buchhaltungsdienstleistungen usw.
Bei uns können Sie nicht nur eine Immobilie mieten, sondern auch eine Reihe von Zusatzleistungen in Anspruch nehmen. Wir können Versicherungen für bewegliches und unbewegliches Vermögen, Lebensversicherungen, Kranken- und Kfz-Versicherungen, Bau- und Reparaturarbeiten, Möbel, Rechts- und Buchhaltungsdienstleistungen usw. anbieten.
Stichworte
Lage im Bau: rechts vorne