Mehrfamilienhaus zum Kauf789000 €1.822 €/m²20 Zimmer • 433 m² • 488 m² Grundstück
789000 €
1.822 €/m²
20 Zimmer • 433 m² • 488 m² Grundstück
Vollvermietetes MFH | 8 WE | 6,1% Rendite | Wuppertal-Oberbarmen
Merkmale
- vermietet
- 488 m² Grundstück
- Keller
- Terrasse
- 6 Stellplätze: 6 Garagen
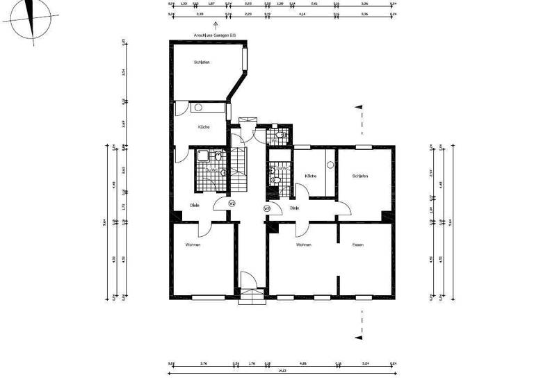
Grundrisse
Grundrisse
1 / 8
Bausubstanz und Energie
Energieausweis
E
- Baujahr1920
- Zustand der Immobilierenoviert / saniert
- HeizungsartEtagenheizung
- EnergieträgerElektro, Gas
Preisdetails
Kaufpreis
789000 €
1.822,30 €/m²
Provision für Käufer
4,76% inkl. Umsatzsteuer vom notariell beurkundeten Kaufpreis zzgl. MwSt.
Weitere Preisinformationen
6 Garagenstellplätze
Ist-Mieteinnahmen pro Jahr: 48.117,00 EUR
Ist-Mieteinnahmen pro Jahr: 48.117,00 EUR
Geschätzte Gesamtkosten
884.232 €1
Kaufpreis
789.000 €
Kaufnebenkosten
95.232 €
2Notarkosten (1,5%)
11.835 €
Grunderwerbsteuer (6,5%)
51.285 €
Provision für Käufer (3,57%)
28.167 €
Grundbucheintrag (0,5%)
3.945 €
1Der angezeigte Wert ist eine automatisch berechnete Schätzung von immowelt.
2Bei den Angaben handelt es sich um ortsübliche Werte. Individuelle Kosten können abweichen.
Lage

Barmen, Wuppertal (42277)
Der Anbieter hat die genaue Adresse nicht freigegeben
Weitere Informationen
Weitere Services
Lust auf eine Besichtigung?
Eine Frage zur Immobilie?
Über den Anbieter
Alte Eisenstraße 23-25, 57258 Freudenberg
Partnerschaft
Herr Lars MartinDein Kontakt
Online-ID: 263WHZ9G287J
Referenznummer: 194
Wie zufrieden bist du mit dieser Seite (nicht mit der Immobilie selbst)?
