

RAUM.SIEBEN Immobilien GmbH
Herr Alexander Konstanz
+49 ···
Nr. anzeigenPreise & Kosten
Provision für Käufer
provisionsfrei
Lage
Allgemeine Standortdaten & Demografie: Die Große Kreisstadt Lahr (Ortenaukreis) verzeichnet aktuell eine Einwohnerzahl von ca. 50.000. Die demografische Entwicklung ist in den letzten Jahren positiv, getrieben durch Zuzug und die wirtschaftliche Attraktivität der Region. Lahr fungiert als Mittelzentrum mit oberzentralen...
Die Wohnung
Wohnungslage
1. Geschoss
Bezug
sofort
Wohnanlage
Energie & Heizung
Warum sehe ich diese Anzeige? – Du siehst diese Anzeige basierend auf Ihrer Navigation auf unserer Website und den Suchkriterien, die du verwendet hast.
Energieausweistyp
Bedarfsausweis
Gebäudetyp
Wohngebäude
Wesentliche Energieträger
Erdgas schwer
Gültigkeit
bis 28.02.2035
Effizienzklasse
E
Endenergiebedarf
130,37 kWh/(m²·a)
Weitere Energiedaten
Heizungsart
Zentralheizung
Details
Objektbeschreibung
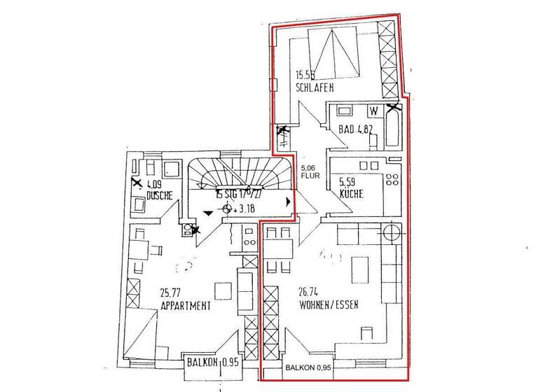
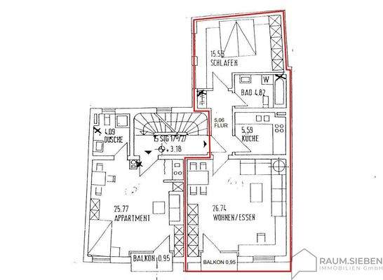
Die praktische 2-Zimmerwohnung befindet sich im 1. OG eines gepflegten Mehrfamilienhauses direkt im Zentrum von 77933 Lahr.
Die Wohnfläche beträgt ca. 58 qm und verteilt sich auf geräumigen Wohn-/ Essbereich, Schlafzimmer, Küche, Bad und Balkon (vom Wohnzimmer begehbar). Die Wohnung ist leerstehend. Sie wurde über die...
Weitere Informationen
Sonstiges
Finanzierung
Sollten Sie Fragen zur Finanzierung Ihrer Wunschimmobilie haben, so sprechen Sie uns bitte an. Gerne stellen wir für Sie einen Kontakt zu unseren kompetenten Finanzierungs- und Bankpartnern her.
Haftungsbeschränkung
Wir weisen darauf hin, dass die von uns weitergegebenen...
Anbieter der Immobilie
RAUM.SIEBEN Immobilien GmbH
Wassergartenstraße 22, 77972 Mahlberg

Online-ID: 2m9as5n
Referenznummer: 2025027
Finde Angebote wie dieses
Hier geht es zu unserem Impressum, den Allgemeinen Geschäftsbedingungen, den Hinweisen zum Datenschutz und nutzungsbasierter Online-Werbung.