
Immoconsult-Kreis Pinneberg
Frau Grit Krüger
041 ···
Nr. anzeigenPreise & Kosten
zzgl. Nebenkosten
Kaution
14.964,00
Provision für Mieter
3 Monats-Nettomieten der im
Gewerbeflächenmietvertrag vertraglich
vereinbarten Monats-Netto-Kaltmiete
exklusive Mwst.
Warum sehe ich diese Anzeige? – Du siehst diese Anzeige basierend auf Ihrer Navigation auf unserer Website und den Suchkriterien, die du verwendet hast.
Lage
Pinneberg (niederdeutsch Pinnbarg) ist die Kreisstadt des gleichnamigen
Kreises in Holstein;[2] Sitz der Kreisverwaltung ist seit 2011 allerdings das
benachbarte Elmshorn. Pinneberg gehört zum Bundesland Schleswig-Holstein
und liegt in der Metropolregion Hamburg.
Pinneberg liegt etwa 18 Kilometer...
Die Industriefläche
Bezug
sofort
Energie & Heizung
Warum sehe ich diese Anzeige? – Du siehst diese Anzeige basierend auf Ihrer Navigation auf unserer Website und den Suchkriterien, die du verwendet hast.
Weitere Energiedaten
Energieträger
Gas
Details
Objektbeschreibung
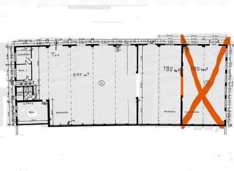
Angeboten wird eine große und helle dreiteilige Gewerbehalle mit einer Fläche von ca. 860 m². Zur Vermietung steht entweder die Gesamthalle oder Teilstücke von 180 bis 500 m², die auch unabhängig voneinander einzeln angemietet werden können.
Der erste Hallenteil von ca. 500 m² besitzt einen WC-Trakt mit 2 separaten WCs...
Ausstattung
- inklusive 3 feste Kfz-Stellplätze (weitere auf Anfrage möglich)
- beheizbar durch Gas-Warmluftheizung
- Starkstrom vorhanden
- 3 separate Außeneingänge durch Sektionaltore
- 3 separate Räume (für Büro, Kaffeeküche, Abstellraum, etc. nutzbar)
- Toilettenraum mit 2 getrennten WCs und großem Waschbecken
-...
Weitere Informationen
Besichtigungstermine
nach Vereinbarung
Stichworte
Serviceleistungen: Hausmeister
Sonstiges: ISDN, EDV-Verkabelung, Kabelkanäle, Getrennte Damen- und Herren-WCs
Anbieter der Immobilie
Immoconsult-Kreis Pinneberg
Ohlekamp 37, 25373 Ellerhoop
Online-ID: 2kkel5n
Finde Angebote wie dieses
Hier geht es zu unserem Impressum, den Allgemeinen Geschäftsbedingungen, den Hinweisen zum Datenschutz und nutzungsbasierter Online-Werbung.