Dieses Reihenmittelhaus auf einen ca. 199 m² großen Eigentumsgrundstück lässt viel Raum für individuelle Gestaltung und ist ideal für eine handwerklich begabte Familie, die sich hier Ihre neuen Träume erfüllt.
Auf einer Wohnfläche von ca. 114 m² verteilen sich 5 Zimmer, eine Küche, ein Bad, sowie ein Gäste-WC und bietet ausreichend Platz für Familien oder Paare. Das Haus ist voll unterkellert und verfügt ebenfalls über einen fast vollständig ausgebauten Dachboden.
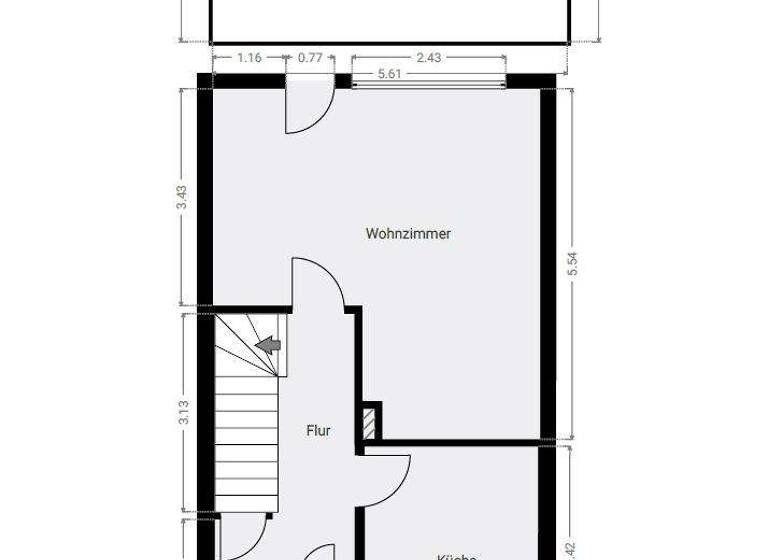
Über den Wohn- und Essbereich können Sie auf die Terrasse und in den kleinen Garten.
Eine Garage gehört ebenfalls dazu und befindet sich auf dem gegenüberliegenden Garagenhof.
Die Immobilie befindet sich in einem nicht mehr zeitgemäßen Zustand und erfordert einige Sanierungs- und Renovierungsmaßnahmen. Dafür bietet sich jedoch die ideale Grundlage, um ein individuelles Zuhause nach eigenen Wünschen und Vorstellungen zu schaffen.
Wir haben Ihre Interesse geweckt? Dann freuen wir uns auf Ihre Anfrage!
Merkmale
Bezug: sofort!
199 m² Grundstück
Einbauküche
Keller
Garage
Terrasse
Waschraum
- 199 m² Eigentumsgrundstück
- Teilausbau Dachboden
- Fenster Gartenseite überwiegend aus 2022/2023
- Voll unterkellert
- Garage (jährliche Umlage von 120 €)
Grundrisse
Grundrisse
1 / 4
Realisiere Dein Projekt
Bausubstanz und Energie
Energieausweis
F
Baujahr1961
Zustand der Immobilierenovierungsbedürftig / sanierungsbedürftig
EnergieträgerGas
Preisdetails
Kaufpreis
160000 €160.000 €
1.402,16 €/m²
Provision für Käufer
3,57 % inkl. MwSt.
Weitere Preisinformationen
1 Garagenstellplatz
Geschätzte Gesamtkosten
176.912 €1
Kaufpreis
160.000 €
Kaufnebenkosten
16.912 €
2
Notarkosten (1,5%)
2.400 €
Grunderwerbsteuer (5%)
8.000 €
Provision für Käufer (3,57%)
5.712 €
Grundbucheintrag (0,5%)
800 €
1Der angezeigte Wert ist eine automatisch berechnete Schätzung von immowelt.
2Bei den Angaben handelt es sich um ortsübliche Werte. Individuelle Kosten können abweichen.
Lage
Altengroden, Wilhelmshaven (26386)
Der Anbieter hat die genaue Adresse nicht freigegeben
Wilhelmshaven ist eine kreisfreie Stadt im Nordwesten Deutschlands. Sie liegt an der Nordwestküste des Jadebusens, einer großen Meeresbucht an der Nordsee. Mit ca. 76.300 Einwohnern ist sie die zweitgrößte Mittelstadt Niedersachsens und eines der Oberzentren in diesem Bundesland. Seit 2006 gehört Wilhelmshaven zur Metropolregion Nordwest, einer von insgesamt elf europäischen Metropolregionen in Deutschland. Im Süden der Stadt reicht die Bebauung bis an den Strand des Jadebusens.
Die Stadtgeschichte ist seit der Einweihung als "erster deutscher Kriegshafen an der Jade" am 17. Juni 1869 eng mit der Entstehung und Entwicklung der deutschen Marine verbunden. Die Stadt ist heute der größte Standort der Marine, seit Umsetzung des neuen Bundeswehrstationierungskonzepts 2011 ist Wilhelmshaven der mit Abstand größte Standort der Bundeswehr.
Wilhelmshaven hat den Tiefwasserhafen mit der größten Wassertiefe in Deutschland und ist der größte Erdölumschlaghafen des Landes. 72 % des Rohölumschlags aller deutschen Seehäfen und fast 27 % des deutschen Rohölimports werden über Wilhelmshaven abgewickelt. Von hier führen Ölleitungen zu Raffinerien im Rhein-Ruhr-Gebiet und nach Hamburg. Das tiefe Fahrwasser der Jade prägt die Wirtschaft und ist die Basis für Ansiedlungen von Großbetrieben der petrochemischen Industrie, der chemischen Industrie, der stromerzeugenden Industrie, der Logistikindustrie und weiterer maritimer Wirtschaftszweige (Reparaturwerften, Schiffsausrüstungen etc.). Mit dem im September 2012 eröffneten JadeWeserPort erhielt Wilhelmshaven ein tideunabhängiges Containerterminal, das auch die größten Containerschiffe voll beladen abfertigen kann.
Die Nordseestadt ist Standort der Jade Hochschule sowie wissenschaftlicher Forschungseinrichtungen, wie z.B des Senckenberg-Instituts für Meeresgeologie und -biologie, des Niedersächsischen Instituts für historische Küstenforschung, usw.
Weitere Informationen
Stichworte
Nutzfläche: 45,21 m², Anzahl der Schlafzimmer: 4, Anzahl der Badezimmer: 1, Anzahl der separaten WCs: 1, Anzahl Terrassen: 1, 2 Etagen, Distanz zum Kindergarten: 0.29, Distanz zur Grundschule: 0.96, Distanz zur Realschule: 2.76, Distanz zum Gymnasium: 2.99, Distanz zur Autobahn: 1.46, Distanz zum Bus: 0.12