Version: 8.24.0Navigation überspringen
Living Haus
469.990 €
4 Zimmer  •  118 m²  •  630 m² Grundstück

Bungalow zum Kauf • provisionsfrei
469990 €
3.983 €/m²
4 Zimmer  •  118 m²  •  630 m² Grundstück

IHR GLÜCKLICHES LEBEN IN IHREM TRAUMHAFTEN BUNGALOW IM GRÜNEN! TEL. 01714863595

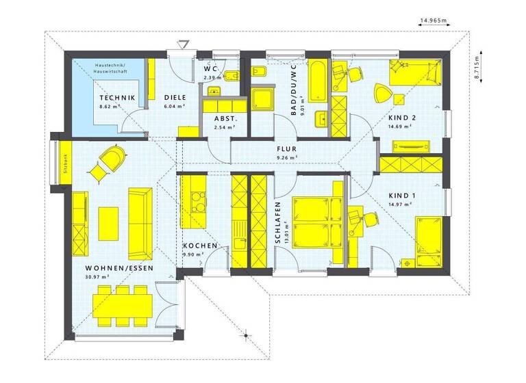
Dieser moderne Bungalow erfüllt einer Familie mit 2 Kindern alle Wünsche von einem pflegeleichten und modernen Zuhause auf einer Ebene! Genial ist der Bungalow auch als Altersruhesitz. Schon beim Betreten des Hauses fallen die Offenheit und Helligkeit des Wohnens auf. Geniessen Sie die Vorteile des großen Koch-, Wohn- und Eßbereiches mit Ausgang zur sonnigen Terrasse. Neben einem behaglichen Schlafzimmer für die Eltern gibt es zwei geräumige Kinderzimmer und ein schickes Badezimmer. Wunderschön der "nahtlose" Übergang auf Ihre Terrasse und in den Garten. Natürlich können Sie den Grundriß auch nach Ihren persönlichen Wünschen gestalten.

Merkmale

  • 630 m² Grundstück
  • Einbauküche
  • Gäste-WC
  • Terrasse
  • Badezimmer: Badewanne, Bad mit Dusche, Bad mit Fenster
  • voll klimatisiert
Livinghaus - da ist Alles mit drin:
- Grundstücksservice
- Finanzierungsservice
- Hausbau-Förderung
- alle notwendigen Bauherren-Versicherungen
- DGNB-Zertifizierung in Go
- der Architekt für die Baugenehmigungsplanung
Das Alles brauchen Sie sowieso, deshalb bekommen Sie das bei Livinghaus gleich mit dazu - ohne Extrakosten! Einfach Alles mit drin. Und noch viel mehr!
Großartige Extra-Leistungen, die Sie so nirgends finden, wie
- unsere Livinghaus Bau-Cockpit App - mit der haben Sie immer den Durchblick und sind auf dem aktuellen Projektstand,
- unser Zuhause-Paket
- unsere Ausbau-Unterstützung durch professionelle Helfer/Trainer
- unsere Ausbau-Videos - Profis zeigen Ihnen, wie es geht!
- die Bodenplatte und der Keller
...und sowieso inklusive: die richtige Hausbau-Beratung bei Ihrem Hausberater.
Dabei gehen wir selbstverständlich auf alle Themen ein, die Ihren Weg ins neue Zuhause betreffen.
Wir haben uns bereits durch Bauvorschriften, Förderkataloge und technische Spezifikationen gewühlt und Ihnen dies also bereits abgenommen. Ergebnis unserer Recherchen : ein intelligent konfiguriertes Paket. Perfekt aufeinander abgestimmte Komponenten, die alle Vorteile vereinen:
+ Photovoltaik-Anlage
+ Batteriespeicher
+ Wärmepumpenheizung inkl. Komfortlüftung und Wärmerückgewinnung
+ ideal gedämmte Gebäudehülle
= Ihr Livinghaus mit Ihrem Plus an Sicherheit für die Zukunft
Sie und Ihre Familie sollen genau DAS Zuhause bekommen, was Sie sich wünschen!
Einfach anrufen und persönlichen Termin für eine Beratung vereinbaren: Telefon 01714863595

Grundrisse

Grundrisse
1 / 1

Realisiere Dein Projekt

Bausubstanz und Energie

Der Anbieter hat keine Informationen zum Energieverbrauch bereit gestellt.
  • Zustand der ImmobilieProjektiert
  • HaustypKfW 40
  • HeizungsartZentralheizung
  • EnergieträgerLuft-/Wasser-Wärmepumpe

Preisdetails

Kaufpreis
469990 €
3.982,97 €/m²
Provision für Käufer
provisionsfrei
Geschätzte Gesamtkosten
505.239 €1
Kaufpreis
469.990 €
Notarkosten (1,5%)
7.050 €
Grunderwerbsteuer (5,5%)
25.849 €
Grundbucheintrag (0,5%)
2.350 €
1Der angezeigte Wert ist eine automatisch berechnete Schätzung von immowelt.
2Bei den Angaben handelt es sich um ortsübliche Werte. Individuelle Kosten können abweichen.

Lage

address-icon
Limbach-Oberfrohna (09212)
Der Anbieter hat die genaue Adresse nicht freigegeben
Dieses sonnige Baugrundstück befindet sich in einem ruhiges Baugebiet. Das Grundstück wird voll erschlossen an Sie übergeben. Aufgrund der optimalen Lage erreichen Sie Einkaufsmöglichkeiten, Kindertagesstätten, Schulen und medizinische Einrichtungen in kurzer Zeit.

Weitere Informationen

Sonstiges Das hier angebotene Grundstück ist im obigen Preis eingerechnet. Es wird ohne zusätzliche Provision (bei einem Maklerangebot wird Vermittlungsprovision fällig) an einen Livinghaus-Bauherren bereitgestellt. Zusätzliche Baunebenkosten müssen noch hinzugerechnet werden, hierüber berate ich Sie gern.
Die Hausabbildungen und die Bilder der Inneneinrichtung zeigen Extras. Diese sind nicht im angegebenen Kaufpreis inbegriffen.
Gute Beratung ist der Anfang von Allem. Deshalb besprechen wir gemeinsam mit Ihnen Ihre Vorstellungen, Wünsche und Bedürfnisse und finden so das für Sie und Ihre Familie passende Livinghaus.
Interessiert? Kontaktieren Sie mich und vereinbaren noch heute einen kostenlosen und unverbindlichen Beratungstermin unter 0171 4863595 Stichworte Anzahl der Schlafzimmer: 3, Anzahl der Badezimmer: 1, Anzahl Terrassen: 1, 1 Etagen Sonstiges/Wohnen: Dachboden

Weitere Services

Lust auf eine Besichtigung?
Eine Frage zur Immobilie?
Nachricht hinzufügen
Mit der Nutzung der oben angegebenen Telefonnummer oder durch Klicken auf „Kontaktieren“ akzeptierst Du die Allgemeinen Nutzungsbedingungen, denen Du jederzeit widersprechen kannst. Weitere Informationen zum Datenschutz

Über den Anbieter

Living Haus
Living HausMaklerbüro
Donauwörther Straße 5, 09114 Chemnitz
Herr Göran Linke
Herr Göran LinkeDein Kontakt
Online-ID: 2nrr55f
Referenznummer: 30269-22708
Living Haus
title
Living Haus
Nachricht hinzufügen
Mit der Nutzung der oben angegebenen Telefonnummer oder durch Klicken auf „Kontaktieren“ akzeptierst Du die Allgemeinen Nutzungsbedingungen, denen Du jederzeit widersprechen kannst. Weitere Informationen zum Datenschutz
Wie zufrieden bist du mit dieser Seite (nicht mit der Immobilie selbst)?