Version: 8.24.0Navigation überspringen
675.000 €
4 Zimmer
Immowelt logo

Einfamilienhaus zum Kauf
675000 €
4 Zimmer

VODICE - Luxuriöses zweistöckiges Triplex-Haus S1

VODICE - Luxuriöses mehrstöckiges Haus S1 mit Pool und Terrassen - Teil eines modernen Triplex-Projekts

In ruhiger und attraktiver Lage in Vodice befindet sich das Haus S1, das Teil eines hochwertig geplanten Triplex-Projekts ist. Die Immobilie verbindet moderne Architektur, funktionale Raumaufteilung und hohen Wohnkomfort. Sie eignet sich ideal sowohl für den Familienwohnsitz als auch als attraktive Investition zur touristischen Vermietung.

Zur Immobilie gehört ein eigener Grundstücksteil mit einer Fläche von 222,05 m² sowie ein gemeinsamer Grundstücksanteil.
Die gesamte berechnete Wohnfläche inklusive Terrassen beträgt 137,06 m².

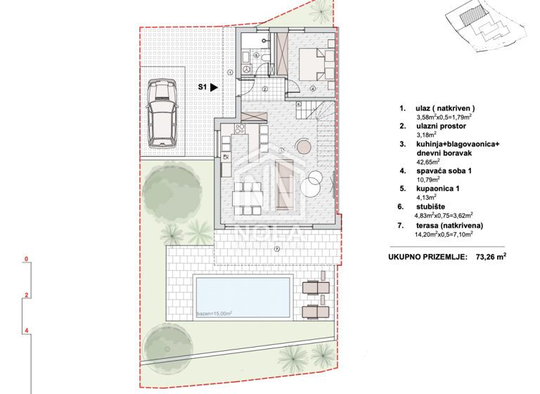
Erdgeschoss
Das Erdgeschoss bildet den zentralen Wohnbereich und umfasst:
überdachten Eingangsbereich
Eingangsbereich
offenen Wohn-, Ess- und Küchenbereich
Badezimmer
ein Schlafzimmer
Treppenhaus
überdachte Terrasse mit Zugang zum Hof
Große Glasflächen sorgen für viel Tageslicht und verbinden Innen- und Außenbereich harmonisch.
Die gesamte berechnete Fläche des Erdgeschosses beträgt 73,26 m².

Erster Stock
Der erste Stock stellt den privaten Schlafbereich dar und umfasst:
Flur
zwei großzügige Schlafzimmer
zwei begehbare Kleiderschränke
zwei Badezimmer
überdachte Terrasse

Die Schlafzimmer bieten Privatsphäre und hohen Komfort, während die Garderoben und privaten Badezimmer die Funktionalität zusätzlich erhöhen. Die überdachte Terrasse eignet sich ideal zur Entspannung.
Die gesamte berechnete Fläche des ersten Stocks beträgt 63,80 m².
Außenbereich
Zur Immobilie gehört ein privater Außenbereich mit:
privatem Swimmingpool (15 m²)
Garten- und Hofbereich (79,32 m²)
privaten Parkplätzen innerhalb des Grundstücks
eigenem Grundstücksanteil
Triplex-Projekt
Die Immobilie ist Teil eines modernen Triplex-Projekts mit drei separaten Wohneinheiten, die jeweils ein hohes Maß an Privatsphäre und Funktionalität bieten.
Lage

Die Immobilie befindet sich in Vodice, einem der beliebtesten touristischen Ziele an der Adriaküste. Vodice ist bekannt für seine gepflegten Strände, entwickelte Infrastruktur, reichhaltige Gastronomie und lebendige touristische Atmosphäre. Die Nähe zu Sibenik sowie zum Nationalpark Krka macht die Lage besonders attraktiv.
Kontaktieren Sie uns mit Vertrauen

DAS ZUHAUSE, DAS SIE SICH WÜNSCHEN
Karlo Varosanec
ID CODE: 1382

Grundrisse

Grundrisse
1 / 4

Realisiere Dein Projekt

Bausubstanz und Energie

Der Anbieter hat keine Informationen zum Energieverbrauch bereit gestellt.
  • Baujahr2026
Immowelt logo

Preisdetails

Kaufpreis
675000 €
Provision für Käufer
Bitte beachte, das Angebot kann bei Vertragsabschluss die Zahlung einer Provision beinhalten. Weitere Informationen erhältst Du vom Anbieter.

Lage

address-icon
Vodice (22211)
Der Anbieter hat die genaue Adresse nicht freigegeben

Weitere Informationen

Stichworte Gesamtfläche: 168,00 m², Anzahl der Schlafzimmer: 3, Anzahl der Badezimmer: 2, Anzahl der separaten WCs: 2, Anzahl der Wohn-Schlafzimmer: 1, Stadtzentrumslage

Weitere Services

Lust auf eine Besichtigung?
Eine Frage zur Immobilie?
Nachricht hinzufügen
Mit der Nutzung der oben angegebenen Telefonnummer oder durch Klicken auf „Kontaktieren“ akzeptierst Du die Allgemeinen Nutzungsbedingungen, denen Du jederzeit widersprechen kannst. Weitere Informationen zum Datenschutz

Über den Anbieter

LABIN d.o.o.Maklerbüro
Prilaz Kikova 4, 52220 LABIN
partner badge
Partnerschaft
Karlo VarosanecDein Kontakt
Online-ID: 2n3nq5e
Referenznummer: 3134-1382
LABIN d.o.o.
Nachricht hinzufügen
Mit der Nutzung der oben angegebenen Telefonnummer oder durch Klicken auf „Kontaktieren“ akzeptierst Du die Allgemeinen Nutzungsbedingungen, denen Du jederzeit widersprechen kannst. Weitere Informationen zum Datenschutz
Wie zufrieden bist du mit dieser Seite (nicht mit der Immobilie selbst)?