Historische Manufaktur & repräsentatives Jugendstilhaus in perfekter Symbiose
In einer begehrten Lage von Solingen präsentiert sich dieses einzigartige Immobilien-Ensemble als seltene Gelegenheit für Eigennutzer, Visionäre oder Kapitalanleger.
Das Anwesen besteht aus einem herrschaftlichen Drei-Familienhaus aus der Gründerzeit von 1914 und einer im Innenhof gelegenen ehemaligen Manufaktur der Schneidwarenindustrie, die im Jahre 2000 zu einem spektakulären Loft umgebaut wurde.
Im hinteren Teil des Grundstücks verbirgt sich das Highlight. Eine kernsanierte, ehemalige Manufaktur der Schneidwarenindustrie, die zu einem Wohntraum der Extraklasse transformiert wurde. Eine historische Kappendecke und die gekälkten Backsteinwände zeugen von der industriellen Vergangenheit und bieten eine einzigartige Loft-Atmosphäre. Eine skulpturale Stahltreppe im Loft-Stil verbindet die Ebenen, während bodentiefe Fenster mit Design-Glasbrüstung den Raum mit Licht fluten. Einzigartige Heizkörper-Lichtskulpturen und eine moderne LED-Deckenbeleuchtung setzen das Interieur bei Nacht perfekt in Szene.
Ein seitlich angrenzender Garten von 100 m² rundet das außergewöhnliche Wohnerlebnis im Loft ab.
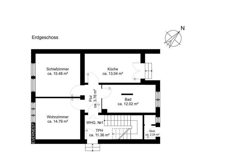
Das im Jahr 1914 errichtete Dreifamilienhaus besticht durch seinen hervorragend gepflegten Zustand und zahlreiche historische Details. Die Erdgeschoßwohnung und die 1. Obergeschosswohnung wurden modernisiert und strahlen durch Eiche-Echtholzparkett und hohe Fenster, eine einladend helle Atmosphäre aus. Die Wohnung im zweiten Obergeschoss verfügt über einen zusätzlich ausgebauten Spitzboden mit 40 m² und einem zweiten Bad, sowie einer Wohnküche mit Kaminofen.
Original erhaltene gründerzeitliche Kassettentüren und großzügige Raumhöhen bewahren den herrschaftlichen Charakter des Hauses. Mit einer neuen Dachdämmung und einem frischen Fassadenanstrich im Jahr 2025 ist das Haupthaus energetisch und optisch für die Zukunft gerüstet. Eine Zisterne zur Gartenbewässerung unterstreicht den durchdachten Umgang mit Ressourcen.
Neben der architektonischen Einzigartigkeit besticht dieses Objekt durch seine soliden wirtschaftlichen Kennzahlen. Mit einer Soll-Rendite von 5,3 % und einem attraktiven Soll-Faktor von 19 bietet dieses Ensemble eine ĂĽberdurchschnittliche Performance im aktuellen Marktumfeld.
Die Kombination aus den drei charmanten Jugendstil-Einheiten und dem exklusiven Loft ermöglicht eine krisensichere Diversifikation Ihrer Mieteinnahmen oder eine hochwertige Eigennutzung mit Refinanzierung durch die Bestandseinheiten.
Die Symbiose aus geschichtsträchtigem Jugendstil und dem unverfälschten Charakter der alten Manufaktur macht dieses Angebot zu einer absoluten Rarität am Markt.
Merkmale
450 m² Grundstück
Keller
3 Stellplätze
Balkon
Garten
Terrasse
- Kernsaniertes Loft in ehemaliger Galvanik - Historische Kappendecke - Heizkörper-Lichtskulpturen im Loft - Gekälkte Backsteinwände - Stahltreppe im Loft-Stil - Bodentiefe Fenster mit Design-Glasbrüstung - Drei-Familienhaus aus der Gründerzeit - Wohnungen im Haupthaus alle mit Eichen-Parkett - Gründerzeitliche Kassettentüren - Zisterne zur Bewässerung im Garten - Neuer Fassadenanstrich 2025
Grundrisse
Grundrisse
1 / 6
Realisiere Dein Projekt
Bausubstanz und Energie
Energieausweis
D
Baujahr1914
Zustand der ImmobilieGepflegt
EnergieträgerGas
Preisdetails
Kaufpreis
660000 €660.000 €
2.237,29 €/m²
Provision für Käufer
5.95 inkl. MwSt. Bei Abschluss eines notariellen Kaufvertrages ist eine Käuferprovision vom Käufer in Höhe von 5.95 % inkl. MwSt. aus dem Kaufpreis fällig.
Geschätzte Gesamtkosten
739.662 €1
Kaufpreis
660.000 €
Kaufnebenkosten
79.662 €
2
Notarkosten (1,5%)
9.900 €
Grunderwerbsteuer (6,5%)
42.900 €
Provision für Käufer (3,57%)
23.562 €
Grundbucheintrag (0,5%)
3.300 €
1Der angezeigte Wert ist eine automatisch berechnete Schätzung von immowelt.
2Bei den Angaben handelt es sich um ortsübliche Werte. Individuelle Kosten können abweichen.
Lage
Höhscheid, Solingen (42657)
Der Anbieter hat die genaue Adresse nicht freigegeben
Die Immobilie befindet sich in einer begehrten Wohnlage von Solingen-Mitte. Diese zeichnet sich durch ihre angenehme Ruhe aus, ohne dass Bewohner auf die Vorzüge des städtischen Lebens verzichten müssen.
In unmittelbarer Nähe erreichen Sie Supermärkte und Bäckereien, die Solinger Innenstadt ist fußläufig in ca. 5-10 Minuten erreichbar. Schulen und Kindergärten, sowie diverse Fachärzte befinden sich im direkten Umkreis. Das Umfeld ist geprägt von Urbanität mit charmanten Altbauten und einer gewachsenen Nachbarschaft, was die Adresse besonders bei jungen Paaren und Singles attraktiv macht.
Der Bahnhof Solingen Mitte ist unmittelbar erreichbar, hier gelangen Sie in wenigen Minuten zum Hauptbahnhof, wo Sie direkten Anschluss Richtung Düsseldorf und Wuppertal haben. Dort ist es möglich, mit der S-Bahn zum Düsseldorfer Flughafen zu gelangen.
Die Autobahnen A46 und A3 befinden sich über die Zubringerstraßen in kurzer Distanz, wodurch die Zentren von Köln und Düsseldorf in nur 30 Minuten erreichbar werden.
Die Lage vereint das Beste aus zwei Welten, die Dynamik der Stadt und die Erholung im GrĂĽnen.