Version: 8.26.0Navigation überspringen
7 €
355 m² Bürofläche
Immowelt logo

Bürogebäude zur Miete
7 €
/m²
355 m² Bürofläche

Charmante Gewerbefläche | Büro über 2 Etagen

. Charmantes Geschäftshaus / Büroräume in Halstenbek
. Die Bürofläche verteilt sich auf 2 Etagen.
. 2 große Büros
. 1 Büro mit Vorraum
. 3 weiter Büros
. 1 kleiner Lagerraum
. getrennte Toilettenanlage
. Parkplätze auf Anfrage

Ausstattung
Das Geschäftshaus besticht durch seinen charmanten Backsteinstil von außen und durch seine Fachwerkbalken im Inneren.
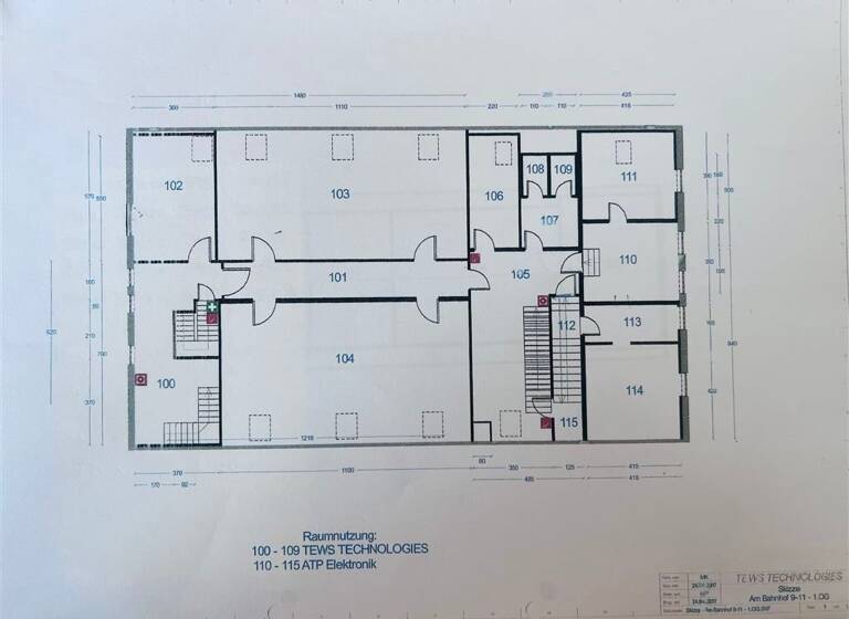
Die Gesamtfläche von ca. 355 m² erstreckt sich im 1. Obergeschoss bis ins 2. Obergeschoss.
Im 1. Obergeschoss befinden sich 2 große Büroräume, 1 Büro mit Vorraum, 2 Durchgangsbüros, 1 kleines Büro sowie die getrennten Toiletten.
Im charmanten 2. Obergeschoss mit schönen, weiß lackierten Fachwerkbalken, welches durch zwei Treppen zugänglich ist, befinden sich 2 identisch große Büroräume, ein wunderschöner Besprechnungsraum oder Büro und eine Küche mit Aufenthaltsraum.

PKW-Stellplätze können angemietet werden (je 25,-€ zzgl. MwSt.)

Merkmale

  • frei ab sofort

Grundrisse

Grundrisse
1 / 2

Bausubstanz und Energie

Energieausweis

Ein Energieausweis ist für diesen Gebäudetyp nicht notwendig.
  • Zustand der ImmobilieGepflegt
Immowelt logo

Mietkosten

Nettomiete
7 €/m²
2.345 €
Nebenkosten
710 €
Provision für Mieter
3 Netto-Mieten zzgl. Mwst
Kaution
3 Netto-Mieten zzgl. Mwst

Lage

address-icon
Halstenbek , Holst (25469)
Der Anbieter hat die genaue Adresse nicht freigegeben
Halstenbek ist eine eigenständige Gemeinde (ca. 18.000 Einwohner) in unmittelbarer Nähe von Hamburg. Der Ort wird geprägt durch weiträumige landwirtschaftliche Flächen (Baumschulen), moderne umweltschonende Gewerbeansiedlungen und das Landschaftsschutzgebiet "Krupunder See"

Die Gemeinde Halstenbek profitiert von der guten Verkehrsanbindung.
Das EKZ Schenefeld liegt nur wenige Autominuten entfernt. Mit der S-Bahn erreicht man die Innenstadt von Hamburg je nach Fahrtziel in 20 - 30 Minuten.
Über die Autobahn A 23 benötigt man in etwa die gleiche Zeit.

Vielfältige Einkaufsmöglichkeiten, Arztpraxen, Post, Banken, Kindergärten und Schulen (Grund-, Haupt- und Realschulen sowie ein Gymnasium und eine japanische Schule) befinden sich im Ort.


Die Nähe zur Hansestadt Hamburg, zum Flughafen Fuhlsbüttel und zu den
Autobahnen A7 und A23 macht Halstenbek zu einem interessanten Gewerbestandort

Weitere Informationen

Stichworte Gesamtfläche: 355,00 m², 2 Etagen

Weitere Services

Lust auf eine Besichtigung?
Eine Frage zur Immobilie?
Mit einer persönlichen Nachricht hast du bessere Chancen auf eine Antwort.
Mit der Nutzung der oben angegebenen Telefonnummer oder durch Klicken auf „Kontaktieren“ akzeptierst Du die Allgemeinen Nutzungsbedingungen, denen Du jederzeit widersprechen kannst. Weitere Informationen zum Datenschutz

Über den Anbieter

Friedrichstraße 1, 25469 Halstenbek
partner badge
Partnerschaft
Herr Michael ThielDein Kontakt
Online-ID: 25NSVPBLG8IG
Referenznummer: VM 23-05 (1/705)
Wie zufrieden bist du mit dieser Seite (nicht mit der Immobilie selbst)?