ISTRIEN, UMAG - Umweltfreundliche Villa mit Meerblick
Istrien, Umag - Ökologische Villa mit Meerblick
Diese moderne Villa in ruhiger Lage unweit von Umag steht zum Verkauf. Sie ist ideal für Käufer, die Wert auf Privatsphäre, hochwertige Öko-Bauweise und die Nähe zum Meer legen. Der Flughafen Pula ist 45 Minuten, Triest 60 Minuten und Venedig sowie Treviso weniger als zwei Autostunden entfernt. Die Strände sind ca. 1500 Meter entfernt. In der Nähe befinden sich Parenzana, Weingüter, Olivenhaine, Restaurants, Wellnesszentren und Golfplätze.
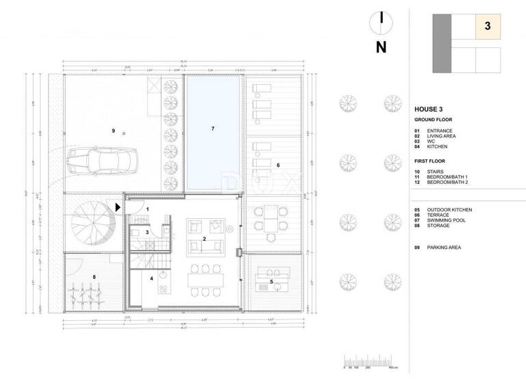
Die Villa bietet eine Gesamtfläche von 439 Quadratmetern, davon 202 Quadratmeter überdachte Fläche. Die Wohnfläche beträgt 105 Quadratmeter, hinzu kommen 65 Quadratmeter überdachte Terrassen, 16 Quadratmeter überdachter Balkon und 16 Quadratmeter Fahrradabstellfläche. Der Außenbereich umfasst einen 135 Quadratmeter großen Privatgarten, einen 16 Quadratmeter großen Eingangsgarten, einen 22 Quadratmeter großen privaten Swimmingpool und zwei Parkplätze mit einer Gesamtfläche von 64 Quadratmetern. Die Villa bietet zudem Meerblick.
Die Konstruktion besteht aus massivem iQwood-Holz, einem System, das für seine Stabilität, Energieeffizienz, Feuchtigkeitsregulierung und ein ganzjährig angenehmes Mikroklima bekannt ist. Diese umweltfreundliche Bauweise ist attraktiv für Käufer, die ein nachhaltiges Zuhause mit niedrigen Nebenkosten und langfristigem Werterhalt suchen.
Das Erdgeschoss umfasst ein offenes Wohnzimmer mit großen Glaswänden zur Terrasse, eine mit dem Esszimmer verbundene Küche, einen Ankleideraum und ein Gäste-WC. Der Raum ist funktional gestaltet, hell und gut mit dem Außenbereich verbunden.
Im Innenhof befinden sich ein privater Swimmingpool, eine überdachte Terrasse und eine überdachte Außenküche. Der private Garten bietet zusätzliche Ruhe und Privatsphäre, während der Fahrradabstellplatz angesichts der Nähe zu beliebten Radwegen praktisch ist.
Im Obergeschoss befinden sich zwei Schlafzimmer, jeweils mit eigenem Bad. Fußbodenheizung, Klimaanlage, elektrische Jalousien und große Glaswände sorgen für hohen Wohnkomfort. Eines der Schlafzimmer hat Zugang zu einem überdachten Balkon mit Blick auf die Umgebung und das Meer.
Die Villa eignet sich ideal als Zweitwohnsitz in Istrien, als Familienrefugium oder als Kapitalanlage mit hervorragendem Potenzial für die Luxusvermietung. Der private Pool, der Garten und die hochwertige Öko-Bauweise heben sie deutlich von anderen Angeboten auf dem Markt ab.
Weitere Informationen, Grundrisse, Visualisierungen und einen Besichtigungstermin erhalten Sie auf Anfrage. Solche Immobilien finden schnell einen Käufer.
Sehr geehrte Kunden, die Maklerprovision richtet sich nach den Allgemeinen Geschäftsbedingungen:
www.dux-nekretnine.hr/opci-uvjeti-poslovanja
ID CODE: 43671