Version: 8.25.1Navigation überspringen
7,50 €
1.960,8 m² Bürofläche  •  teilbar ab 350 m²
Immowelt logo

Bürofläche zur Miete
7,50 €
/m²
1.960,8 m² Bürofläche  •  teilbar ab 350 m²

antaris Immobilien GmbH ** Hier stimmt Preis/Leistung! **

Die Immobilie bietet im Kopfgebäude eines modernen Gewerbekomplexes eine aktuell verfügbare Bürofläche von ca. 982 m² und überzeugt durch vielseitige Nutzungsmöglichkeiten. Das Areal blickt auf eine spannende Geschichte als ehemaliger Produktionsstandort eines weltweit bekannten Erfrischungsgetränkeherstellers zurück und hat sich in den vergangenen Jahren zu einem lebendigen, gemischt genutzten Gewerbestandort entwickelt.

Ergänzend zur Bürofläche stehen weitere Flächen zur Verfügung: ca. 1.960 m² im 1. Obergeschoss sowie ca. 927 m² im Dachgeschoss. Damit eignet sich der Standort ideal für Unternehmen mit Expansionsplänen oder einem erhöhten Flächenbedarf. Der funktionale Zuschnitt der Flächen ermöglicht flexible Nutzungskonzepte für unterschiedlichste Branchen. Eine Teilflächenanmietung ist - je nach Bedarf - bereits ab ca. 350 m² denkbar.

Die Büroflächen präsentieren sich in einem zeitgemäßen, gepflegten Zustand und verfügen über Isolierverglasung, teilweise abgehängte Rasterdecken, Teppichboden sowie integrierte Beleuchtung. Eine teilweise vorhandene Datenverkabelung in Brüstungskanälen ist bereits integriert.

Energieausweis vorhanden: ja

Energiekennwert: 105,00 kWh (m²-a)

Endenergieverbrauch Wärme: 57,00 kWh (m²-a)

Endenergieverbrauch Strom: 23,00 kWh (m²-a)

Energieträger: Gas

Ausstelldatum: 29.08.2025

Art des Energieausweises: Verbrauch
Baujahr technische Anlage: 2021

Merkmale

Die modernen Büroflächen können individuell nach Mieterwunsch ausgestattet werden. Sie sind mit Isolierverglasung, teilweise abgehängten Rasterdecke und integrierter Beleuchtung ausgestattet. Datenverkabelung ist teilweise in Brüstungskanälen verlegt. Die Sozial-/Sanitärräume sind baujahrstypisch ausgestattet, wurden vom bisherigen Nutzer jedoch regelmäßig renoviert.
Die modernen Büroflächen können individuell nach Mieterwunsch ausgestattet werden. Sie sind mit Isolierverglasung, teilweise abgehängten Rasterdecke und integrierter Beleuchtung ausgestattet. Datenverkabelung ist teilweise in Brüstungskanälen verlegt. Die Sozial-/Sanitärräume sind baujahrstypisch ausgestattet, wurden vom bisherigen Nutzer jedoch regelmäßig renoviert.

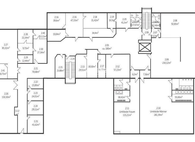
Grundrisse

Grundrisse
1 / 1

Realisiere Dein Projekt

Bausubstanz und Energie

Energieausweis

Endenergieverbrauch (Wärme)

Endenergieverbrauch (Strom)

  • Baujahr1992
Immowelt logo

Mietkosten

Monatliche Miete
7,50 €/m²
Provision für Mieter
1,19 Monatsmieten inkl. MwSt. vom Mieter
Kaution
keine Angabe

Lage

address-icon
Industriegebiet WestWeimar (99427)
Der Anbieter hat die genaue Adresse nicht freigegeben
Weimar verbindet kulturelle Strahlkraft mit wirtschaftlicher Stabilität. Rund 60.000 Einwohner, ein starker Mittelstand, renommierte Hochschulen und ein hoher touristischer Zuspruch prägen den Standort.

Verkehrstechnisch ist Weimar hervorragend aufgestellt: Die B 7 und B 85, die nahegelegene Autobahn A 4 sowie der IC-Bahnhof sorgen für eine schnelle und unkomplizierte Erreichbarkeit in alle Richtungen. Das Gewerbeobjekt liegt an einer stark frequentierten Ausfallstraße in unmittelbarer Nähe zur B 7-Auffahrt. Die Schwansseestraße zählt zu den zentralen und gefragten Lagen Weimars. ÖPNV, kurze Wege für PKW-Nutzer sowie die Nähe zur Bauhaus-Uni und zu kulturellen Highlights machen diesen Standort besonders attraktiv und vielseitig nutzbar.

Weitere Informationen

Sonstiges Provision
Der Maklervertrag mit der antaris Immobilien GmbH kommt entweder durch eine schriftliche Vereinbarung oder durch die Inanspruchnahme unserer Maklertätigkeit auf Basis der Anforderung des Objekt-Exposés und der beinhalteten Bestimmungen zustande (siehe auch AGB). Für den Nachweis und/oder die Vermittlung des vorstehenden Objektes hat der Mieter an uns eine Maklerprovision in Höhe von 1,19 Monatsmieten inkl. der gesetzlichen Mehrwertsteuer zu zahlen. Die Provision ist fällig und zahlbar am Tag der Vertragsunterzeichnung durch den Mieter.
Widerrufsrecht
Sie können Ihre Vertragserklärung innerhalb von 14 Tagen ohne Angaben von Gründen in Textform (z.B. Brief, E-Mail) widerrufen. Die Frist beginnt nach Erhalt dieser Belehrung in Textform, jedoch nicht vor Vertragsabschluss und auch nicht vor Erfüllung unserer Informationspflichten gem. Art. 246 § 2 i.V.m. § 1 Abs. 1 und 2 EGBGB. Zur Wahrung der Widerrufsfrist genügt die rechtzeitige Absendung des Widerrufs. Im Falle eines wirksamen Widerrufs sind die beiderseits empfangener Leistungen zurück zu gewähren und ggf. bezogene Nutzungen (z.B. Zinsen) herauszugeben. Können Sie uns die empfangenen Leistungen sowie Nutzungen (z.B. Gebrauchsvorteile) nicht oder teilweise nicht oder nur in verschlechtertem Zustand zurückgewähren bzw. herausgeben, müssen Sie uns insoweit Wertersatz leisten. Dies kann dazu führen, dass Sie die vertraglichen Zahlungsverpflichtungen für den Zeitraum bis zum Widerruf gleichwohl erfüllen müssen. Verpflichtungen zur Erstattung von Zahlungen müssen innerhalb von 30 Tagen erfüllt werden.
Die Frist beginnt für Sie mit der Absendung Ihrer Widerrufserklärung, für uns mit deren Empfang. Das Widerrufsrecht erlischt vorzeitig, wenn der Vertrag von beiden Seiten auf Ihren ausdrücklichen Wunsch vollständig erfüllt ist, bevor Sie Ihr Widerrufsrecht ausgeübt haben.

Weitere Angebote finden Sie unter www.antaris-immobilien.de!

Weitere Services

Lust auf eine Besichtigung?
Eine Frage zur Immobilie?
Mit einer persönlichen Nachricht hast du bessere Chancen auf eine Antwort.
Mit der Nutzung der oben angegebenen Telefonnummer oder durch Klicken auf „Kontaktieren“ akzeptierst Du die Allgemeinen Nutzungsbedingungen, denen Du jederzeit widersprechen kannst. Weitere Informationen zum Datenschutz

Über den Anbieter

Juri-Gagarin-Ring 96-98, 99084 Erfurt
partner badge
6 Jahre Partnerschaft
Frau Sandy ThorwirthDein Kontakt
Online-ID: 25TKTDQ4VQI2
Referenznummer: P245025/G1/Eh3
Antaris Immobilien GmbH
Antaris Immobilien GmbH
Bewertung: 4,2 von 5 Sternen
Mit einer persönlichen Nachricht hast du bessere Chancen auf eine Antwort.
Mit der Nutzung der oben angegebenen Telefonnummer oder durch Klicken auf „Kontaktieren“ akzeptierst Du die Allgemeinen Nutzungsbedingungen, denen Du jederzeit widersprechen kannst. Weitere Informationen zum Datenschutz
Wie zufrieden bist du mit dieser Seite (nicht mit der Immobilie selbst)?