Rohbaubesichtigung Sa. 04.04. 13:00-14:00 Uhr: TOP DHH in Renningen-Malmsheim - Einzug 2026!
Kommen Sie zu unserer offenen Besichtigung am Samstag, den 04.04.26 von 13:00-14:00 Uhr.
Adresse: Bühlstr. 9, 71272 Renningen-Malmsheim
Wir freuen uns auf Sie!
In einer unverbaubaren Aussichtslage von Renningen-Malmsheim entsteht diese attraktive Doppelhaushälfte, die mit durchdachter Raumaufteilung überzeugt. Der Rohbau ist bereits erstellt, sodass dieses Haus in 2026 bereits beziehbar ist.
Die Immobilie bietet ca. 136 m² Wohnfläche, verteilt auf 6 Zimmer, und eignet sich ideal für Familien, Paare oder Berufstätige, die ein neues Zuhause mit Wohlfühlcharakter und herrlicher Aussicht suchen.
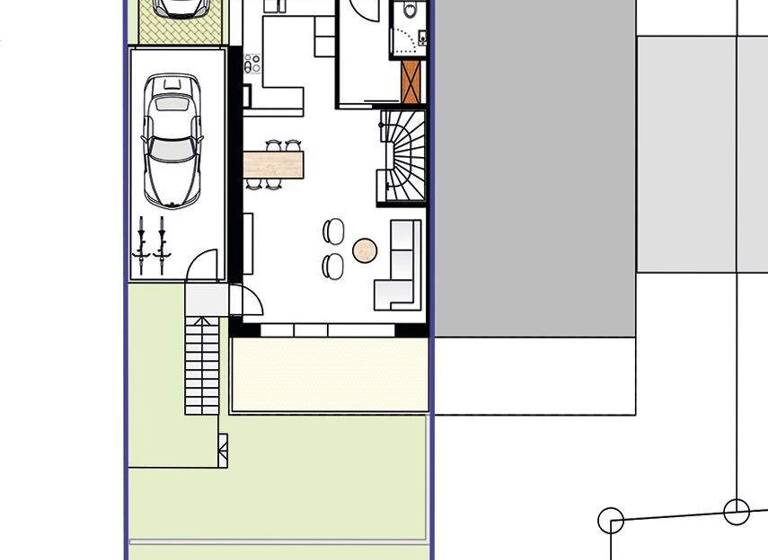
Das Erdgeschoss bildet das Herzstück des Hauses. Hier erwartet Sie ein großzügiger Wohn- und Essbereich mit offener Küche, der durch große Fensterflächen viel Licht ins Innere lässt und direkten Zugang zum großen Balkon (ca. 13 m²) bietet. Dort können Sie die Ruhe und die traumhafte Fernsicht genießen. Über eine Außentreppe gelangen Sie vom Wohnbereich in den tollen Westgarten.
Im Dachgeschoss befinden sich drei helle Schlafzimmer sowie ein modernes Badezimmer, das mit einer Badewanne und einer bodengleichen Dusche ausgestattet ist. Die durchdachte Aufteilung sorgt dafür, dass jeder Bewohner seinen eigenen Rückzugsort findet, während die großzügigen Fenster ein freundliches Wohnambiente schaffen.
Im Gartengeschoss befindet sich ein weiteres Schlafzimmer (für die Eltern oder Kinder) und die Möglichkeit für ein weiteres Duschbad. Zusätzlich ist hier ein weiteres Zimmer für das Homeoffice oder das Gästezimmer geplant. Beide Zimmer haben einen Zugang zur Terrasse, wo Sie sich wiederum ungestört aufhalten und ebenfalls die Aussicht genießen können.
Damit bietet diese Doppelhaushälfte ausreichend Platz für unterschiedliche Lebenssituationen und Bedürfnisse. Als sehr praktisch erweist sich auch der zusätzliche Abstellraum unter der Garage, welcher vielseitig nutzbar und bereits im Preis enthalten ist.
Es besteht die Möglichkeit für eine Garage mit 3 m x 7 m.
Merkmale
230 m² Grundstück
Keller
Balkon
Terrasse
2 Stellplätze: Garage, Außen-Stellplatz
Das Haus ist komplett bezugsfertig geplant. Alle Bodenbeläge und Malerarbeiten sind im Preis enthalten. Diese Doppelhaushälfte wird in sehr guter Massivbauweise (Stein auf Stein) mit 3-fach Verglasung, Parkettboden, elektrischen Rollläden, Fußbodenheizung, Luft-Wasser-Wärmepumpe und Photovoltaik-Anlage nach GEG 2024 erstellt. Energieeffizienzklasse A+. Diese DHH befindet sich bereits im Bau, sodass Sie bereits in 2026 Ihr neues Zuhause genießen können.
Eigene Wünsche können in der Aufteilung noch berücksichtigt werden.
Grundrisse
Grundrisse
1 / 3
Realisiere Dein Projekt
Bausubstanz und Energie
Energieausweis
A+
Baujahr2025
Zustand der ImmobilieNeubau, Massivhaus, Projektiert
HeizungsartFußbodenheizung
EnergieträgerLuft-/Wasser-Wärmepumpe
Preisdetails
Kaufpreis
749000 €749.000 €
5.507,35 €/m²
Provision für Käufer
provisionsfrei
Weitere Preisinformationen
1 Stellplatz 1 Garagenstellplatz
Geschätzte Gesamtkosten
801.430 €1
Kaufpreis
749.000 €
Kaufnebenkosten
52.430 €
2
Notarkosten (1,5%)
11.235 €
Grunderwerbsteuer (5%)
37.450 €
Grundbucheintrag (0,5%)
3.745 €
1Der angezeigte Wert ist eine automatisch berechnete Schätzung von immowelt.
2Bei den Angaben handelt es sich um ortsübliche Werte. Individuelle Kosten können abweichen.
Lage
Malmsheim, Renningen / Malmsheim (71272)
Der Anbieter hat die genaue Adresse nicht freigegeben
Die Lage in Renningen-Malmsheim verbindet naturnahes Wohnen mit optimaler Anbindung. In wenigen Gehminuten erreichen Sie die S-Bahn sowie auch in wenigen Autominuten die A8, was eine schnelle Verbindung in Richtung Stuttgart und Umgebung ermöglicht. Vor Ort stehen Einkaufsmöglichkeiten, Schulen und Kindergärten zur Verfügung, während die umliegende Natur zahlreiche Freizeit- und Erholungsmöglichkeiten bietet.
Weitere Informationen
Sonstiges
Kommen Sie zu unserer offenen Besichtigung am Samstag, den 04.04.26 von 13:00-14:00 Uhr.
Adresse: Bühlstr. 9, 71272 Renningen-Malmsheim
Wir freuen uns auf Sie!
"Das ideale Zuhause für die junge Familie, die in attraktiver Lage modern und mit herrlicher Aussicht wohnen möchte"
Stichworte
Anzahl der Schlafzimmer: 4, Anzahl der Badezimmer: 2, Anzahl der separaten WCs: 1, Anzahl Balkone: 1, Anzahl Terrassen: 1, 1 Etagen