Version: 8.24.0Navigation überspringen
4 €
4.147 m² Lagerfläche
Immowelt logo

Lagerhalle zur Miete
4 €
/m²
4.147 m² Lagerfläche

Großzügige Logistikimmobilie im Wasserburger Raum

Die großzügige Gewerbeimmobilie entstand 2019, verfügt über ca. 4.150 m² Nutzfläche auf 3 Ebenen und bietet alle Voraussetzung für einen optimales Standort der Logistik-, Internet- oder Großhandelsbranchen. Die Lage in der wirtschaftsstarken, oberbayerischen Region und die gute Anbindung an das regionale und überregionale Verkehrsnetz sind wichtige Voraussetzungen für Handel und Logistik.

- gut erreichbare Lage unweit B15/B304, Gewerbegebiet
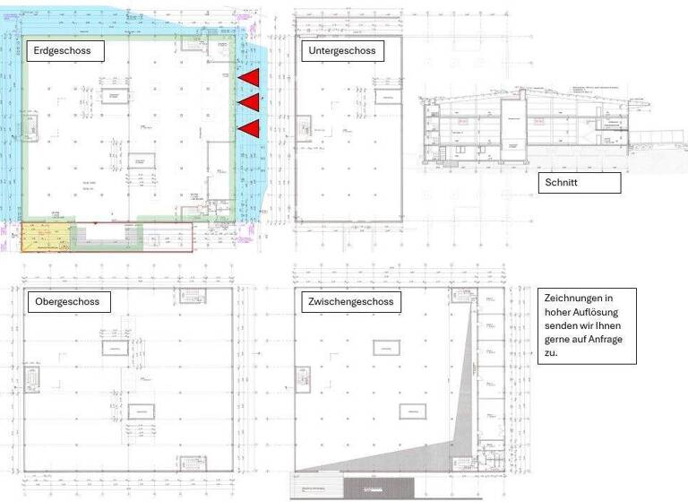
- attraktive, großzügige Lagerflächen auf 3 Geschossen
- hervorragender, neuwertiger Zustand der Lager- und Büroflächen
- 3 Ladetore, Hubschächte (auf Wunsch Lastenaufzug), moderne Ausstattung

Flächenzusammenstellung:

ca. 1.452 m² Lager im EG
ca. 775 m² Lager im UG
ca. 1.561 m² Lager im OG

ca. 3.787 m² Gesamtnutzfläche Lager

ca. 61 m² Büro im EG (Dispobüro)
ca. 153 m² Büro im Zwischengeschoss (6 Einzelbüros)

ca. 215 m² Gesamtnutzfläche Büro

ca. 145 m² Nebenflächen (WC-Anlagen, Flure, Treppenhäuser, Technik)

ca. 4.147 m² Gesamtnutzfläche Gebäude

Die Mietfläche wird geräumt und besenrein an den Mieter übergeben. Die gesamte Mietfläche befindet ich in einem exzellenten Zustand. Der Vermieter erwartet eine Vertragslaufzeit von mindestens 5 Jahren.

Merkmale

  • Bezug: Bezug 4 Monate nach Vertragsunterzeichnung

Grundrisse

Grundrisse
1 / 1

Realisiere Dein Projekt

Bausubstanz und Energie

Energieausweis

Endenergiebedarf (Wärme)

Endenergiebedarf (Strom)

  • Baujahr2019
  • EnergieträgerGas
Immowelt logo

Mietkosten

Monatliche Miete
4 €/m²
Provision für Mieter
1,78 Netto-Monatsmieten inkl. MwSt.
Kaution
keine Angabe

Lage

address-icon
Eiselfing (83549)
Der Anbieter hat die genaue Adresse nicht freigegeben
Lagebeschreibung: Wasserburg / Eiselfing
Die Logistikimmobilie liegt im Gewerbegebiet Eiselfing, Landkreis Rosenheim, nahe der wirtschaftsstarken Region Wasserburg am Inn. Die Nähe zu München, Salzburg und der Alpenregion bietet ideale Voraussetzungen für Logistik und Gewerbe.

Standortvorteile:
- Infrastruktur: Direkte Anbindung an die B12 sowie die Autobahnen A8/A93. Gute Erreichbarkeit der Städte Rosenheim (20-30 km), München (60-70 km) und Salzburg (90-110 km).
- ÖPNV: Busverbindungen in die Region; Bahnanschluss über Wasserburg und Rosenheim.
- Flughäfen: München (ca. 60-70 km), Salzburg (ca. 90-110 km), auch für Fracht nutzbar.

Gewerbegebiet Eiselfing:
Wachstumsorientiert, moderne Infrastruktur, gute Fachkräfteverfügbarkeit und niedrige Betriebskosten. Die Immobilie liegt direkt an der Staatsstraße 2092 mit LKW-gerechter Zufahrt über einen Kreisverkehr. Die Umgebung ist geprägt von Gewerbebetrieben, Speditionen und Autohäusern.

Weitere Informationen

Nutzung Logistik- und Lagernutzungen Zusatz/Über Uns Herzlich Willkommen bei Felder, Ihrem Spezialisten für Gewerbeimmobilien in Rosenheim, Traunstein, dem Chiemgau und Oberbayern.

Sie möchten mehr Informationen zu diesem Objekt? Gern übersenden wir Ihnen unverbindlich unser aussagekräftiges Exposee. Ein E-Mail oder Anruf genügt.

Die im Exposee angegebenen Daten beruhen auf Angaben des Eigentümers. Für diese Angaben übernehmen wir keine Gewähr. Der Maklervertrag mit uns kommt entweder durch schriftliche Vereinbarung oder auch durch die Inanspruchnahme unserer Maklertätigkeit auf der Basis des Objekt Exposees und seiner Bedingungen zustande.

Unsere Beratungsleistung ist erfolgsorientiert und für Sie bis zum Abschluss eines Vertrages freibleibend. Gern stehen wir Ihnen beratend zur Seite. Wir freuen uns auf Ihren Anruf.


Sie suchen eine Gewerbeimmobilie im Rosenheimer Land, Traunstein, Oberbayern oder dem Chiemgau und möchten sich bei Ihrer Suche auf das Fachwissen und Netzwerk eines starken Partners verlassen können? Sie möchten Ihre Gewerbeimmobilie vermieten oder verkaufen? Sie suchen die passenden Mieter oder Investoren? Dann sollten Sie uns ansprechen und von unserem Bekanntheitsgrad und großem Netzwerk in der Region profitieren.

Wir begleiten Sie vom ersten Kontakt bis zur Unterschrift unter dem Miet- oder Kaufvertrag. Seit über 25 Jahren ist die Firma Felder als der Spezialist für Gewerbeimmobilien im Rosenheimer Immobilienmarkt bekannt. Mehr Immobilien finden Sie auf www.felder-gewerbe.de

Weitere Services

Lust auf eine Besichtigung?
Eine Frage zur Immobilie?
Nachricht hinzufügen
Mit der Nutzung der oben angegebenen Telefonnummer oder durch Klicken auf „Kontaktieren“ akzeptierst Du die Allgemeinen Nutzungsbedingungen, denen Du jederzeit widersprechen kannst. Weitere Informationen zum Datenschutz

Über den Anbieter

Ludwigsplatz 15, 83031 Rosenheim
partner badge
Partnerschaft
Herr Thomas Wüstefeld
Herr Thomas WüstefeldDein Kontakt
Online-ID: 2lywk5u
Referenznummer: A1500
Felder. Der Gewerbespezialist GmbH
title
Felder. Der Gewerbespezialist GmbH
Bewertung: 5 von 5 Sternen
Nachricht hinzufügen
Mit der Nutzung der oben angegebenen Telefonnummer oder durch Klicken auf „Kontaktieren“ akzeptierst Du die Allgemeinen Nutzungsbedingungen, denen Du jederzeit widersprechen kannst. Weitere Informationen zum Datenschutz
Wie zufrieden bist du mit dieser Seite (nicht mit der Immobilie selbst)?