Version: 8.25.1Navigation überspringen
249.900 €
4 Zimmer  •  103 m²
Immowelt logo

Wohnung zum Kauf • provisionsfrei
249900 €
2.426 €/m²
4 Zimmer  •  103 m²

Kapitalanleger aufgepasst! Ca. 103m² ETW in Wischuer - Sauna & Stellpl., ideal für Ferien & Wohnen!

Willkommen in dieser charmanten Eigentumswohnung in Wischuer, einem malerischen Ort in der Nähe von Rerik in Mecklenburg-Vorpommern!

Diese großzügige Wohnung erstreckt sich über drei Etagen und bietet sowohl für die Ferienvermietung als auch für den Eigennutz ein ideales Zuhause.

Im Erdgeschoss erwartet Sie ein einladender Eingangsbereich, der einen ersten Eindruck von der Wohnlichkeit und dem Charakter dieser Wohnung vermittelt. Hier haben Sie ausreichend Platz für die Ablage von Schuhen und Jacken.

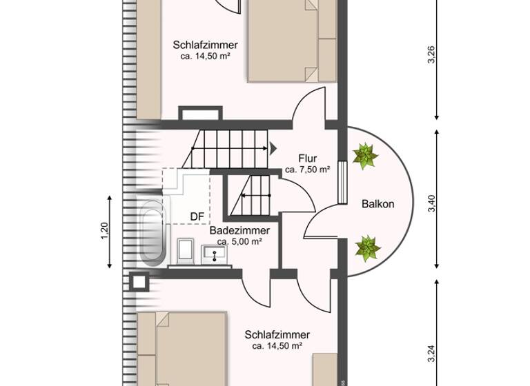
Eine Treppe führt Sie ins Obergeschoss, wo sich der Flur öffnet und Zugang zu zwei gemütlichen Schlafzimmern bietet. Eines der Zimmer verfügt über einen eigenen Balkon, der zum Entspannen und Genießen der frischen Luft einlädt. Ein Badezimmer mit Badewanne rundet dieses Stockwerk ab und bietet Ihnen den idealen Ort, um nach einem langen Tag zu entspannen. Vom Flur aus gelangen Sie zudem auf einen weiteren Balkon, der Ihnen zusätzliche Außenfläche bietet.

Das Highlight der Wohnung erwartet Sie im Dachgeschoss. Hier finden Sie ein großzügiges Wohnzimmer, das durch eine geschickte Abtrennung zur Küche perfekt in Wohn- und Kochbereich gegliedert ist. Die großen Fenster und die charmanten Tonnendachgauben sorgen für eine lichtdurchflutete und freundliche Atmosphäre. Auch im Dachgeschoss befindet sich ein modernes Vollbadezimmer, ausgestattet mit Dusche, Badewanne, Pissoir und Bidet, das Ihnen höchsten Komfort bietet. Ein weiteres Schlafzimmer im Dachgeschoss bietet zusätzliche Rückzugsmöglichkeiten und ist ideal für Gäste oder Familienmitglieder.

Diese Wohnung in Wischuer überzeugt durch ihre durchdachte Aufteilung und die vielseitigen Nutzungsmöglichkeiten. Ob als Ferienwohnung oder für den Eigennutz - hier finden Sie ein Zuhause, das Gemütlichkeit und Raum für persönliche Gestaltung verbindet. Die Wohnung bietet Ihnen die Freiheit, Ihre eigenen Akzente zu setzen und Ihren persönlichen Stil zu verwirklichen. Lassen Sie sich von der einzigartigen Lage und dem Charme dieser Immobilie begeistern!

Merkmale

  • Bezug: Nach Vereinbarung
  • Außen-Stellplatz
Die Wohnung eignet sich grundsätzlich auch für die Ferienvermietung, wodurch sich zusätzliche Nutzungsmöglichkeiten und Renditechancen ergeben.
Bei einer möglichen Auslastung von ca. 200 Tagen im Jahr und einem durchschnittlichen Übernachtungspreis von 120,00?€ lässt sich ein interessantes Ertragspotenzial realisieren - dies entspricht einem theoretischen Faktor von etwa 12,5.

Die angebotene Eigentumswohnung befindet sich in einem gepflegten Mehrfamilienhaus, das im Jahr 1995 errichtet wurde und insgesamt 20 Wohneinheiten umfasst. Die Fassade des Hauses wurde im Jahr 2018 neu gestrichen, was zur ansprechenden Optik des Gebäudes beiträgt. Die Heizungsanlage wurde 2021 auf eine moderne Gasheizung umgestellt, was für eine effiziente und umweltschonende Wärmeversorgung sorgt.

Die Wohnung selbst bietet eine attraktive Raumaufteilung und ist mit einem hochwertigen Fußbodenbelag ausgestattet, der sowohl aus Fliesen als auch aus Teppich besteht. Die Wände sind größtenteils mit Fliesen und Raufasertapete gestaltet, während die Decken ebenfalls mit Raufasertapete versehen sind.

Besonders hervorzuheben sind die Balkone, die sowohl eine Südwest- als auch eine Nordausrichtung bieten und somit für eine optimale Belichtung und Nutzung zu verschiedenen Tageszeiten sorgen. Ein Autostellplatz gehört ebenfalls zur Wohnung, was die Parkplatzsituation erheblich erleichtert.

Die Bewohner profitieren zudem von einem gemeinschaftlichen Waschmaschinenraum sowie einem neu sanierten Wellnessbereich, der eine finnische Sauna, eine Regendusche und einen gemütlichen Ruhebereich umfasst - ideal zum Entspannen und Abschalten. Der gemeinschaftliche Garten lädt zum Verweilen und zu geselligen Stunden im Freien ein.

Der Glasfaseranschluss liegt bereits im Haus an und wird zeitnah von der Telekom angeschlossen. Das monatliche Hausgeld beträgt 528 €, das die Instandhaltungs- und Betriebskosten abdeckt. Diese Wohnung bietet eine hervorragende Lebensqualität in einem harmonischen Wohnumfeld.

Grundrisse

Grundrisse
1 / 2

Realisiere Dein Projekt

Bausubstanz und Energie

Energieausweis

C
  • Baujahr1995
  • EnergieträgerGas
Immowelt logo

Preisdetails

Kaufpreis
249900 €
2.426,21 €/m²
Hausgeld
528 €
Provision für Käufer
provisionsfrei
Weitere Preisinformationen
1 Stellplatz
Geschätzte Gesamtkosten
269.893 €1
Kaufpreis
249.900 €
Notarkosten (1,5%)
3.749 €
Grunderwerbsteuer (6%)
14.994 €
Grundbucheintrag (0,5%)
1.250 €
1Der angezeigte Wert ist eine automatisch berechnete Schätzung von immowelt.
2Bei den Angaben handelt es sich um ortsübliche Werte. Individuelle Kosten können abweichen.

Lage

address-icon
WischuerRerik / Wischuer (18230)
Der Anbieter hat die genaue Adresse nicht freigegeben
Die beschauliche Ortschaft Wischuer liegt zwischen Rostock und Wismar direkt an der Ostsee und gehört zur ca. 6 km entfernten Gemeinde Rerik.

Naturliebhaber erreichen über zahlreiche Fuß- sowie Radwege in kurzer Zeit den Kilometerlangen weißen Sandstrand im bekannten Ostseebad Rerik.
Das Nord-Westlich gelegene Salzhaff lädt zum Baden und Angeln ein und ist für Sportler ein beliebtes Kite- und Windsurfgebiet.

Einkaufsmöglichkeiten, Tankstellen und ärztliche Einrichtungen befinden sich jeweils im ca. 6 km entfernten Neubukow oder Rerik.

In nur 30 Autominuten ist die Kreis-, Universitäts- und Hansestadt Wismar zu erreichen.
Vom Dorfkern aus erreichen Sie mit dem Bus Ihren Ausflugsort Rerik in nur 10 Minuten.
Die Autobahn A20 ist ca. 25 km entfernt und bringt Sie in ca. 45 Minuten in die Rostocker Innenstadt.

Weitere Informationen

Sonstiges Es liegt ein Energieverbrauchsausweis vor.
Dieser ist gültig bis 14.3.2031.
Endenergieverbrauch beträgt 91.00 kwh/(m²*a).
Wesentlicher Energieträger der Heizung ist Gas.
Das Baujahr des Objekts lt. Energieausweis ist 1995.
Die Energieeffizienzklasse ist C.

Eventuelle Malerarbeiten und der Austausch der Bodenbeläge obliegen dem neuen Eigentümer und sind bei der Kaufpreisbildung bereits wertmindernd berücksichtigt.

Die Küche und das Mobiliar sind kein Bestandteil des Kaufpreises.

Art des Energieausweises: Verbrauchsausweis
Energieverbrauch: 91,0 kWh/(m²*a)
Wesentliche Energieträger: Gas
Baujahr: 1995
Energieeffizienzklasse: C
Energieausweis gültig bis: 14.03.2031

Bitte haben Sie dafür Verständnis, dass unser Büro Ihre Anfrage nur bearbeiten kann, wenn folgende Daten vollständig angegeben werden:

- NAME
- WOHNANSCHRIFT
- TELEFONNUMMER
- E-MAIL ADRESSE

Alle Angaben basieren auf Informationen und Hinweisen, die wir vom Auftraggeber erhalten haben. Für deren Richtigkeit, Aktualität und Vollständigkeit können wir keine Gewähr übernehmen. Irrtümer und Zwischenverkauf bleiben vorbehalten.

Mit freundlichen Grüßen
Ihr Team von
Edelmann Immobilien-MV GmbH Stichworte Stellplatz vorhanden, Anzahl der Schlafzimmer: 3, Anzahl der Badezimmer: 2, Bundesland: Mecklenburg-Vorpommern

Weitere Services

Lust auf eine Besichtigung?
Eine Frage zur Immobilie?
Nachricht hinzufügen
Mit der Nutzung der oben angegebenen Telefonnummer oder durch Klicken auf „Kontaktieren“ akzeptierst Du die Allgemeinen Nutzungsbedingungen, denen Du jederzeit widersprechen kannst. Weitere Informationen zum Datenschutz

Über den Anbieter

Grubenstraße 35, 18055 Rostock
partner badge
10 Jahre Partnerschaft
Herr Lars Edelmann
Herr Lars EdelmannDein Kontakt
Online-ID: 25FM7MHWZ5DJ
Referenznummer: LER1.LE.1697
Edelmann-Immobilien-MV
title
Edelmann-Immobilien-MV
Bewertung: 4,2 von 5 Sternen
Nachricht hinzufügen
Mit der Nutzung der oben angegebenen Telefonnummer oder durch Klicken auf „Kontaktieren“ akzeptierst Du die Allgemeinen Nutzungsbedingungen, denen Du jederzeit widersprechen kannst. Weitere Informationen zum Datenschutz
Wie zufrieden bist du mit dieser Seite (nicht mit der Immobilie selbst)?