Die HAINBURG: Sonnig-südliches Altbauflair im 2. Liftstock - BALKON möglich!
Die vor kurzem zu neuem Glanz erweckte "Hainburg" stellt eine architektonische Besonderheit in Bezug auf die schmiedeeiserne und frei schwebende Treppenkonstruktion dar. Das Dachgeschoß wurde bereits ausgebaut und ein Personenlift errichtet. Erleben Sie diese fantastische Konzeption hautnah!
Ein Meisterwerk des Altbaus, der momentan mehrere Wohnungen zum Kauf offeriert. Von Gartenwohnungen über das erste bis zum zweiten Obergeschoß, mit 1 bis 5 Zimmern. Auch Zusammenlegungen sind möglich. Die Wohneinheiten werden mit Fernwärme beheizt und sind mit Holzkastenfenstern und Parkettböden ausgestattet. Insgesamt befinden sich die Objekte in einem guten, sofort bezugsfertigen Gesamtzustand!
WOHNUNGSBESCHREIBUNG
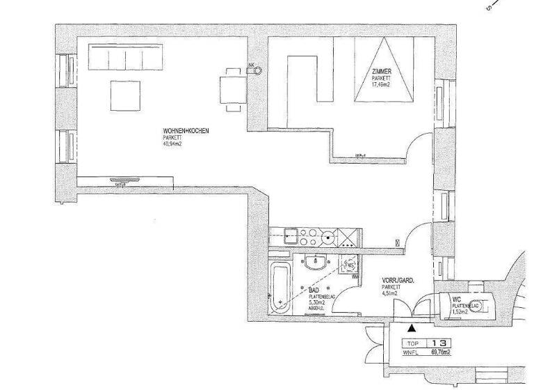
TOP 13 im zweiten Liftstock verfügt über zwei Zimmer und eine Wohnfläche im Ausmaß von ca. 70 qm. Hier erwartet Sie eine sehr gut aufgeteilte und helle Wohnung (Süd-Ausrichtung) mit folgenden Räumlichkeiten:
* der Vorraum (ca. 4,5 qm) * die südseitige Wohnküche (ca. 41 qm) mit voll ausgestatteter Einbauküche * das ruhige, ebenfalls in einen Innenhof orientierte Schlafzimmer (ca. 17,5 qm) * das Badezimmer mit und Wanne und Waschmaschinenanschluss (ca. 5,3 qm) * das separates WC mit Handwaschbecken
Nachstehend finden Sie eine Übersicht aller verfügbaren Einheiten:
TOP 5
Diese Zwei-Zimmer-Einheit befindet sich im Hochparterre, verfügt über eine Wohnfläche im Ausmaß von ca. 43 qm sowie einen gemütlichen Garten.
TOP 6
Die Ein-Zimmer-Wohnung im Hochparterre verfügt über eine Wohnfläche von ca. 33 qm sowie einen hübschen Garten.
TOP 7
Ebenfalls im Hochparterre befindet sich diese Zwei-Zimmer-Einheit mit einer Wohnfläche im Ausmaß von ca. 46 qm sowie einem privaten Garten.
ZUSAMMENLEGUNGSMÖGLICHKEITEN
Die Gartenwohnungen Top 5, Top 6 und Top 7 können zusammengelegt werden.
TOP 10
Der 3-Zimmer-Altbau befindet sich im ersten Liftstock und verfügt über ca. 71 qm Wohnfläche. Die Lage im Hoftrakt garantiert optimale Ruhe und Blick in den grünen Baumbestand.
TOP 11
Die im ersten Liftstock befindliche Zwei-Zimmer-Einheit verfügt über eine Wohnfläche im Ausmaß von ca. 55 qm. Die Wohnung in ruhiger Innenhoflage bietet einen sehr guten Grundriss und Grünblick.
TOP 13
Der bezugsfertige Zwei-Zimmer-Altbau befindet sich im zweiten Liftstock und bietet eine Wohnfläche im Ausmaß von ca. 70 qm. Hier erwartet Sie eine sehr gut aufgeteilte und helle Wohnung.
TOP 19
Die im dritten Liftstock gelegene Zwei-Zimmer-Einheit verfügt über eine Wohnfläche von ca. 57 qm. Die bezugsfertige Wohnung mit Top-Grundriss befindet sich in Hoflage mit Grünblick.
Dieses Objekt wird Ihnen unverbindlich und freibleibend zum Kauf angeboten. Als Vermittlungshonorar gelten die allgemeinen Geschäftsbedingungen und die Verordnung für Immobilienmakler des BM für Handel, Gewerbe und Industrie, BGBL. 297/1996. Für den Fall, dass es diesbezüglich zu einem entsprechenden Rechtsgeschäft kommt, verrechnen wir Ihnen eine Vermittlungsprovision von 3 Prozent der Kaufsumme zuzüglich der gesetzlichen Mehrwertsteuer. Wir möchten noch darauf hinweisen, dass wir in einem wirtschaftlichen Naheverhältnis zur Verkäuferin stehen.
Wir weisen darauf hin, dass zwischen dem Vermittler und dem zu vermittelnden Dritten ein familiäres oder wirtschaftliches Naheverhältnis besteht.
Zustand der ImmobilieAltbau (bis 1945), Massivhaus, Gepflegt
EnergieträgerFernwärme
Preisdetails
Kaufpreis
453000 €453.000 €
6.493,69 €/m²
Provision für Käufer
3% des Kaufpreises zzgl. 20% USt.
Lage
Hainburger Straße 47, Wien (1030)
Die wunderschön begrünte Allee "Hainburger Straße", eingebettet zwischen Rochusmarkt und Kardinal Nagl-Platz, ist ausgesprochen beliebt: Hier erreichen Sie sowohl die Wiener Innenstadt, den Bahnhof Wien-Mitte mit dem schicken Einkaufszentrum "The Mall", als auch für alle Sportlichen die grüne Lunge Wiens, den Prater, in nur wenigen Gehminuten.
Mit den Fernverbindungen sind Flughafen und Autobahn schnell zu erreichen. Bequem bringt Sie der City Airport Train in 16 Min. vom Verkehrsknoten Wien-Mitte zum Flughafen Wien. Sie erreichen fußläufig die Geschäfte des täglichen Bedarfs in der Landstraßer Hauptstraße. Mit der U3 - nur 80m vom Haus entfernt - ist man in 5 Minuten am Stephansplatz oder mit dem PKW in 5 Minuten auf der Autobahn. Auch die gastronomische Kurve ist im Steigen begriffen, zahlreiche neue Lokale haben aufgesperrt und eines der besten Fischlokale Wiens befindet sich gleich um die Ecke!
Der dritte Bezirk gilt generell als einer der ruhigeren und sicheren Bezirke in Wien. Der gesamte Bereich Hainburger Straße/Keinergasse ist eine verkehrsberuhigte Zone, es besteht daher kein Durchzugsverkehr - lediglich Anrainer-Parken. Man befindet sich für Großstadtverhältnisse nahezu in einer "Ruheoase".