Version: 8.24.0Navigation ĂĽberspringen
700.000 €
4 Zimmer  â€˘  128 m²  â€˘  375 m² GrundstĂĽck
Immowelt logo

Bungalow zum Kauf
700000 €
5.469 €/m²
4 Zimmer  â€˘  128 m²  â€˘  375 m² GrundstĂĽck

... ein lauschiges Plätzchen! - Großzügiger Atrium - Bungalow zur Modernisierung

Dieser attraktive Bungalow zeichnet sich vor allem durch seine gefragte, grĂĽne und dennoch zentrale Lage im Hamburger Westen aus!

Das Haus ist mit seinem Grundriss fĂĽr Familien ebenso attraktiv wie zum "Wohnen u. Arbeiten" und erfĂĽllt auch den Wunsch nach "barrierearmen" Wohnen.

Die Ausstattung ist gepflegt, bedarf jedoch einer Modernisierung in deren Zug die energetische Verbesserung des Gebäudes durch einen Austausch der Fenster und zeitgemäße Dachdämmung anzuraten ist. Diese Maßnahmen sind in Anbetracht der Werthaltigkeit des Grundstücks im Kaufpreis umfassend berücksichtigt.

Eine Besichtigung ist sehr zu empfehlen und jederzeit mit unserem BĂĽro zu vereinbaren, auch bezĂĽglich einer Finanzierung beraten wir Sie gern.


• Eleganter, eingeschossiger Reihenbungalow in ruhiger, gepflegter Wohnanlage
• Nach Süden ausgerichtet, umschließt das Haus u - förmig ein großes, offenes Atrium
• Die Bauweise ist massiv "Stein-auf-Stein" mit klassischer Flachdacheindeckung
• Weiß geschlämmte Verblendsteinfassade
• Dunkelgrüne Holzfenster mit Isolierverglasung aus 1983
• Beheizung und Warmwasserbereitung über Fernwärme der Hansestadt Hamburg
• Ein ca. 8 m² großer Abstell- / Heizungsraum ist vom Atrium aus zugänglich
• Das Haus ist nicht unterkellert
• Zur Wohnanlage gehören Müllboxen und Einzelgaragen im Gemeinschaftseigentum
• Der rückwärtige Westgarten ist naturbelassen und nicht einsehbar
• Der Vorgarten ist immergrün bepflanzt, ein lauschiges Plätzchen für den Morgenkaffee

Merkmale

  • Bezug: nach Vereinbarung
  • 1 Geschoss
  • 375 m² GrundstĂĽck
  • EinbaukĂĽche
  • Kein Keller
  • Garage
  • Gäste-WC
  • Garten

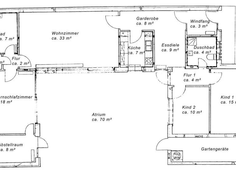
Grundrisse

Grundrisse
1 / 1

Realisiere Dein Projekt

Bausubstanz und Energie

Energieausweis

  • Baujahr1971
  • Zustand der ImmobilieMassivhaus, Gepflegt
  • HeizungsartZentralheizung
  • EnergieträgerFernwärme
Immowelt logo

Preisdetails

Kaufpreis
700000 €
5.468,75 €/m²
Provision für Käufer
Die zu zahlende Maklerprovision beträgt für den Käufer sowie für den Verkäufer gemäß § 656c, BGB, gleichermaßen 3,57 % inkl. der gesetzlichen MwSt. auf den Kaufpreis, verdient und zahlbar bei Abschluss des wirksamen Kaufvertrages.
Geschätzte Gesamtkosten
777.490 €1
Kaufpreis
700.000 €
Notarkosten (1,5%)
10.500 €
Grunderwerbsteuer (5,5%)
38.500 €
Provision für Käufer (3,57%)
24.990 €
Grundbucheintrag (0,5%)
3.500 €
1Der angezeigte Wert ist eine automatisch berechnete Schätzung von immowelt.
2Bei den Angaben handelt es sich um ortsübliche Werte. Individuelle Kosten können abweichen.

Lage

address-icon
Osdorf, Hamburg (22609)
Der Anbieter hat die genaue Adresse nicht freigegeben
• Bevorzugte Lage in herrlich grünem, zentralem Wohngebiet von Klein-Flottbek
• Einkaufsmöglichkeiten, Ärzte und Apotheken im fußläufig erreichbaren Elbe-Einkaufszentrum
• Kindergärten und alle Schultypen in unmittelbarer Umgebung
• Perfekte Anbindung an den ÖPNV: die Bahn 'S1' bringt Sie in ca. 20 Minuten in die Hamburger City sowie in ca. 45 Minuten geradewegs an den Flughafen
• Zur Bushaltestelle 'Langkamp' sind es nur 3 Minuten, der Bus 21 fährt Sie in 5 Minuten zum S-Bahnhof 'Klein Flottbek'
• Die Elbvororte bieten mit ihren zahlreichen Parks, Tennis- und Golfplätzen attraktive Freizeit-, Sport- und Erholungsmöglichkeiten
• Zum Elbstrand radeln Sie nur ein paar Minuten die Straße hinunter nach "Teufelsbrück"

Weitere Informationen

Stichworte Versorgung: Städtische Wasserversorgung, Städtische Stromversorgung

Weitere Services

Lust auf eine Besichtigung?
Eine Frage zur Immobilie?
Nachricht hinzufĂĽgen
Mit der Nutzung der oben angegebenen Telefonnummer oder durch Klicken auf „Kontaktieren“ akzeptierst Du die Allgemeinen Nutzungsbedingungen, denen Du jederzeit widersprechen kannst. Weitere Informationen zum Datenschutz

Ăśber den Anbieter

­Lauenstein & Lau GmbH & Co. KG
TrostbrĂĽcke 4, 20457 Hamburg
partner badge
Partnerschaft
Online-ID: 2n8db5h
Referenznummer: 2420
­Lauenstein & Lau GmbH & Co. KG
­Lauenstein & Lau GmbH & Co. KG
Bewertung: 4,9 von 5 Sternen
Nachricht hinzufĂĽgen
Mit der Nutzung der oben angegebenen Telefonnummer oder durch Klicken auf „Kontaktieren“ akzeptierst Du die Allgemeinen Nutzungsbedingungen, denen Du jederzeit widersprechen kannst. Weitere Informationen zum Datenschutz
Wie zufrieden bist du mit dieser Seite (nicht mit der Immobilie selbst)?