Version: 8.24.0Navigation überspringen
1.300.000 €
11 Zimmer  •  203,5 m²  •  545 m² Grundstück
Immowelt logo

Doppelhaushälfte zum Kauf
1300000 €
6.388 €/m²
11 Zimmer  •  203,5 m²  •  545 m² Grundstück

Geräumige Doppelhaushälfte mit viel Potential auf weitläufigem Grundstück am Siemenspark

Kurzbeschreibung München-Obersendling Objekt Die Doppelhaushälfte mit ca. 545 m² Grundstücksfläche bietet optimale Bedingungen für die Realisierung eines Bauprojekts oder einer Kernsanierung des Hauses. Gerne erstellen wir hierzu das passende Sanierungskonzept mit einem unverbindlichen Angebot. Ist man auf der Suche nach der Verwirklichung eines Familiendomizils oder nach einem lukrativen Investment, ist dieses Grundstück genau das Richtige. Die umliegende ruhige Nachbarschaft ist geprägt von gepflegten Einfamilien- und kleinen Mehrfamilienhäusern und liegt in unmittelbarer Nähe vom Siemenspark. Die Bebauung des Grundstücks richtet sich nach § 34 BauGB. Der Altbestand ist mit insgesamt 11 Zimmern ein wahres Raumwunder und verfügt über eine große überdachte Dachterrasse und einen weitläufigen Garten. Auf insgesamt ca. 204 m² Wohnfläche lassen sich wahre Wohnträume realisieren. Die abschließbare Einzelgarage und die großzügige Einfahrt bieten genügend Stellplatzmöglichkeiten. Ebenso wurde die Garage durch einen Anbau erweitert und kann idealerweise als zusätzliche Werkstatt genutzt werden.

Merkmale

  • Bezug: ab sofort
  • 545 m² Grundstück
  • Keller
  • Stellplatz
  • Gäste-WC
  • Garten

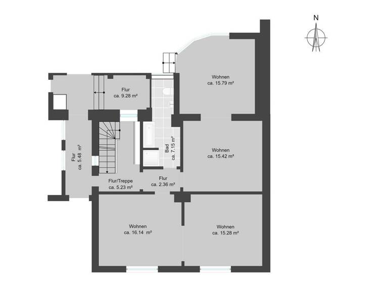
Grundrisse

Grundrisse
1 / 4

Realisiere Dein Projekt

Bausubstanz und Energie

Baujahr der Anlagentechnik: 2000

H
  • Baujahr1952
  • Zustand der ImmobilieMassivhaus, renovierungsbedürftig / sanierungsbedürftig
  • HeizungsartZentralheizung
  • EnergieträgerÖl
Immowelt logo

Preisdetails

Kaufpreis
1300000 €
6.387,58 €/m²
Provision für Käufer
3,57 % inkl. MwSt.
Geschätzte Gesamtkosten
1.417.910 €1
Kaufpreis
1.300.000 €
Notarkosten (1,5%)
19.500 €
Grunderwerbsteuer (3,5%)
45.500 €
Provision für Käufer (3,57%)
46.410 €
Grundbucheintrag (0,5%)
6.500 €
1Der angezeigte Wert ist eine automatisch berechnete Schätzung von immowelt.
2Bei den Angaben handelt es sich um ortsübliche Werte. Individuelle Kosten können abweichen.

Lage

address-icon
Thalk.Obersendl.-Forsten-Fürstenr.-SollnMünchen (81379)
Der Anbieter hat die genaue Adresse nicht freigegeben
Die Immobilie befindet sich inmitten einer gehobenen Wohnlage von Obersendling, einem grünen und familienfreundlichen Stadtteil im Süden von München. Zahlreiche Einkaufs- und Freizeitmöglichkeiten, mehrere Kinderspielplätze, ein modernes Ärztehaus, Schulen, Fitnesscenter, ein Pflegeheim u.v.m. befinden sich in fußläufiger Entfernung. Die schönen Isarauen und vielen Bademöglichkeiten machen Obersendling zu einem Stadtteil mit hohem Erholungs- und Freizeitwert. Der nah gelegene Siemenspark bietet für alle Freizeitsportler ein ideales Terrain und von Ihrer neuen Wohnung aus sind Sie in wenigen Minuten im Tierpark Hellabrunn oder bei einem Picknick an der schönen Isar. Genau wie Rad- und Wanderwege, Biergärten und Traditionswirtschaften auch zu Fuß ganz schnell zu erreichen sind. Ein wesentlicher Vorteil der Lage ist die hervorragende Verkehrsanbindung an das Alpenvorland und die Münchener Innenstadt. Die S-Bahn Haltestelle Siemenswerke liegt nur wenige Gehminuten vor Ihrer Haustür. In nur 15 Minuten erreichen Sie mit der S7 den Münchener Hauptbahnhof. Und auch die Bushaltestelle Siemensallee liegt direkt vor der Haustür und bringt Sie bequem zum U-Bahnhof Obersendling. Mit der U3 erreichen Sie in nur 10 Minuten die Innenstadt. Und stadtauswärts können Sie z.B. direkt mit der Bahn von der S-Bahn Haltestelle zum Tegernsee fahren. Mit dem Auto erreichen Sie vom Isartower Süd die schönsten Regionen des Alpenvorlandes bereits nach kurzer Fahrzeit. Zu den Autobahnen Richtung Lindau und Garmisch brauchen Sie nur wenige Minuten, auch die Autobahn nach Salzburg ist über den Mittleren Ring problemlos erreichbar.

Weitere Informationen

Sonstiges Sämtliche Bilder in diesem Exposé sind urheberrechtlich geschützt und dürfen nicht durch Dritte verwendet bzw. weitergegeben werden. Dieses Exposé wurde mit Sorgfalt zusammengestellt. Alle darin enthaltenen Angaben über das Objekt beruhen auf Informationen des Verkäufers. Eine Haftung für deren Richtigkeit und Vollständigkeit können wir nicht übernehmen. Stichworte Garage vorhanden, Nutzfläche: 260,00 m², Anzahl der Badezimmer: 2, Anzahl der separaten WCs: 1, Bundesland: Bayern, 2 Etagen

Weitere Services

Lust auf eine Besichtigung?
Eine Frage zur Immobilie?
Nachricht hinzufügen
Mit der Nutzung der oben angegebenen Telefonnummer oder durch Klicken auf „Kontaktieren“ akzeptierst Du die Allgemeinen Nutzungsbedingungen, denen Du jederzeit widersprechen kannst. Weitere Informationen zum Datenschutz

Über den Anbieter

Ungererstraße 75, 80805 München
Herr Felix Uhl
Herr Felix UhlDein Kontakt
Online-ID: 2nzw754
Referenznummer: 1/20/020-021/014027
SIS-Sparkassen-Immobilien-Service GmbH
title
SIS-Sparkassen-Immobilien-Service GmbH
Bewertung: 4,5 von 5 Sternen
Nachricht hinzufügen
Mit der Nutzung der oben angegebenen Telefonnummer oder durch Klicken auf „Kontaktieren“ akzeptierst Du die Allgemeinen Nutzungsbedingungen, denen Du jederzeit widersprechen kannst. Weitere Informationen zum Datenschutz
Wie zufrieden bist du mit dieser Seite (nicht mit der Immobilie selbst)?