




Haus zum Kauf - Erstbezug790000 €4.051 €/m²5 Zimmer • 195,3 m² • 1.760,3 m² Grundstück
790000 €
4.051 €/m²
5 Zimmer • 195,3 m² • 1.760,3 m² Grundstück
*Bauhausstil Baujahr 2024* Gehobenes Ambiente und perfekte Energieeffizienz!
Merkmale
- Bezug: nach Absprache
- 1.760,3 m² Grundstück
- Einbauküche
- Kein Keller
- 3 Stellplätze
- Gäste-WC
- Garten
- Terrasse
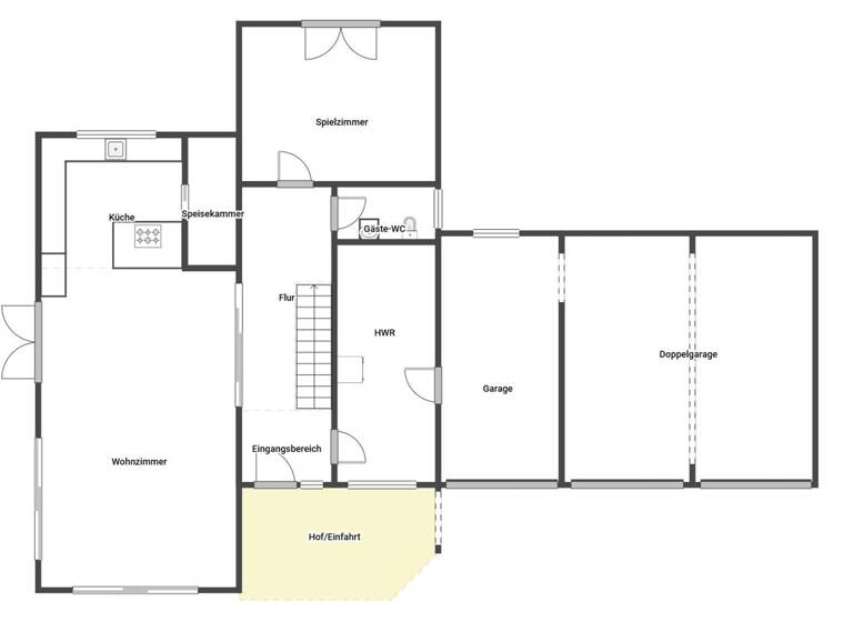
Grundrisse
Grundrisse
1 / 2
Virtueller Rundgang
3D tour

Realisiere Dein Projekt
Bausubstanz und Energie
Energieausweis
A+
- Baujahr2024
- Zustand der ImmobilieErstbezug
- HeizungsartFußbodenheizung
- EnergieträgerElektro
Preisdetails
Kaufpreis
790000 €
4.051,28 €/m²
Provision für Käufer
Die Provision i.H.v. 2,38 % inkl. MwSt. ist mit Kaufvertragsbeurkundung fällig, sofern der Verkaufspreis über 83.000,00 € liegt.
Liegt der Verkaufspreis dagegen bei/unter 83. Weitere Informationen siehe Provisionshinweis.
Liegt der Verkaufspreis dagegen bei/unter 83. Weitere Informationen siehe Provisionshinweis.
Geschätzte Gesamtkosten
868.052 €1
Kaufpreis
790.000 €
Kaufnebenkosten
78.052 €
2Notarkosten (1,5%)
11.850 €
Grunderwerbsteuer (5,5%)
43.450 €
Provision für Käufer (2,38%)
18.802 €
Grundbucheintrag (0,5%)
3.950 €
1Der angezeigte Wert ist eine automatisch berechnete Schätzung von immowelt.
2Bei den Angaben handelt es sich um ortsübliche Werte. Individuelle Kosten können abweichen.
Lage

Burkau (01906)
Der Anbieter hat die genaue Adresse nicht freigegeben
Weitere Informationen
Weitere Services
Lust auf eine Besichtigung?
Eine Frage zur Immobilie?
Über den Anbieter
Online-ID: 26K2K6QB6HIR
Referenznummer: 46ca98a978
Wie zufrieden bist du mit dieser Seite (nicht mit der Immobilie selbst)?




