Version: 8.25.1Navigation überspringen
McMakler GmbH
279.000 €
8 Zimmer  •  180 m²  •  292 m² Grundstück

Einfamilienhaus zum Kauf
279000 €
1.550 €/m²
8 Zimmer  •  180 m²  •  292 m² Grundstück

Familienfreundliches Haus mit vielseitiger Aufteilung

Objektnr: 1070646

Dieses geräumige Haus bietet eine solide Grundsubstanz und die Möglichkeit, ein Zuhause nach eigenen Vorstellungen zu gestalten. Die Elektrik wurde ca. 2014 erneuert, ebenso wie die überwiegend ausgetauschten Fenster. Zwei Dachflächen wurden 2016 modernisiert. Heizung und Fassade entsprechen nicht mehr dem heutigen Standard und bieten Raum für eine zukunftsorientierte Sanierung. Das Haus steht unter Denkmalschutz.

Die durchdachte Raumaufteilung ermöglicht vielseitige Nutzung:

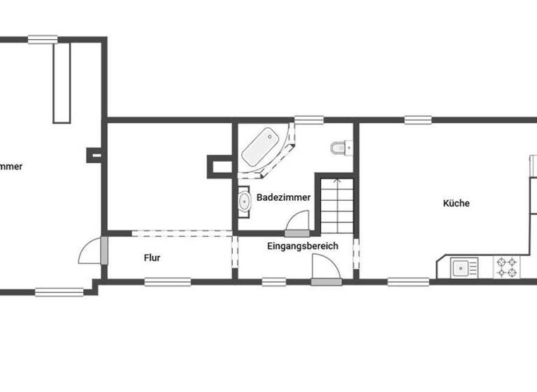
Im Erdgeschoss befindet sich eine kleine Ein-Zimmer-Wohnung, ergänzt durch mehrere Abstellräume und einen Gewölbekeller. Dieser Bereich eignet sich hervorragend als Gästebereich oder Rückzugsort für erwachsene Kinder.

Eine Treppe im Hof führt in das erste Obergeschoss mit einer großzügigen Küche samt Vorratsraum, einem Tageslichtbad mit Eckbadewanne sowie einem weitläufigen Wohnzimmer mit Kamin. Ein zusätzlicher Abstellraum, der derzeit als Brennholzlager dient, bietet weiteren Stauraum.

Im Obergeschoss stehen drei Schlafzimmer, ein Ankleidezimmer und ein Tageslichtbad mit Dusche zur Verfügung - ideal für Familien. Eine kleine Treppe führt in den Spitzboden, der zwei zusätzliche Schlafzimmer bereithält.

Zur Immobilie gehören zudem eine sonnige Terrasse, ein kleiner Garten und eine Garage, die das Angebot abrunden.

Dieses Haus ist eine perfekte Wahl für Käufer, die Raum und Gestaltungsmöglichkeiten suchen, handwerkliches Geschick mitbringen und das Potenzial der Immobilie erkennen, die mit etwas Einsatz zu neuem Leben erweckt werden kann.

Aufgrund von Denkmalschutz ist kein Energieausweis erforderlich.

Merkmale

  • Bezug: nach Absprache
  • 292 m² Grundstück
  • Einbauküche
  • Kein Keller
  • Stellplatz
  • Garten
  • Terrasse
  • Badezimmer: Badewanne, Bad mit Dusche

Grundrisse

Grundrisse
1 / 3

Virtueller Rundgang

3D tour

Realisiere Dein Projekt

Bausubstanz und Energie

Energieausweis

Ein Energieausweis ist für diesen Gebäudetyp nicht notwendig.
  • Zustand der Immobilierenovierungsbedürftig / sanierungsbedürftig
  • HeizungsartZentralheizung
  • EnergieträgerGas
MediumRectangleTop

Preisdetails

Kaufpreis
279000 €
1.550 €/m²
Provision für Käufer
Käufer-Provision: 5,95 % inkl. MwSt., sofern der Verkaufspreis über 83.000,00 € liegt. Die Provision ist mit Beurkundung des Kaufvertrages fällig.

Liegt der Verkaufspreis dagegen bei/unter 83. Weitere Informationen siehe Provisionshinweis.
Geschätzte Gesamtkosten
301.404 €1
Kaufpreis
279.000 €
Notarkosten (1,5%)
4.185 €
Grunderwerbsteuer (6%)
16.740 €
Provision für Käufer (0,03%)
84 €
Grundbucheintrag (0,5%)
1.395 €
1Der angezeigte Wert ist eine automatisch berechnete Schätzung von immowelt.
2Bei den Angaben handelt es sich um ortsübliche Werte. Individuelle Kosten können abweichen.

Lage

address-icon
Klein-UmstadtGroß-Umstadt (64823)
Der Anbieter hat die genaue Adresse nicht freigegeben
Lage: Attraktive Lage in Groß-Umstadt-Klein-Umstadt mit guten Voraussetzungen für Selbstnutzer
Bildung und Betreuung: Gutes Bildungs- und Betreuungsangebot mit Schule und Kindergarten (max. 3 km Entfernung)
Nahversorgung: Anlaufstellen wie Supermarkt, Apotheke, Postfiliale und Bankfiliale in einem Radius von max. 6 km
Anbindung: Bahnhof und Autobahn komfortabel erreichbar

Weitere Informationen

Provisionshinweis Käufer-Provision: 5,95 % inkl. MwSt., sofern der Verkaufspreis über 83.000,00 € liegt. Die Provision ist mit Beurkundung des Kaufvertrages fällig.

Liegt der Verkaufspreis dagegen bei/unter 83.000,00 €, ist die fest vereinbarte Mindestprovision i.H.v. mind. 5.950,00 € inkl. MwSt. mit Kaufvertragsbeurkundung fällig. Sonstiges Vereinbaren Sie noch heute einen Besichtigungstermin!
_____________________________________________________

Alle Angaben sind ohne Gewähr und basieren ausschließlich auf Informationen, die uns von unserem Auftraggeber zur Verfügung gestellt wurden. Wir übernehmen keine Gewähr für die Vollständigkeit, Richtigkeit und Aktualität der Angaben. Stichworte Gesamtfläche: 180,00 m², Anzahl der Schlafzimmer: 7, Anzahl der Badezimmer: 3, Anzahl Terrassen: 1, 2 Etagen Sonstiges/Wohnen: Einliegerwohnung

Weitere Services

Lust auf eine Besichtigung?
Eine Frage zur Immobilie?
Nachricht hinzufügen
Mit der Nutzung der oben angegebenen Telefonnummer oder durch Klicken auf „Kontaktieren“ akzeptierst Du die Allgemeinen Nutzungsbedingungen, denen Du jederzeit widersprechen kannst. Weitere Informationen zum Datenschutz

Über den Anbieter

Am Postbahnhof 17, 10243 Berlin
Ihr McMakler TeamDein Kontakt
Online-ID: 26KBFX8QGC5A
Referenznummer: edc19ba26e
McMakler GmbH
McMakler GmbH
Nachricht hinzufügen
Mit der Nutzung der oben angegebenen Telefonnummer oder durch Klicken auf „Kontaktieren“ akzeptierst Du die Allgemeinen Nutzungsbedingungen, denen Du jederzeit widersprechen kannst. Weitere Informationen zum Datenschutz
MediumRectangleTop
MediumRectangleBottom
MediumRectangleTop
Wie zufrieden bist du mit dieser Seite (nicht mit der Immobilie selbst)?