Version: 8.24.1Navigation ĂĽberspringen
950.000 €
590 m² Grundstück
Immowelt logo

GrundstĂĽck zum Kauf
950000 €
1.610 €/m²
590 m² Grundstück

Traumhaftes Grundstück mit Panoramablick in der Nähe von Port de Soller

Dieses fantastische Grundstück in Port de Soller zeichnet sich durch seine erstklassige Lage aus, die einen atemberaubenden Blick auf die umliegenden Berge und die halbe Bucht von Puerto de Soller bietet. Mit einer grosszügigen bebaubaren Fläche bietet es eine ideale Gelegenheit für die Realisierung eines exklusiven Wohnprojekts.

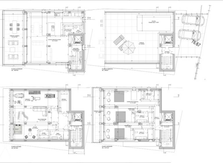
Das vorliegende Projekt sieht die Nutzung eines Kellergeschosses vor, was aufgrund der Hanglage des Grundstücks sinnvoll ist. Hier kann ein Weinkeller, eine Sauna und/oder ein Fitnessraum untergebracht werden. Zusätzlich ist ein Swimmingpool auf dem Dach des Gebäudes geplant, um die spektakuläre Aussicht in vollen Zügen zu genießen. Die Baugenehmigung wurde bereist erteilt. Somit kann mit dem Bau jederzeit begonnen werden.

Der angegebene Preis bezieht sich ausschließlich auf das Grundstück mit dem Basisbauprojekt, jedoch nicht auf die Fertigstellung des Baus. Dieses Grundstück wird von einem Unternehmen verkauft, daher fällt statt der üblichen Grunderwerbsteuer die Mehrwertsteuer
von 21 % an.

Diese einmalige Gelegenheit bietet Ihnen die Möglichkeit, ein exklusives Anwesen in einer der begehrtesten Gegenden von Puerto de Soller zu verwirklichen und von einer einzigartigen Lebensqualität inmitten einer spektakulären Naturkulisse zu profitieren.

Hinweis: Die hier gezeigten Entwürfe dienen lediglich der Illustration und sind unverbindliche, künstlerische Darstellungen. Änderungen in Ausführung, Ausstattung und Abmessungen der Immobilie bleiben vorbehalten.
#ref:5496

Merkmale

  • 590 m² GrundstĂĽck

Grundrisse

Grundrisse
1 / 5

Realisiere Dein Projekt

Bausubstanz und Energie

Der Anbieter hat keine Informationen zum Energieverbrauch bereit gestellt.
  • Baujahr0
Immowelt logo

Preisdetails

Kaufpreis
950000 €
1.610,17 €/m²
Provision für Käufer
Bitte beachte, das Angebot kann bei Vertragsabschluss die Zahlung einer Provision beinhalten. Weitere Informationen erhältst Du vom Anbieter.

Lage

address-icon
SĂłller (07108)
Der Anbieter hat die genaue Adresse nicht freigegeben

Weitere Informationen

Stichworte Bundesland: Mallorca

Weitere Services

Lust auf eine Besichtigung?
Eine Frage zur Immobilie?
Nachricht hinzufĂĽgen
Mit der Nutzung der oben angegebenen Telefonnummer oder durch Klicken auf „Kontaktieren“ akzeptierst Du die Allgemeinen Nutzungsbedingungen, denen Du jederzeit widersprechen kannst. Weitere Informationen zum Datenschutz

Ăśber den Anbieter

Placa Hostals 8, 07320 SANTA MARĂŤA DEL CAMĂŤ
partner badge
Partnerschaft
Living Blue MallorcaDein Kontakt
Online-ID: 2le5n52
Referenznummer: 5496
Living Blue Mallorca
Living Blue Mallorca
Bewertung: 5 von 5 Sternen
Nachricht hinzufĂĽgen
Mit der Nutzung der oben angegebenen Telefonnummer oder durch Klicken auf „Kontaktieren“ akzeptierst Du die Allgemeinen Nutzungsbedingungen, denen Du jederzeit widersprechen kannst. Weitere Informationen zum Datenschutz
Wie zufrieden bist du mit dieser Seite (nicht mit der Immobilie selbst)?