Die Immobilie ist in Massivbauweise mit einer Klinkerfassade und einem Krüppelwalmdach mit Gaube gebaut. Sie verfügt über Kunststofffenster mit innenliegenden Sprossen und eine Erdgasheizung von Junkers (Bj. 2021). Außerdem gehören ein PKW-Stellplatz, eine gepflasterte Zufahrt, eine Terrasse, eine SAT-Anlage und ein schön angelegter Garten zur Ausstattung.
Im Erdgeschoss befinden sich ein Eingangsflur mit offener Holztreppe ins Obergeschoss, ein Duschbad und Fenster, ein helles und großes Wohnzimmer mit Zugang zur Terrasse sowie eine hell geflieste Küche mit Einbauküche und Platz für eine Sitzecke.
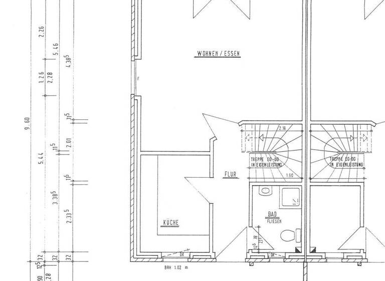
Im Obergeschoss gibt es einen Flur, drei Zimmer und ein Wannenbad mit Handtuchheizkörper und Fenstern.
Der Keller umfasst einen Flur sowie zwei beheizte Räume die ideal als Büro, Hobby oder Gästezimmer genutzt werden können. Ebenfalls befindet sich hier ein Hauswirtschaftsraum mit Waschmaschinenanschluss. Der Spitzboden kann als Lagerfläche genutzt werden.
Diese Immobilie wird mit einem bestehenden Mietverhältnis verkauft, wobei die Mieteinnahmen jährlich ca. 6.156,00 Euro betragen. Für weitere Informationen oder Fragen, stehe wir Ihnen gerne zur Verfügung.
Merkmale
vermietet
375 m² Grundstück
voll erschlossen
Einbauküche
Badezimmer: Badewanne, Bad mit Dusche
Keller
Terrasse
Garten
Individuelle Ausstattungsmerkmale:
- Stellplatz - gepflegtes Grundstück - Garten
Grundrisse
Grundrisse
1 / 3
Bausubstanz und Energie
Energieausweis
D
Baujahr1995
Zustand der ImmobilieMassivhaus, Gepflegt
HeizungsartZentralheizung
EnergieträgerGas
Preisdetails
Kaufpreis
199000 €199.000 €
2.163,04 €/m²
Provision für Käufer
3,57 % inkl. MwSt. Unser Immobilienbüro hat einen provisionspflichtigen Maklervertrag mit dem Verkäufer in gleicher Höhe abgeschlossen.
Weitere Preisinformationen
Ist-Mieteinnahmen pro Jahr: 6.156,00 EUR
Geschätzte Gesamtkosten
222.024 €1
Kaufpreis
199.000 €
Kaufnebenkosten
23.024 €
2
Notarkosten (1,5%)
2.985 €
Grunderwerbsteuer (6%)
11.940 €
Provision für Käufer (3,57%)
7.104 €
Grundbucheintrag (0,5%)
995 €
1Der angezeigte Wert ist eine automatisch berechnete Schätzung von immowelt.
2Bei den Angaben handelt es sich um ortsübliche Werte. Individuelle Kosten können abweichen.
Lage
Retgendorf, Dobin am See (19067)
Der Anbieter hat die genaue Adresse nicht freigegeben
Diese gepflegte Doppelhaushälfte befindet sich in der Gemeinde Dobin am See, im OT Retgendorf. Der ruhige Ort ist direkt am Schweriner See gelegen, Kindergarten und Tagesmütter sind vorhanden. Die Landeshauptstadt Schwerin mit Geschäften aller Art, vielen Restaurants, Theater u. weiteren Einrichtungen für Kulturveranstaltungen, Ärzten, Krankenhaus usw. ist etwa 15 km von Retgendorf entfernt, Bis Leezen sind es ca. 8 km, wo ebenfalls Einkaufsmöglichkeiten, Ärzte, Friseur, Bank, Apotheke u.m. vorhanden sind. Schulen sind in Cambs und Leezen. Bis zur A 14 u. zur B 104 sind es ca. 5 km.
Weitere Informationen
Sonstiges
Wir weisen darauf hin, dass unsere Angebotsangaben auf uns erteilter Informationen basieren und deshalb für deren Richtigkeit und Vollständigkeit keine Haftung übernommen wird. Unsere Angaben sind freibleibend und unverbindlich. Irrtum und Zwischenverkauf bleibt ausdrücklich vorbehalten.
Stichworte
Anzahl Terrassen: 1, Bundesland: Mecklenburg-Vorpommern, modernisiert: 2021