Die WG ist voll ausgestattet und das Zimmer ist Teilmöbliert.
Merkmale
frei ab 01.05.2026
2. Geschoss
Einbauküche
Personenaufzug
Bad/WC getrennt, Gäste-WC
teilweise möbliert
Bad mit Dusche
WG-geeignet
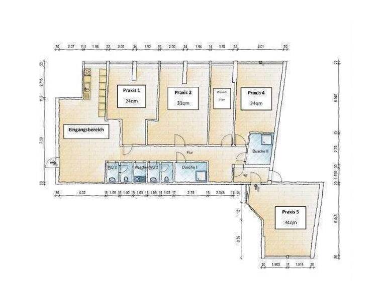
Grundrisse
Grundrisse
1 / 1
Realisiere Dein Projekt
Bausubstanz und Energie
Energieausweis
Endenergieverbrauch (Wärme)
Mietkosten
Warmmiete
610 €
Kaltmiete
8,82 €/m²
300 €
Nebenkosten
310 €
Heizkosten
in Nebenkosten enthalten
Kaution
900 €900 €
Lage
Schweiggerstraße 2, Glockenhof, Nürnberg (90478)
Die Lage der WG ist sehr Zentral. Der Hauptbahnhof ist zu Fuß in ca. 10 Minuten zu erreichen. Eine Straßenbahnhaltestelle ist in unmittelbarer Nähe. Alle Geschäfte des täglichen Bedarfs sind zu Fuß ohne Probleme zu erreichen.
Auch die Innenstadt ist Fußläufig in nur 15 Minuten zu erreichen.
Weitere Informationen
Allgemeines
Die WG befindet sich in einem größeren Wohn- und Geschäftshaus im 2.Stock und kann bequem per Aufzug erreicht werden.
Die WG ist in insgesamt 5 Zimmer aufgeteilt. Im Eingangsbereich läd ein Sofa zum verweilen ein, gleich gegenüber befindet sich der Koch- und Essbereich. Über den großer Flur gelangt man zu den Zimmern und den Sanitäranlagen.
Kontakt & Besichtigungstermine
Vielen Dank für Ihr Interesse an dieser bezaubernden Wohnung! Bitte beachten Sie, dass wir derzeit ausschließlich per E-Mail für Anfragen oder Kontaktanfragen über Immowelt zur Verfügung stehen. Wir möchten sicherstellen, dass jede Anfrage sorgfältig bearbeitet und beantwortet wird, um Ihnen den bestmöglichen und schnellen Service zu bieten.
Wenn Sie weitere Informationen oder einen Besichtigungstermin wünschen, bitten wir Sie höflich, eine Kontaktanfrage zu senden. Unser engagiertes Team wird sich umgehend mit Ihnen per Mail in Verbindung setzen und Ihnen alle gewünschten Details zur Verfügung stellen. Wir sind bestrebt, Ihre Fragen schnell und präzise zu beantworten, um Ihnen bei der Entscheidungsfindung behilflich zu sein.
Wir bitten um Ihr Verständnis für diese Vorgehensweise, da wir sicherstellen möchten, dass alle Anfragen effizient und zeitnah bearbeitet werden. Wir freuen uns darauf, von Ihnen zu hören und Sie bei Ihrem Interesse an dieser traumhaften Wohnung unterstützen zu können.
Stichworte
WG: Anzahl Bewohner Frauen: 4