Version: 8.24.0Navigation überspringen
Preis auf Anfrage
2.780 m² Grundstück
Immowelt logo

Sonstiges zum Kauf
2.780 m² Grundstück

Gewerbegrundstück (3.140m2) im Autobahnkreuz A19 und A20, Lagerhalle, Bürofläche

Gewerbegrundstück mit einer Fläche von ca. 2.780 m², bebaut mit einer Hallenanlage einschließlich Lager- sowie Verwaltungs- und Sozialflächen. Die Grundstücksfreiflächen sind überwiegend gepflastert.

Die Bebauung wurde im Jahr 1995 errichtet. Die Gründung erfolgte über Einzel- und Streifenfundamente. Die Außenwände der Halle sind als Sandwichpaneele mit kunststoffbeschichteten Oberflächen ausgeführt. Die inneren Trennwände im Büro- und Sozialbereich bestehen aus Kalksandsteinmauerwerk.

Das Dach der Halle ist als Satteldach ausgebildet und mit kunststoffbeschichteten Sandwich-Dachelementen eingedeckt. Die Fenster sind zweifach isolierverglast. In den Bürobereichen sind abgehängte Akustikdecken vorhanden.

Die bebaute Fläche beträgt ca. 386 m².

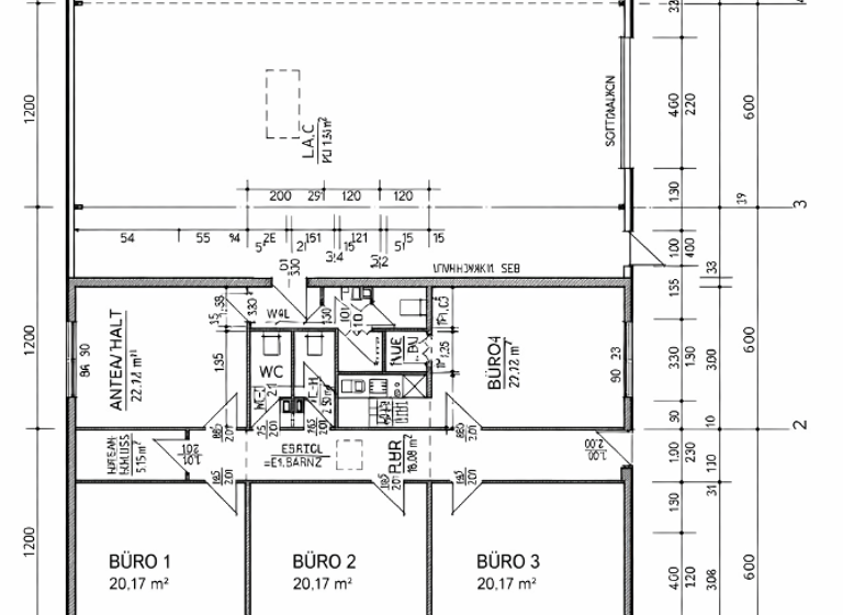
Büro-, Verwaltungs- und Sozialflächen

Der Büro-, Verwaltungs- und Sozialbereich umfasst insgesamt ca. 150 m². Enthalten sind vier Büroräume, ein Aufenthaltsraum, Teeküche, Duschen, WC-Anlagen, Flurflächen sowie ein Hausanschlussraum.

Flächenaufstellung:
Büro 1: ca. 22 m²
Büro 2: ca. 20 m²
Büro 3: ca. 22 m²
Büro 4: ca. 20 m²
Aufenthaltsraum: ca. 20 m²

Es sind insgesamt drei WC-Anlagen vorhanden.

Derzeit ist das Objekt für monatlich 1.452,-€ netto zzgl. Ust. sowie Betriebskosten von rd. 300,-€ langjährig vermietet.

Für weitere Informationen stehen wir Ihnen gerne vor Ort persönlich zur Verfügung.

Bei Zustandekommen eines Kaufvertrages wird eine 3,57% Käuferprovision vom Kaufpreis inkl. MwSt. von 19% verdient und fällig.

Merkmale

  • 2.780 m² Grundstück
  • Teeküche

Grundrisse

Grundrisse
1 / 1

Realisiere Dein Projekt

Bausubstanz und Energie

Der Anbieter hat keine Informationen zum Energieverbrauch bereit gestellt.
  • Baujahr1995
  • Zustand der ImmobilieGepflegt
Immowelt logo

Preisdetails

Provision für Käufer
Bitte beachte, das Angebot kann bei Vertragsabschluss die Zahlung einer Provision beinhalten. Weitere Informationen erhältst Du vom Anbieter.

Lage

address-icon
Kavelstorf (18196)
Der Anbieter hat die genaue Adresse nicht freigegeben
Der Gewerbestandort Kavelsdorf befindet sich im unmittelbaren Bereich des Autobahnkreuzes der Bundesautobahnen A20 und A19. Dadurch besteht eine direkte Anbindung an das überregionale Autobahnnetz.

Die Hansestadt Rostock ist in kurzer Fahrzeit erreichbar. Über den Hafen Rostock bestehen Fährverbindungen in Richtung Skandinavien und Osteuropa.

Das Umfeld ist überwiegend gewerblich geprägt. Ansässig sind insbesondere Speditions-, Logistik- und Entsorgungsunternehmen. Ergänzend sind gewerbliche Fachhandels- und Dienstleistungsbetriebe vorhanden, unter anderem aus den Bereichen Fahrzeugtechnik, Elektrotechnik und technische Dienstleistungen.

Weitere Informationen

Sonstiges Alle tatsächlichen und rechtlichen Angaben in diesem Exposé sind mit größtmöglicher Sorgfalt zusammengestellt worden. Die genannten Daten erheben keinen Anspruch auf Vollständigkeit. Unser Angebot ist freibleibend und unverbindlich. Sämtliche Objektdaten stammen vom Eigentümer. Das gilt insbesondere für die vom Eigentümer übermittelten Angaben zu Flächen, Rauminhalten, Mieten und sonstigen Wert bestimmenden Faktoren. WFM Immobilienservice hat diese Daten nicht überprüft. Der Eigentümer behält sich die Entscheidung vor, ob, wann, an wen, und zu welchen Bedingungen das Objekt vermietet wird.
Einen individuellen Besichtigungstermin können wir gern telefonisch vereinbaren.
Für Fragen stehen wir Ihnen sehr gern zur Verfügung. Sie erreichen uns in Neumünster unter 04321.853 88 81 auch nach 18.00 Uhr und am Samstag. Bitte beachten Sie, daß wir ausschließlich Anfragen unter Angabe der vollständigen Infrastruktur bearbeiten: Vorname, Nachname, Rufnummer, Anschrift, E-Mailadresse.
Ein Energieausweis befindet sich in der Erstellung. Stichworte Lagerfläche: 211,54 m², Nutzfläche: 25,00 m², Gesamtfläche: 386,00 m², Bürofläche: 150,00 m², Anzahl der separaten WCs: 3

Weitere Services

Lust auf eine Besichtigung?
Eine Frage zur Immobilie?
Nachricht hinzufügen
Mit der Nutzung der oben angegebenen Telefonnummer oder durch Klicken auf „Kontaktieren“ akzeptierst Du die Allgemeinen Nutzungsbedingungen, denen Du jederzeit widersprechen kannst. Weitere Informationen zum Datenschutz

Über den Anbieter

POSTANSCHRIFT: Mühlenhof 1, 24534 Neumünster
Herr Boris Weder
Herr Boris WederDein Kontakt
Online-ID: 2n93n5a
Referenznummer: 822
WFM Immobilien GmbH
title
WFM Immobilien GmbH
Nachricht hinzufügen
Mit der Nutzung der oben angegebenen Telefonnummer oder durch Klicken auf „Kontaktieren“ akzeptierst Du die Allgemeinen Nutzungsbedingungen, denen Du jederzeit widersprechen kannst. Weitere Informationen zum Datenschutz
Wie zufrieden bist du mit dieser Seite (nicht mit der Immobilie selbst)?