Version: 8.25.1Navigation überspringen
Heimat Österreich gemeinnützige Wohnungs- u. Siedlungsges. mbH
1.030 €
3 Zimmer  •  78,8 m²  •  2. Geschoss

Wohnung zur Miete - Erstbezug
1.030 €
3 Zimmer  •  78,8 m²  •  2. Geschoss

Neubau-Erstbezug im "ein viertel grün" - hochwertig wohnen mit Balkon & Tiefgarage

Willkommen in Ihrem neuen Zuhause in Wiener Neustadt!

In unserem neuen Wohnquartier trifft modernes Wohnen auf naturnahe Umgebung - ideal für junge Familien, Paare sowie Einzelpersonen die Wert auf Lebensqualität, Gemeinschaft und Nachhaltigkeit legen.

Das Projekt bietet besten Wohnkomfort für Familien, direkt im Quartier befindet sich ein moderner Kindergarten. Hier werden Ihre Kleinen optimal betreut - und das ganz in Ihrer Nähe Ihres Wohnortes. 

Nach dem Kindergarten können sich die Kinder noch auf den diversen Spiel- und Bewegungsmöglichkeiten austoben, welche sich über das gesamte Areal erstrecken. 

Ein eigener Quartierstreff sorgt für regen Austausch unter Nachbarn und lässt garantiert neue Freundschaften bei Groß und Klein entstehen. 

Das gesamte Areal ist verkehrsberuhigt und umgeben von Grünflächen. Sie müssen jedoch aufgrund der hervorragenden Lage nicht auf die Annehmlichkeiten der Stadt verzichten. 

Diverse Geschäfte des täglichen Bedarfs befinden sich in unmittelbarer Nähe und sind fußläufig erreichbar (Merkur City).

Hier die Details zu unserem Projekt im Überblick:

* 42 geförderte Mietwohnungen
* 2 - 4 Zimmer, ca. 51 m² - 89 m² (nur mehr 3+4 Zimmer verfügbar)
* Jede Wohnung mit Eigengarten und Terrasse, Balkon oder Dachterrasse 
* hochwertige Laminatböden
* gut durchdachte Grundrisse
* Tiefgaragenstellplatz, bereits in der Miete inkludiert
* Fahrrad- und Kinderwagenräume
* Einlagerungsräume
* Personenaufzug
* Müllraum
* effiziente Photovoltaikanlage am Dach
* kontrollierte Wohnraumlüftung mit Wärmerückgewinnung und zentraler Lüftungsanlage
* HWB Wert ca. 26,26 kWh/m²a, fGEE ca. 0,63
* beziehbar ab 1.4.2026

Anm.: Fotos mithilfe von Virtual Staging eingerichtet (Musterfotos)

Hier geht es zu weiteren Mietwohnungen: Geförderte Mietwohnungen "ein viertel grün" [https://www.heimat-oesterreich.at/de/Projekte/ERSTBEZUG-ein-viertel-gruen-in-Wiener-Neustadt-39-gefoerderte-Mietwohnungen-in-Wiener-Neustadt_pj_30954]

 

Willkommen in Ihrem neuen Zuhause!

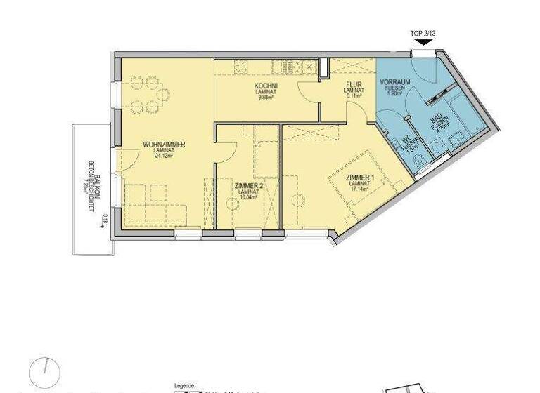
Diese wunderschöne 3-Zimmer-Wohnung im 2. Obergeschoss lädt dazu ein, sich vom ersten Moment an zuhause zu fühlen. Die besondere Lage und das moderne Ambiente schaffen ein Wohngefühl, das Wärme, Komfort und Geborgenheit vereint.

Auf rund 79 m² erwartet Sie ein lichtdurchflutetes Zuhause, in dem jeder Raum mit Sorgfalt geplant wurde - perfekt für Paare oder kleine Familien, die Wert auf ein harmonisches Wohnumfeld legen. Durch den Erstbezug genießen Sie das besondere Gefühl, die Ersten zu sein, die diese Wohnung mit Leben füllen.

Ein echtes Wohlfühl-Highlight ist der ca. 7 m² große Balkon: Ihr persönlicher Rückzugsort für ruhige Morgenstunden, entspannte Abende oder kleine Auszeiten im Freien.

Der offene Wohnbereich verbindet sich fließend mit der Küche und schafft einen Ort, an dem gemeinsame Momente entstehen - beim Kochen, Lachen oder einfach beim Zusammensein. Ein Schlafzimmer ist direkt über den Wohnbereich erreichbar, das zweite über den Flur - ideal, um individuelle Rückzugsorte zu schaffen.

Das modern gestaltete Badezimmer mit Badewanne bietet Ihnen Raum zum Abschalten, während das separate WC zusätzlichen Komfort bringt.

Ein im Mietpreis enthaltener Tiefgaragenstellplatz rundet das Angebot ab und sorgt dafür, dass Sie jederzeit bequem und sicher parken können.

Befristung: unbefristet, 1 Jahr Kündigungsverzicht, 3 Monate Kündigungsfrist
Bezug: beziehbar ab 1.4.2026
Energiekennzahlen: Heizwärmebedarf ca. 26,26 kWh/m²a (Klasse B), Gesamtenergieeffizienz-Faktor ca. 0,63 (Klasse A+)

Monatliche Miete: € 1.029,90 (inkl. Betriebskosten und USt)
Einmaliger Finanzierungsbeitrag: € 27.566,00

_Lassen Sie sich diese Gelegenheit nicht entgehen - Ihr zukünftiges Zuhause in Wiener Neustadt erwartet Sie._

 

Hier geht es zu weiteren Mietwohnungen:
Geförderte Mietwohnungen - ein viertel grün [https://www.heimat-oesterreich.at/de/Projekte/ERSTBEZUG-ein-viertel-gruen-in-Wiener-Neustadt-39-gefoerderte-Mietwohnungen-in-Wiener-Neustadt_pj_30954]

Anm.: Fotos mithilfe von Virtual Staging eingerichtet

 

Noch nichts gefunden? Wir informieren Sie über geeignete Immobilienangebote noch vor allen anderen.
Legen Sie jetzt Ihren individuellen Suchagenten unter folgendem Link an. Wir schicken Ihnen passende Immobilien exklusiv vorab zu.
Suchagent anlegen [https://heimat-oesterreich.service.immo/registrieren/de] - https://heimat-oesterreich.service.immo/registrieren/de

Infrastruktur / Entfernungen

Gesundheit
Arzt <1.000m
Apotheke <250m
Klinik <2.500m
Krankenhaus <1.000m

Kinder & Schulen
Schule <250m
Kindergarten <500m
Höhere Schule <1.750m
Universität <2.000m

Nahversorgung
Supermarkt <500m
Bäckerei <750m
Einkaufszentrum <250m

Sonstige
Bank <750m
Geldautomat <750m
Post <750m
Polizei <750m

Verkehr
Bus <250m
Autobahnanschluss <3.000m
Bahnhof <1.500m
Flughafen <2.250m

Angaben Entfernung Luftlinie / Quelle: OpenStreetMap

Merkmale

  • Bezug: Frühjahr 2026
  • 2. Geschoss
  • Personenaufzug
  • Badewanne
  • Bodenbelag: Fliesen, Laminat
  • Balkon
  • Außen-Stellplatz

Grundrisse

Grundrisse
1 / 5

Realisiere Dein Projekt

Bausubstanz und Energie

Heizwärmebedarf (HWB)

B

Gesamtenergieeffizienz (fGEE)

A+
  • Baujahr2025
  • Zustand der ImmobilieNeubau, Erstbezug
  • EnergieträgerSolar
MediumRectangleTop

Mietkosten

Gesamtmiete
1.029,90 €
Nettokaltmiete
nicht angegeben
Kaution
keine Angabe
Weitere Preisinformationen
1 Stellplatz

Lage

address-icon
StadionstraßeWiener Neustadt (2700)
Mitten im Grünen und doch mitten im Leben: Das Wohnprojekt "ein viertel grün" vereint modernen Wohnkomfort mit einer erstklassigen Lage - direkt gegenüber der Merkurcity in Wiener Neustadt. Hier treffen Ruhe, Natur und Stadtleben aufeinander - und schaffen einen Wohnraum, der keine Wünsche offen lässt.
In diesem neuen Stadtquartier finden Sie das passende Zuhause: mit gut durchdachten Grundrissen, großzügigen Freiflächen.
Die ausgezeichnete Lage macht Ihren Alltag leichter. Das Stadtzentrum, der Bahnhof sowie die Autobahn A2 sind in wenigen Minuten erreichbar. Zahlreiche Nahversorger, Schulen, Kindergärten und medizinische Einrichtungen befinden sich in unmittelbarer Nähe. Die Merkurcity direkt gegenüber sorgt für kurze Wege beim Einkaufen.
Die zweitgrößte Stadt Niederösterreichs bietet nicht nur hervorragende Infrastruktur, sondern auch ein breites Freizeit- und Kulturangebot wie vielfältige Gastronomie, regelmäßige Veranstaltungen, Konzerte und Ausstellungen.

Weitere Informationen

Stichworte Tiefgarage vorhanden, Fahrradraum, Anzahl der Badezimmer: 1, Anzahl der separaten WCs: 1, Anzahl Balkone: 1, Balkon-Terrassen-Fläche: 7,29 m², Kellerfläche: 3,00 m², Bundesland: Niederösterreich, 4 Etagen, Wohnungsnr.: 13

Weitere Services

Lust auf eine Besichtigung?
Eine Frage zur Immobilie?
Nachricht hinzufügen
Mit der Nutzung der oben angegebenen Telefonnummer oder durch Klicken auf „Kontaktieren“ akzeptierst Du die Allgemeinen Nutzungsbedingungen, denen Du jederzeit widersprechen kannst. Weitere Informationen zum Datenschutz

Über den Anbieter

Plainstr. 55, 5020 Salzburg
partner badge
Partnerschaft
Frau Theresa Günzl
Frau Theresa GünzlDein Kontakt
Online-ID: 25SGTZG5GJNF
Referenznummer: OBGC20251212103257051e8b08a37ec
Heimat Österreich gemeinnützige Wohnungs- u. Siedlungsges. mbH
title
Heimat Österreich gemeinnützige Wohnungs- u. Siedlungsges. mbH
Bewertung: 4,2 von 5 Sternen
Nachricht hinzufügen
Mit der Nutzung der oben angegebenen Telefonnummer oder durch Klicken auf „Kontaktieren“ akzeptierst Du die Allgemeinen Nutzungsbedingungen, denen Du jederzeit widersprechen kannst. Weitere Informationen zum Datenschutz
MediumRectangleTop
MediumRectangleBottom
MediumRectangleTop
Wie zufrieden bist du mit dieser Seite (nicht mit der Immobilie selbst)?