Version: 8.25.1Navigation überspringen
SASS - Immobilien
1.790 €
4 Zimmer  •  110 m²  •  250 m² Grundstück  •  frei ab sofort

Doppelhaushälfte zur Miete
1.790 €
4 Zimmer  •  110 m²  •  250 m² Grundstück  •  frei ab sofort

Wohnen in Ostseenähe, mit viel Platz und mein Hund darf mit. (ohne Maklercourtage)

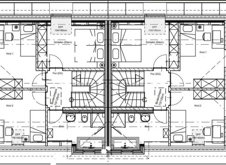
Diese moderne Doppelhaushälfte aus dem Baujahr 2023 wird ab dem 1. April 2026 zur Miete angeboten. Das neuwertige Neubau-Objekt verfügt über insgesamt vier Zimmer und bietet eine Wohnfläche von 110 m². Auf dem 250 m² großen Grundstück steht den Mietern auch ein eigener Gartenanteil zur Verfügung.

Die Doppelhaushälfte überzeugt mit einer durchdachten Raumaufteilung. Im Inneren sind Fliesen verlegt, und die Fußbodenheizung sorgt für angenehme Wärme. Die Immobilie verfügt über ein Badezimmer mit Badewanne, Dusche und Fenster sowie ein separates Gäste-WC. Für zusätzlichen Komfort sorgt ein Abstellraum sowie ein Wasch- und Trockenraum.

Zur Immobilie gehören außerdem zwei Stellplätze.

Merkmale

  • frei ab sofort
  • 250 m² Grundstück
  • Haustiere erlaubt
  • Kein Keller
  • 2 Stellplätze: 2 Außen-Stellplätze
  • Gäste-WC
  • Garten
  • Badezimmer: Badewanne, Bad mit Dusche, Bad mit Fenster

Grundrisse

Grundrisse
1 / 2

Realisiere Dein Projekt

Bausubstanz und Energie

Möchtest du Details zum Energieverbrauch?info_energy_calculation-icon
  • Baujahr2023
  • Zustand der ImmobilieNeubau, neuwertig
  • HeizungsartFußbodenheizung

Mietkosten

Warmmiete
1.820 €
Kaltmiete
16,27 €/m²
1.790 €
Zusätzliche Kosten
Heizkosten
30 €
Kaution
3 Monatsmieten
Weitere Preisinformationen
2 Stellplätze

Lage

address-icon
Biendorf (18230)
Der Anbieter hat die genaue Adresse nicht freigegeben
Die Gemeinde Biendorf liegt im Landkreis Rostock und verbindet ländlichen Charme mit einer guten Erreichbarkeit der Ostseeküste. Umgeben von Feldern, Wiesen und Wäldern bietet Biendorf eine naturnahe Umgebung, die besonders Erholungssuchende anspricht. Die Nähe zur Hansestadt Rostock und zu Kühlungsborn ermöglicht sowohl städtische als auch maritime Freizeitaktivitäten. Die verkehrstechnische Anbindung ist über die B105 und die Autobahn A20 gewährleistet.

Die Immobilie befindet sich in einem ruhigen und grünen Wohngebiet im Ortsteil Körchow. Einkaufsmöglichkeiten für den täglichen Bedarf befinden sich im etwa 6 km entfernten Ort Kröpelin. Größere Einkaufszentren und eine umfassendere Infrastruktur finden Sie im 15 km entfernten Bad Doberan. Familien profitieren von der Nähe zu einer Kindertagesstätte in Biendorf, die in nur 2 km Entfernung liegt. Eine Grundschule ist in Kröpelin ansässig und etwa 6 km entfernt. Ärzte und Apotheken sind ebenfalls in Kröpelin verfügbar. Die Ostseeküste bei Rerik und Kühlungsborn ist in ca. 15 bis 20 Autominuten erreichbar und lädt zu Ausflügen ans Meer ein.

Für Naturliebhaber bieten die Wälder und Felder in der Umgebung zahlreiche Wander- und Radwege. Eine Haltestelle des öffentlichen Nahverkehrs ist ca. 600 Meter entfernt und sorgt für eine gute Anbindung. Die ruhige Wohnlage und die Nähe zur Natur machen diese Immobilie besonders attraktiv für Familien und Erholungssuchende, die Wert auf einen harmonischen Lebensraum legen.

Weitere Informationen

Sonstiges Alle Angaben beruhen auf den Aussagen des Eigentümers. Trotz umfangreicher Prüfung haften wir nicht für die Richtigkeit der Angaben. Für Daten Dritter übernehmen wir keine Haftung.

Bei Interesse an dieser Immobilie füllen Sie bitte das Kontaktformular vollständig aus. Bitte haben Sie Verständnis dafür, dass wir nur Anfragen bearbeiten können, bei denen die vollständige Adresse, Telefonnummer und E-Mail angegeben wird.

Weitere Services

Lust auf eine Besichtigung?
Eine Frage zur Immobilie?
Mit einer persönlichen Nachricht hast du bessere Chancen auf eine Antwort.
Mit der Nutzung der oben angegebenen Telefonnummer oder durch Klicken auf „Kontaktieren“ akzeptierst Du die Allgemeinen Nutzungsbedingungen, denen Du jederzeit widersprechen kannst. Weitere Informationen zum Datenschutz

Über den Anbieter

Neuer Wall 10, 20354 Hamburg
partner badge
Partnerschaft
Herr Ronald SaßDein Kontakt
Online-ID: 253IXF8UR8JZ
Referenznummer: 12345
SASS - Immobilien
SASS - Immobilien
Bewertung: 4,6 von 5 Sternen
Mit einer persönlichen Nachricht hast du bessere Chancen auf eine Antwort.
Mit der Nutzung der oben angegebenen Telefonnummer oder durch Klicken auf „Kontaktieren“ akzeptierst Du die Allgemeinen Nutzungsbedingungen, denen Du jederzeit widersprechen kannst. Weitere Informationen zum Datenschutz
Wie zufrieden bist du mit dieser Seite (nicht mit der Immobilie selbst)?