Version: 8.25.1Navigation überspringen
Schlamp Immobilien e.K.
848.000 €
6 Zimmer  •  150 m²

Doppelhaushälfte zum Kauf
848000 €
5.653 €/m²
6 Zimmer  •  150 m²

Planungsvorschlag für moderne Doppelhaushälfte mit Grundstück

Doppelhaushälfte mit Grundstück - Ihr Neubauprojekt mit Perspektive
In Kooperation mit der regionalen Zimmerei Holzbau Wörndl aus Eggstätt bieten wir Ihnen die Möglichkeit, eine hochwertige Doppelhaushälfte in moderner Holzbauweise zu realisieren.

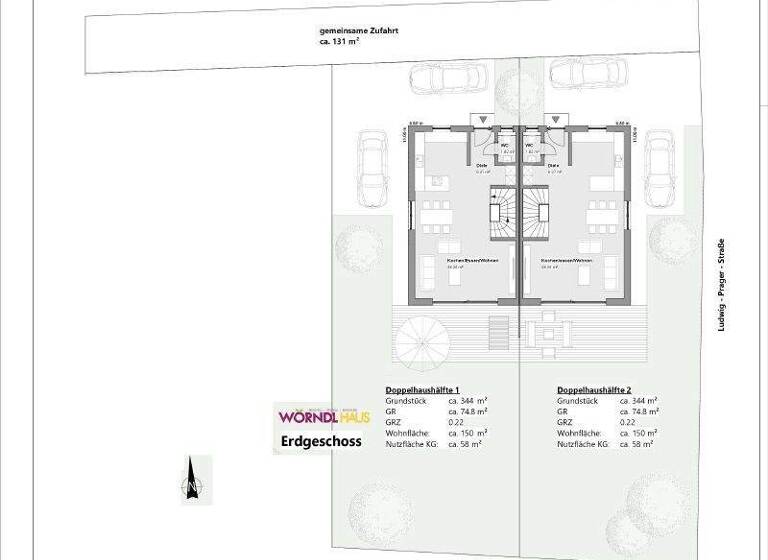
Zum Verkauf stehen zwei Grundstücksteile für jeweils eine Doppelhaushälfte mit ca. 344 m² (DHH 1) und ca. 380 m² (DHH 2), herausgeteilt aus einem insgesamt 1.258 m² großen Gesamtgrundstück, bei welchem das andere Teilgrundstück für ein Einfamilienhaus angeboten wird.

- DHH 1 (ca. 344 m²): 328.000 € Grundstück + 520.000 € Haus
- DHH 2 (ca. 380 m²): 362.000 € Grundstück + 520.000 € Haus

Die geplante Doppelhaushälfte ist als durchdachter Bebauungsvorschlag konzipiert und kann - vorbehaltlich der baurechtlichen Genehmigung - individuell an Ihre Wünsche angepasst werden. Ob mit oder ohne Keller, mit optimierter Grundrissgestaltung oder zusätzlichen Ausstattungsmerkmalen: Hier entsteht Ihr Zuhause nach Maß.

Hochwertige Bauqualität - schlüsselfertig realisiert

Zum Leistungsumfang zählen unter anderem:
- Komplette Eingabeplanung inkl. Statik und Bauantrag
- Energieeffiziente Holzrahmenbauweise
- Luft-Wasser-Wärmepumpe und Fußbodenheizung
- 3-fach verglaste Fenster
- Hochwertige Sanitär- und Elektroausstattung
- Fliesen- und Bodenbeläge gemäß Bemusterung
- Bauleitung, Festpreisgarantie und Blower-Door-Test

Flexibel planbar - nachhaltig investieren
Sie erwerben das Grundstück separat zu einem Kaufpreis ab 328.000 € (DHH 1) bzw. 362.000 € (DHH 2).
Das dargestellte Hauskonzept versteht sich als Planungsvorschlag und bietet Ihnen maximale Gestaltungsfreiheit.

Die Kombination aus werthaltigem Grundstück, moderner Bauweise und individueller Planung schafft eine nachhaltige Investition - sowohl für Eigennutzer als auch für anspruchsvolle Kapitalanleger.

Gerne stellen wir Ihnen die detaillierten Planunterlagen sowie eine transparente Gesamtkalkulation in einem persönlichen Gespräch vor. Ihr individuelles Holzhaus planen Sie gemeinsam mit Holzbau Wörndl - wir koordinieren für Sie alle wichtigen Kontakte und stellen Ihnen sämtliche Vorabinformationen zur Verfügung.

Wichtiger Hinweis
Optionale Ausstattungen - wie beispielsweise die Ausführung mit Keller - sowie zusätzliche Kosten (u. a. Hausanschlüsse, Vermessung, Gutachten, behördliche Gebühren, Baustrom und Bauwasser) sind nicht im angegebenen Hauspreis enthalten. Diese Leistungen gelten als Zusatz- bzw. Sonderleistungen.

Merkmale

  • Gäste-WC
* Bebauungsvorschlag in Zusammenarbeit mit unserem Kooperationspartner Holzbau Wörndl
* Grundstücke für Doppelhaushälften
* Doppelhaus mit Bodenplatte (ohne Keller) inklusive Grundstück:
DHH 1 - ca. 344 m² Grundstück zum Preis in Höhe 328.000 € + 520.000 € Haus
DHH 2 - ca. 380 m² Grundstück zum Preis in Höhe 362.000 € + 520.000 € Haus

Im Angebot von Holzbau Wörndl enthaltene **Leistungen**:
- Individuelle Eingabeplanung inkl. Lageplan, Statik, Brandschutznachweis und Bauantrag
- Energieeffiziente, diffusionsoffene Holzrahmenbauweise
- Luft-Wasser-Wärmepumpe
- Fußbodenheizung im Erd- und Obergeschoss
- 3-fach verglaste Kunststofffenster
- Hochwertige Haustür mit Mehrfachverriegelung
- Tondachziegel inkl. sämtlicher Spenglerarbeiten in Titanzink
- Hochwertige Sanitärausstattung (Bad mit Badewanne, Dusche und WC)
- Bodengleiche Dusche mit Duschrinne
- Fliesenarbeiten (Materialpreis bis 50 € netto/m²)
- Hochwertige Bodenbeläge (Materialpreis bis 55 € netto/m²)
- Elektroinstallation inkl. Zählerschrank, Sprechanlage und Rauchmeldern
- Bauleitung sowie Koordination aller Gewerke
- Festpreisgarantie
- Bauwesenversicherung

Die ausführliche Bau- und Ausstattungsbeschreibung stellen wir Ihnen bei ernsthaftem Interesse selbstverständlich gerne zur Verfügung.

Hinweis:
Optionale Leistungen - wie beispielsweise die Ausführung mit Keller - sowie weitere vom Bauherrn zu tragende Kosten (z. B. Hausanschlüsse, Gutachten, Vermessung, Baustrom und Bauwasser, behördliche Gebühren etc.) sind nicht im Kaufpreis enthalten und gelten als Zusatz- bzw. Sonderleistungen.

Grundrisse

Grundrisse
1 / 3

Realisiere Dein Projekt

Bausubstanz und Energie

Möchtest du Details zum Energieverbrauch?info_energy_calculation-icon
  • Zustand der ImmobilieNeubau, Projektiert
MediumRectangleTop

Preisdetails

Kaufpreis
848000 €
5.653,33 €/m²
Provision für Käufer
11709,60 inkl. MwSt.
Geschätzte Gesamtkosten
924.914 €1
Kaufpreis
848.000 €
Notarkosten (1,5%)
12.720 €
Grunderwerbsteuer (3,5%)
29.680 €
Provision für Käufer (3,57%)
30.274 €
Grundbucheintrag (0,5%)
4.240 €
1Der angezeigte Wert ist eine automatisch berechnete Schätzung von immowelt.
2Bei den Angaben handelt es sich um ortsübliche Werte. Individuelle Kosten können abweichen.

Lage

address-icon
Kolbermoor (83059)
Der Anbieter hat die genaue Adresse nicht freigegeben
Das Grundstück liegt in einer sehr ruhigen Wohnsiedlung im Kolbermoorer Norden, die geprägt ist von Einfamilien- und Doppelhäusern. Die Umgebung besticht durch ihre friedliche Atmosphäre und die unmittelbare Nähe zur Natur. Direkt vor der Haustür beginnen attraktive Spazier- und Laufwege, etwa durch die Voglriedergründe oder rund um den Tonwerkweiher, der unter Naturschutz steht.
Die direkte Umgebung bietet ideale Möglichkeiten zum Joggen, Spazierengehen oder für entspannte Stunden am nahegelegenen Tennis- oder Fußballplatz. Familien profitieren von mehreren Spielplätzen in der Nähe, während Naturliebhaber die renaturierte Mangfall mit ihren idyllischen Rastplätzen, Badestellen und blühenden Uferbereichen genießen können.



Kolbermoor ist eine charmante Kleinstadt zwischen Rosenheim (ca. 5 km, 10 Minuten mit dem Auto) und Bad Aibling (ca. 4,9 km, 9 Minuten). Die Stadt zeichnet sich durch eine hervorragende Infrastruktur aus: Zahlreiche Einkaufsmöglichkeiten, Cafés, Biergärten und gastronomische Betriebe laden zum Verweilen ein. Schulen und Kindergärten sind fußläufig erreichbar, und auch das Krankenhaus in Rosenheim ist in etwa 10 Minuten mit dem Auto bequem zu erreichen.

Die Verkehrsanbindung ist ausgezeichnet: Über die nahegelegene Autobahn A8 gelangen Sie in ca. 45 Minuten nach München und in ca. 35 Minuten nach Kufstein. Die neue Westtangente sorgt zudem für kurze und stressfreie Wege innerhalb der Region.
Pendler profitieren vom Bahnhof Kolbermoor, der in wenigen Minuten mit dem Fahrrad erreichbar ist. Regionalzüge bringen Sie in ca. 7 Minuten nach Rosenheim und in etwa 45 Minuten nach München.

Die Kombination aus ruhiger, naturnaher Wohnlage, hervorragender Infrastruktur und optimaler Verkehrsanbindung macht diesen Standort zu einem idealen Ort zum Leben - komfortabel, lebenswert und perfekt für Familien, Berufspendler und Naturliebhaber.

Weitere Informationen

Sonstiges Wenn wir Ihr Interesse geweckt haben, kontaktieren Sie uns bitte direkt per Mail. Wir nehmen dann umgehend und gern Kontakt mit Ihnen auf und stehen Ihnen sodann für weitere Informationen zur Verfügung. Bitte beachten Sie die Allgemeinen Geschäftsbedingungen auf unserer Homepage. Die Maklerprovision beträgt 3,57 % auf den Grundstückkaufpreises inklusive 19 % MwSt.

Dieses Exposé ist eine Vorinformation, als Rechtsgrundlage gilt allein der notariell abgeschlossene Kaufvertrag. Stichworte Anzahl der Schlafzimmer: 4, Anzahl der Badezimmer: 1, 3 Etagen

Weitere Services

Lust auf eine Besichtigung?
Eine Frage zur Immobilie?
Nachricht hinzufügen
Mit der Nutzung der oben angegebenen Telefonnummer oder durch Klicken auf „Kontaktieren“ akzeptierst Du die Allgemeinen Nutzungsbedingungen, denen Du jederzeit widersprechen kannst. Weitere Informationen zum Datenschutz

Über den Anbieter

Siemensstrasse 14, 83052 Bruckmühl
partner badge
6 Jahre Partnerschaft
Frau Andrea PetzingerDein Kontakt
Online-ID: 26MYKHJKF3TT
Referenznummer: 5149
Schlamp Immobilien e.K.
Schlamp Immobilien e.K.
Bewertung: 4,1 von 5 Sternen
Nachricht hinzufügen
Mit der Nutzung der oben angegebenen Telefonnummer oder durch Klicken auf „Kontaktieren“ akzeptierst Du die Allgemeinen Nutzungsbedingungen, denen Du jederzeit widersprechen kannst. Weitere Informationen zum Datenschutz
MediumRectangleTop
MediumRectangleBottom
MediumRectangleTop
Wie zufrieden bist du mit dieser Seite (nicht mit der Immobilie selbst)?