

Classic Immobilien
Herr Tom-Piet Michahelles
004 ···
Nr. anzeigenPreise & Kosten
Provision für Käufer
3,57% auf den Kaufpreis inkl. MwSt.
Lage
Exponierte Lage, umgeben von Feldern, Wiesen und dem Forst Klövensteen. Hier befindet sich diese traumhafte und einmalig ruhig gelegene Immobilie am hinteren Ende einer Sackgasse. Der alte Dorfkern ist fußläufig erreichbar. Hier finden Sie diverse Geschäfte des täglichen Bedarfs. Schenefeld verfügt über sämtliche Schulzweige...
Das Haus
Kategorie
Bungalow
Baujahr
1979
Bezug
Herbst/Winter 2025
Energie & Heizung
Warum sehe ich diese Anzeige? – Du siehst diese Anzeige basierend auf Ihrer Navigation auf unserer Website und den Suchkriterien, die du verwendet hast.
Energieausweistyp
Bedarfsausweis
Gebäudetyp
Wohngebäude
Baujahr laut Energieausweis
1979
Wesentliche Energieträger
GAS
Gültigkeit
bis 05.03.2028
Effizienzklasse
F
Endenergiebedarf
167,30 kWh/(m²·a)
Weitere Energiedaten
Energieträger
Gas
Heizungsart
Zentralheizung
Details
Objektbeschreibung
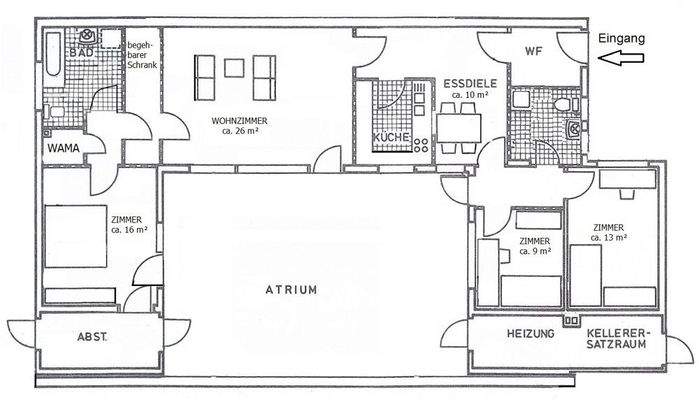
Der Bungalow wurde 1979 in massiver Bauweise mit Flachdach in einem Reihenensemble von insgesamt 9 Häusern errichtet. Es stehen ca. 128 m² Wohnfläche (inkl. anteilig ca. 15 m² im Atrium) sowie 16 m² ebenerdige Nutzfläche zur Verfügung. Zu der Immobilie gehört eine Einzelgarage auf dem angrenzenden Garagenhof.
Das Atrium...
Ausstattung
Die Ausstattung des Hauses präsentiert sich einladend und zeitgemäß, auf folgende Details möchten wir besonders hinweisen:
.Eichen-Landhausdielen in allen Wohn- und Schlafbereichen
.Einbauküche mit Marken-Einbaugeräten (u.a. Dampfgarer, Mikrowelle, Spülmaschine, Herd, Cerankochfeld)
.zeitgemäßes...
Preisinformation
1 Garagenstellplatz
Weitere Informationen
Sonstiges
Das 328 m² große Grundstück (zzgl. ca. 58 m² anteilige Gemeinschaftsfläche - Garagenhof) besteht aus einem pflegeleichten, grünen Vorgarten sowie dem liebevoll und gärtnerisch angelegten Atrium mit Pavillon. Hier erwarten Sie ungestörte Stunden zum Entspannen und Verweilen mit Freunden.
Hinter dem Haus...
Anbieter der Immobilie

Online-ID: 2kzbk5u
Referenznummer: 969
Finde Angebote wie dieses
Hier geht es zu unserem Impressum, den Allgemeinen Geschäftsbedingungen, den Hinweisen zum Datenschutz und nutzungsbasierter Online-Werbung.