Version: 8.25.1Navigation überspringen
1.842 €
4 Zimmer
Immowelt logo

Bürofläche zur Miete - Erstbezug
1.842 €
4 Zimmer

Büro- und Praxisräume in Ried im Innkreis

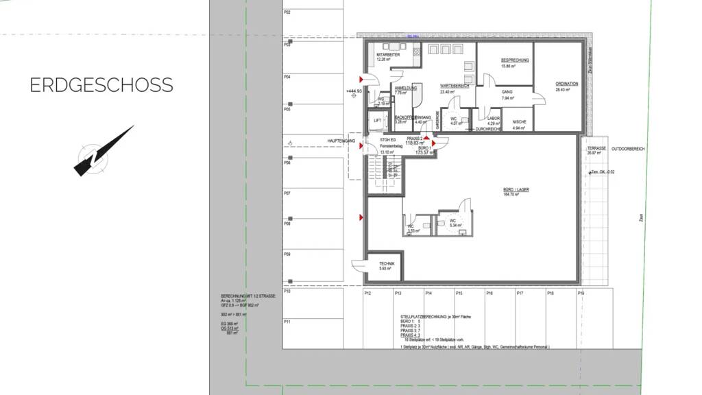
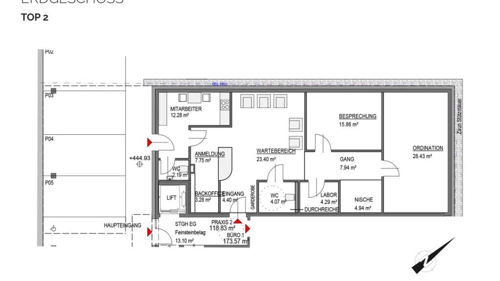
Sie sind auf der Suche nach einer hochwertigen Büro- oder Praxisfläche in Ried im Innkreis? Dann haben wir genau das Richtige für Sie! Diese neu errichtete Immobilie im Erdgeschoss bietet Ihnen auf insgesamt 118,83m² genügend Platz für Ihre geschäftlichen Aktivitäten. Mit vier geräumigen Zimmern bietet sie Ihnen vielfältige Nutzungsmöglichkeiten und lässt keine Wünsche offen.

Der moderne Erstbezug besticht nicht nur durch seine großzügige Fläche, sondern auch durch seine hochwertige Ausstattung. Eine Fußbodenheizung sorgt für angenehme Wärme und ein behagliches Raumklima. 

Das massive Gebäude garantiert Ihnen eine solide Bauweise und eine langlebige Immobilie. Auch die Verkehrsanbindung ist ideal, denn eine Bushaltestelle befindet sich direkt vor der Tür. Somit sind Sie bestens an das öffentliche Verkehrsnetz angebunden und Ihre Kunden und Geschäftspartner können Sie problemlos erreichen.

Doch nicht nur die Immobilie selbst überzeugt, auch die Lage ist ideal für Ihre geschäftlichen Aktivitäten. In unmittelbarer Nähe finden Sie alles, was Sie für den täglichen Bedarf benötigen. Ob Arzt, Apotheke, Krankenhaus, Schule, Kindergarten, Supermarkt, Bäckerei oder Einkaufszentrum - hier ist alles in kürzester Zeit zu erreichen. Auch die schöne Innenstadt von Ried im Innkreis ist nur wenige Minuten entfernt und bietet Ihnen zahlreiche Einkaufsmöglichkeiten sowie Restaurants und Cafés für eine entspannte Mittagspause.

Nutzen Sie die Chance auf eine moderne und hochwertige Büro- oder Praxisfläche in einer attraktiven Lage. Hier können Sie sich und Ihr Unternehmen optimal präsentieren und erfolgreich arbeiten. Überzeugen Sie sich selbst von dieser Immobilie und vereinbaren Sie noch heute einen Besichtigungstermin. Wir freuen uns auf Ihre Kontaktaufnahme!

Infrastruktur / Entfernungen

Gesundheit
Arzt <500m
Apotheke <1.000m
Klinik <1.500m
Krankenhaus <500m

Kinder & Schulen
Schule <500m
Kindergarten <1.000m
Höhere Schule <1.500m

Nahversorgung
Supermarkt <500m
Bäckerei <1.000m
Einkaufszentrum <1.000m

Sonstige
Bank <500m
Geldautomat <500m
Post <1.000m
Polizei <500m

Verkehr
Bus <500m
Bahnhof <1.500m
Autobahnanschluss <4.500m

Angaben Entfernung Luftlinie / Quelle: OpenStreetMap

Merkmale

  • Erdgeschoss

Grundrisse

Verschaffe dir einen genauen Überblick über die Raumaufteilung.selection_property_house-icon

Realisiere Dein Projekt

Bausubstanz und Energie

Möchtest du Details zum Energieverbrauch?info_energy_calculation-icon
  • Zustand der ImmobilieNeubau, Massivhaus, Erstbezug
  • HeizungsartFußbodenheizung
Immowelt logo

Mietkosten

Nettokaltmiete
1.842 €
Betriebskosten
297 €
Provision für Mieter
Bitte beachte, das Angebot kann bei Vertragsabschluss die Zahlung einer Provision beinhalten. Weitere Informationen erhältst Du vom Anbieter.
Kaution
keine Angabe
Weitere Preisinformationen
Nettokaltmiete: 1.842,00 EUR

Lage

address-icon
Ried im Innkreis (4910)

Weitere Informationen

Stichworte Carport vorhanden, Stellplatz vorhanden, Wohnfläche: 118,83 m², Anzahl der separaten WCs: 1, Bundesland: Oberösterreich, Wohnungsnr.: Top 2

Weitere Services

Lust auf eine Besichtigung?
Eine Frage zur Immobilie?
Nachricht hinzufügen
Mit der Nutzung der oben angegebenen Telefonnummer oder durch Klicken auf „Kontaktieren“ akzeptierst Du die Allgemeinen Nutzungsbedingungen, denen Du jederzeit widersprechen kannst. Weitere Informationen zum Datenschutz

Über den Anbieter

Herzog Odilo-Straße 4, 5310 MONDSEE
partner badge
Partnerschaft
Herr Robert KranzingerDein Kontakt
Online-ID: 2529XNY8JNSQ
Referenznummer: OBGC20250121141556173510d91a6cb
Wohnzone Schlössl GmbH
Nachricht hinzufügen
Mit der Nutzung der oben angegebenen Telefonnummer oder durch Klicken auf „Kontaktieren“ akzeptierst Du die Allgemeinen Nutzungsbedingungen, denen Du jederzeit widersprechen kannst. Weitere Informationen zum Datenschutz
Wie zufrieden bist du mit dieser Seite (nicht mit der Immobilie selbst)?