Version: 8.25.1Navigation überspringen
Schneidereit & De Iacovo Immobilien GmbH
1.080.000 €
3 Zimmer  •  493 m² Bürofläche

Bürofläche zum Kauf
1080000 €
3 Zimmer  •  493 m² Bürofläche

Preisreduktion: Über 6 % Rendite ab 01.01.2028 – Potenzial bis 10 %

Freiburg Stühlinger - Renditestarke Gewerbeimmobilie mit erheblichem Wertsteigerungspotenzial

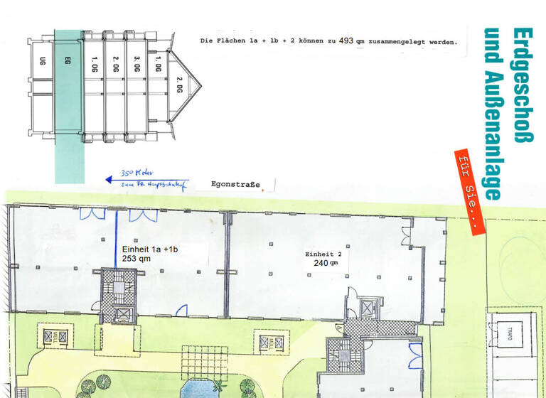
Toplage an der Egonstraße Ecke Antoniterstraße. Rund 500 m² Gewerbefläche mit ca. 60 m verglaster Fassadenfront, hoher Sichtbarkeit und dauerhaft starker Nachfrage.

Rendite ab 01.01.2026: 6 Prozent.
Rendite perspektivisch über 10 Prozent (Bei einer Neuvermietung).
Faktor perspektivisch ca. 10,00.


Langfristig vermietet mit stabilen Erträgen. Drei separate Eingänge ermöglichen eine flexible Aufteilung in mehrere Einheiten und eröffnen zusätzliches Mietsteigerungspotenzial. Grundbuchrechtlich bereits aufgeteilt.

Eine seltene Kapitalanlage in einer der gefragtesten Gewerbelagen Freiburgs...

..mehr erfahren ? Dann fordern Sie gerne unser umfängliches Expose mit allen Objektdaten an. Wir freuen uns auf Ihre Anfrage.

Merkmale

  • vermietet
  • teilweise möbliert
  • Erdgeschoss
  • Bodenbelag: Fliesen, Kunststoff
  • Raumaufteilung flexibel
- Über 6 % Rendite ab 01.01.2028

- Großzügige Gewerbefläche mit 493 m² im Erdgeschoss

- Repräsentative Ecklage mit ca. 60 m durchgehender Schaufensterfront

- Drei separate Eingänge - flexibel teilbar oder separat nutzbar

- Helle, offene Raumstruktur - individuell gestaltbar

- Vier WC-Einheiten, davon zwei derzeit als Kunden-WCs genutzt

- Fenster auch zum Innenhof - angenehme Lichtverhältnisse im gesamten Objekt

- Mehrere Kundenparkplätze direkt vor dem Gebäude (gemeinschaftlich nutzbar)

- Grundbuchlich bereits in zwei Einheiten aufgeteilt (253,43 m² und 239,71 m²)

-Flexible gewerbliche Nutzung: Einzelhandel, Büro, Praxis, Dienstleistungen oder als Ferienwohnungen

Grundrisse

Grundrisse
1 / 2

Realisiere Dein Projekt

Bausubstanz und Energie

Energieausweis

Endenergieverbrauch (Wärme)

  • Baujahr1999
  • Zustand der ImmobilieGepflegt
  • HeizungsartZentralheizung
  • EnergieträgerGas
MediumRectangleTop

Preisdetails

Kaufpreis
1080000 €
Hausgeld
1419 €
Provision für Käufer
3,57 % inkl. 19 % MwSt.
Weitere Preisinformationen
Soll-Mieteinnahmen pro Jahr: 103.200,00 EUR
Ist-Mieteinnahmen pro Jahr: 58.800,00 EUR
Geschätzte Gesamtkosten
1.118.556 €1
Kaufpreis
1.080.000 €
Provision für Käufer (3,57%)
38.556 €
1Der angezeigte Wert ist eine automatisch berechnete Schätzung von immowelt.
2Bei den Angaben handelt es sich um ortsübliche Werte. Individuelle Kosten können abweichen.

Lage

address-icon
StühlingerFreiburg im Breisgau (79106)
Der Anbieter hat die genaue Adresse nicht freigegeben
Die angebotene Gewerbeeinheit befindet sich in exponierter Ecklage im Freiburger Stadtteil Stühlinger, einem dynamischen und lebendigen Viertel mit hoher Nachfrage. Die Egonstraße, an der sich das Objekt befindet, zählt zu den gut frequentierten Straßen des Stadtteils und bietet hervorragende Sichtbarkeit sowie ideale Voraussetzungen für Laufkundschaft, Werbung und Präsenz im Stadtbild.

Die Umgebung ist geprägt durch eine ausgewogene Mischung aus Wohnbebauung, Einzelhandel, medizinischen Einrichtungen sowie Bildungs- und Kulturangeboten. In unmittelbarer Nähe liegen unter anderem die Universitätsklinik Freiburg, der Hauptbahnhof, mehrere Schulen und Hochschulen sowie zahlreiche Cafés, Restaurants und Geschäfte. Die zentrale Lage zieht ein breit gefächertes Publikum an - von Anwohnern über Berufspendler bis hin zu Studierenden und Touristen.

Die Anbindung an den öffentlichen Nahverkehr ist optimal: Straßenbahn- und Bushaltestellen sind fußläufig erreichbar, ebenso der Freiburger Hauptbahnhof. Für den Individualverkehr bestehen schnelle Verbindungen zur B31 und zur Autobahn A5. Kundenparkplätze direkt vor dem Gebäude runden die hervorragende Erreichbarkeit ab.

Dank ihrer zentralen Lage, der hohen Sichtbarkeit und der lebendigen Nachbarschaft bietet diese Immobilie beste Voraussetzungen für eine nachhaltige Vermietbarkeit, stabile Mieterstrukturen und langfristige Wertentwicklung - ein Standort mit Perspektive.

Weitere Services

Lust auf eine Besichtigung?
Eine Frage zur Immobilie?
Nachricht hinzufügen
Mit der Nutzung der oben angegebenen Telefonnummer oder durch Klicken auf „Kontaktieren“ akzeptierst Du die Allgemeinen Nutzungsbedingungen, denen Du jederzeit widersprechen kannst. Weitere Informationen zum Datenschutz

Über den Anbieter

Munzingerstr. 10, 79111 Freiburg
partner badge
Partnerschaft
Herr Rocco SchneidereitDein Kontakt
Online-ID: 26HQTXFAN4R2
Referenznummer: G26-104
Schneidereit & De Iacovo Immobilien GmbH
Schneidereit & De Iacovo Immobilien GmbH
Bewertung: 5 von 5 Sternen
Nachricht hinzufügen
Mit der Nutzung der oben angegebenen Telefonnummer oder durch Klicken auf „Kontaktieren“ akzeptierst Du die Allgemeinen Nutzungsbedingungen, denen Du jederzeit widersprechen kannst. Weitere Informationen zum Datenschutz
MediumRectangleTop
MediumRectangleBottom
MediumRectangleTop
Wie zufrieden bist du mit dieser Seite (nicht mit der Immobilie selbst)?