
REGNAUER HAUSBAU GmbH & Co.KG
Herr Markus Konrad
+49 ···
Nr. anzeigenPreise & Kosten
Provision für Käufer
provisionsfrei
Lage
Projektiertes Einfamilienhaus in einer ruhigen Straße in Ludwigsburg-Hoheneck.
Das Haus
Kategorie
Einfamilienhaus
Baujahr
2026
Energie & Heizung
Warum sehe ich diese Anzeige? – Du siehst diese Anzeige basierend auf Ihrer Navigation auf unserer Website und den Suchkriterien, die du verwendet hast.
Details
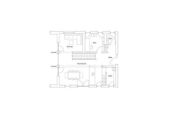
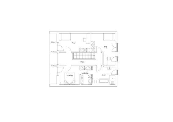
Objektbeschreibung
Dieser außergewöhnliche Baukörper zeigt geniale Proportionen und eine durch Schlichtheit überzeugende Modernität bei einer angenehmen Kniestockhöhe von 1,50 m. Auch die Raumaufteilung fürs komfortable Leben der
Familie mit zwei Kindern hat klare Strukturen und hohe Funktionalität. Dabei prägt die zurückversetzte...
Ausstattung
Es handelt sich um ein Regnauer Vitalhaus. Ausführung nach der Bau- und Leistungsbeschreibung von Regnauer Hausbau.
Weitere Informationen
Im Preis ist das Grundstück, das Haus, der Keller, die PV-Anlage, die Garagen und die BNK enthalten. Abb. können Sonderausstattung zeigen. Grundrisse und Bilder sind urheberrechtlich geschützt.
Anbieter der Immobilie
REGNAUER HAUSBAU GmbH & Co.KG
Pullacher Str. 11, 83358 Seebruck
Online-ID: 2jpqx5w
Finde Angebote wie dieses
Hier geht es zu unserem Impressum, den Allgemeinen Geschäftsbedingungen, den Hinweisen zum Datenschutz und nutzungsbasierter Online-Werbung.