Version: 8.26.0Navigation überspringen
Mietkosten auf Anfrage
Immowelt logo

Büro zur Miete
Mietkosten auf Anfrage

Repräsentative Büroetage mit 1270m² Gesamtbürofläche

ENERGIEAUSWEIS

- erstellt am: 24.08.2018
- gültig bis: 23.08.2028
- Art des Energieausweises: nach Verbrauch
- Verbrauchskennwert insgesamt: ca. 78 kWh/(m²a)
- Verbrauch inkl. Warmwasser: nein
- Baujahr: 2001

---------------

Das mit mehreren Architekturpreisen ausgezeichnete Bürogebäude überzeugt durch seine klare, zeitlose Architektursprache und eine hochwertige technische Ausstattung, die optimalen Arbeitskomfort mit repräsentativem Design verbindet.

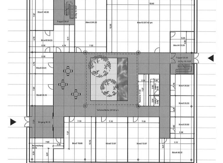
Die zur Vermietung stehende Büroeinheit im Erdgeschoss umfasst ca. 1.270 m² und bietet durch ihre durchdachte Gebäudekonstruktion und den flexiblen Grundriss ideale Bedingungen für unterschiedlichste Nutzungskonzepte - von klassischen Bürostrukturen bis hin zu offenen Kommunikationsflächen.

Das Gebäude zeichnet sich durch eine zweischalige Glasfassade mit integrierten Lüftungsklappen sowie ein zentral gelegenes Atrium mit intensiver Bepflanzung und Wasserbassin aus. Das Glasdach des Atriums sorgt so für ein angenehmes Raumklima und außergewöhnliches Ambiente.

Ein durchgehender Stützenraster von 12 m ermöglicht eine hohe Flexibilität in der Raumgestaltung und gewährleistet gleichzeitig eine hervorragende natürliche Belichtung aller Arbeitsbereiche.

Die rundumlaufende, ca. 60 cm breite Doppelfassade wirkt als Klimapuffer und sorgt für eine ausgewogene Temperaturregulierung sowie optimale Tageslichtnutzung. In den Fassadenzwischenraum sind unabhängig steuerbare Lamellenelemente aus Leichtmetall integriert, die je nach Sonnenstand das Licht gezielt reflektieren oder absorbieren.

Technisch ist das Gebäude auf dem neuesten Stand:
. Klimaanlagen und Sonnenschutzsysteme
. Fußbodenheizung mit zusätzlicher Kühlfunktion
. Kühlung über eine Absorptionskältemaschine, gespeist durch Solaranlage
. Spezielle Kühldecken mit hoher Wärmespeicher- und Kühlleistung

Die Ausstattung entspricht einem repräsentativen und energieeffizienten Bürostandard. Der Zugang zum Gebäude erfolgt über einen architektonisch ansprechend gestalteten Eingangsbereich im Südwesten.

Ausreichend Pkw-Stellplätze können nach Vereinbarung angemietet werden.
Insgesamt können im Gebäude bis zu 2628m² auf drei Stockwerken angemietet werden.

Die Nebenkosten werden nutzerabhängig nach Verbrauch über Zwischenzähler abgerechnet und beinhalten sämtliche Energie- und Betriebskosten (Heizung, Wasser, Strom).

Kaution: 2 Monatskaltmieten.

Bezug: ab 01.01.2027

Merkmale

  • Bodenbelag: Stein

Grundrisse

Grundrisse
1 / 1

Bausubstanz und Energie

Energieausweis

Endenergieverbrauch (Wärme)

  • Baujahr2001
Immowelt logo

Mietkosten

Miete auf Anfrage
Provision für Mieter
Bitte beachte, das Angebot kann bei Vertragsabschluss die Zahlung einer Provision beinhalten. Weitere Informationen erhältst Du vom Anbieter.
Kaution
keine Angabe

Lage

address-icon
HeuchelhofWürzburg (97084)
Der Anbieter hat die genaue Adresse nicht freigegeben
Die Gewerbeimmobilie befindet sich im etablierten Gewerbegebiet Heuchelhof - einer der gefragtesten Unternehmensstandorte der Stadt.

Das Gebiet zeichnet sich durch seine hervorragende Verkehrsanbindung und die ausgezeichnete infrastrukturelle Erschließung aus. Über die nahegelegene B19 besteht ein direkter Anschluss an die Autobahn A3 (Frankfurt-Nürnberg) sowie an die A7. Die Würzburger Innenstadt ist in nur wenigen Fahrminuten erreichbar.

Eine optimale ÖPNV-Anbindung ist ebenfalls gegeben: Straßenbahnhaltestellen mit regelmäßigen Verbindungen in Richtung Innenstadt und Hauptbahnhof befinden sich in unmittelbarer Nähe.

Das Gewerbegebiet Heuchelhof hat sich in den letzten Jahren zu einem dynamischen Unternehmensstandort entwickelt. Neben Dienstleistern und Handelsbetrieben sind hier auch mehrere namhafte Industrie-, Forschungs- und Technologieunternehmen angesiedelt.

In direkter Umgebung befinden sich verschiedene Versorgungs- und Gastronomiebetriebe, die eine gute Nahversorgung für Mitarbeiter und Besucher gewährleisten.

Die Kombination aus verkehrsgünstiger Lage, repräsentativem Umfeld und moderner Architektur macht diesen Standort zu einer der attraktivsten Adressen für Gewerbetreibende in Würzburg.

Weitere Informationen

Sonstiges Rechtlicher Hinweis

Alle Angaben beruhen auf Informationen des Eigentümers. Für die Richtigkeit, Vollständigkeit und Aktualität wird keine Haftung übernommen. Flächenangaben sind ca.-Angaben. Das Exposé dient der Vorabinformation; als Rechtsgrundlage gilt ausschließlich der abgeschlossene Mietvertrag. Unsere AGBs sind Grundlage jedes Angebots. Stichworte Gesamtfläche: 1.270,00 m², 2 Etagen

Weitere Services

Lust auf eine Besichtigung?
Eine Frage zur Immobilie?
Mit einer persönlichen Nachricht hast du bessere Chancen auf eine Antwort.
Mit der Nutzung der oben angegebenen Telefonnummer oder durch Klicken auf „Kontaktieren“ akzeptierst Du die Allgemeinen Nutzungsbedingungen, denen Du jederzeit widersprechen kannst. Weitere Informationen zum Datenschutz

Über den Anbieter

Erthalstr. 46, 97074 Würzburg
partner badgepartner badge
6 Jahre Partnerschaft + Diamond Partner
Herr Sebastian ViefhausDein Kontakt
Online-ID: 252LQ3D33G2B
Referenznummer: GM555
Wie zufrieden bist du mit dieser Seite (nicht mit der Immobilie selbst)?