Version: 8.23.0Navigation überspringen
1.448 €
4 Zimmer  •  124 m²  •  2. Geschoss  •  frei ab sofort
Immowelt logo

Wohnung zur Miete - Erstbezug
1.448 €
4 Zimmer  •  124 m²  •  2. Geschoss  •  frei ab sofort

Wohnen im Zentrum von Erkelenz - moderne Stadtwohnung -

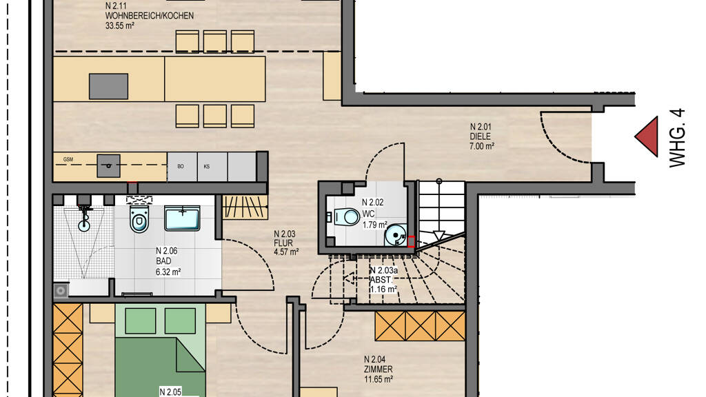
Wenige Meter vom Marktplatz im Zentrum von Erkelenz befindet sich die angebotene moderne Galeriewohnung. Das Gebäude besteht aus drei Geschossen. Die Wohnungsgrößen beträgt ca. 124 Quadratmetern. Die Wohnräume sind mit hochwertigem Vinylboden ausgestattet. Die Wände und Decken sind mit Malerflies tapeziert und weiß gestrichen. Die modernen Bäder verfügen über eine bodengleiche Dusche. Ein Schlafzimmer verfügt über ein direkt angrenzendes Badezimmer, gennant auch En-Suite-Bad. Die Wohnungen werden inklusive einer hochwertigen Einbauküche vermietet. Der Mietpreis der Küche ist bereits in den Mietpreisen der Wohnung enthalten. Der Aufzug ermöglicht einen stufenlosen Zugang zur Wohnung und Kellerraum. Die Beheizung der Wohnung erfolgt enrgieeffizent per Erdwärme. Das Gebäude erfüllt den KfW 40+ Standard.
Ein überdachter PKW-Stellplatz kann ebenfalls angemietet werden. Die Stellplätze befindet sich auf dem Grundstück.

- Barrierefreier Neubau im KfW 40+ Standard
- Optimale Wärmedämmung
- Voll verblendet
- Alle Wohnungen mit Balkon
- Guter Schallschutz
- Vollunterkellert
- PKW Stellplätze auf dem Grundstück überdacht -abgeschlossen-
- Müllraum ebenerdig

Merkmale

  • Bezug: sofort
  • 2. Geschoss
  • Einbauküche, offene Küche
  • Personenaufzug
  • Kelleranteil
  • Carport, Außen-Stellplatz
  • Gäste-WC
  • Balkon

Realisiere Dein Projekt

Bausubstanz und Energie

Energieausweis

A+
  • Baujahr2024
  • Zustand der ImmobilieNeubau, Erstbezug
  • HaustypKfW 40
  • HeizungsartZentralheizung: Fußbodenheizung
  • EnergieträgerErdwärme
Immowelt logo

Mietkosten

Warmmiete
1.773 €
Kaltmiete
11,68 €/m²
1.448 €
Nebenkosten
325 €
Heizkosten
in Nebenkosten enthalten
Zusätzliche Kosten
Miete pro Stellplatz
75 €
Kaution
4000 €

Lage

address-icon
Kirchstraße 13Erkelenz (41812)
Diese exklusive Wohnung befindet sich unmittelbar im Zentrum von Erkelenz.
Den Marktplatz, den Franziskanerplatz, den Johannismarkt erreichen Sie nach verlassen des Objektes in wenigen Schritten. Hier finden Sie die Stadtverwaltung, die Pfarrkirche St. Lambetus, Banken, Ärzte, Apotheken, Einzelhandelsgeschäfte, Restaurants u.v.m.
Der Bahnhof ist ebenfalls gut zu Fuß erreichbar. Hier starten auch Buslinien des Regionalverkehrs Kreis Heinsberg.

Die Stadt Erkelenz mit ca. 45.000 Einwohner liegt ca. 20 km von Mönchengladbach entfernt. Die Stadt gehört zum Kreis Heinsberg. Diverse Einkaufsmöglichkeiten (Discounter und Facheinzelhandel) sind schnell mit dem Auto zu erreichen. Das historisch geprägte Zentrum Erkelenz wurde bereits vor über 1000 Jahren urkundlich erwähnt und lädt zum Flanieren und Shoppen ein. Eine gesunde Mischung aus Handel, Dienstleistung und Gewerbe machen Erkelenz zur Einkaufsstadt. Ärzte diverser Fachrichtungen und ein expandierendes Krankenhaus runden das Stadtbild ab. Erkelenz ist ein bedeutendes Mittelzentrum, zentral gelegen zwischen Aachen, Düsseldorf, Mönchengladbach und Köln und durch die Autobahn A 44, A46 und A61 mit besten Anbindungen versehen.

Weitere Informationen

Besichtigungstermine - Miete Die Wohnung ist mit einem Arbeitsraum zum Aufstellen der Wachmaschine und Wäschetrockner ausgestattet.

Besichtigungstermine sind nach vorheriger Terminabsprache möglich.

Die monatliche Gesamtmiete incl. Heiz- und Betriebskostenvorauszahlung setzt sich wie folgt zusammen:

Wohnfläche 124 m²
Kaltmiete 1.488 € (12,00 € / m²)
Miete Einbauküche 100,00 €
Miete Carportstellplatz 75,00 €
Heiz- und Betriebskosten 325,00 (inkl. Heizung)
Monatliche Gesamtmiete 1.988,00 €


Weitere Services

Lust auf eine Besichtigung?
Eine Frage zur Immobilie?
Nachricht hinzufügen
Mit der Nutzung der oben angegebenen Telefonnummer oder durch Klicken auf „Kontaktieren“ akzeptierst Du die Allgemeinen Nutzungsbedingungen, denen Du jederzeit widersprechen kannst. Weitere Informationen zum Datenschutz

Über den Anbieter

Ostpromenade 23, 41812 Erkelenz
partner badge
Partnerschaft
Herr Claus Echterhoff-LennartzDein Kontakt
Online-ID: 2clyr5z
Referenznummer: DG 4
Echterhoff-Lennartz Hausverwaltung
Echterhoff-Lennartz Hausverwaltung
Bewertung: 4,9 von 5 Sternen
Nachricht hinzufügen
Mit der Nutzung der oben angegebenen Telefonnummer oder durch Klicken auf „Kontaktieren“ akzeptierst Du die Allgemeinen Nutzungsbedingungen, denen Du jederzeit widersprechen kannst. Weitere Informationen zum Datenschutz
Wie zufrieden bist du mit dieser Seite (nicht mit der Immobilie selbst)?