
Zwickauer Wohnungsbaugenossenschaft eG
Unser Vermietungsteam
(03 ···
Nr. anzeigenPreise & Kosten
Warum sehe ich diese Anzeige? – Du siehst diese Anzeige basierend auf Ihrer Navigation auf unserer Website und den Suchkriterien, die du verwendet hast.
Lage
Alles, was man für das tägliche Leben braucht, erreicht man in Eckersbach zu Fuß: Einkaufsmöglichkeiten, Schulen und Kindergärten, Arztpraxen und Apotheken. Der Stadtteil wird liebevoll eingerahmt von dörflicher Umgebung und das Stadtzentrum liegt dennoch vor der Haustür.
Richten Sie sich häuslich ein, in...
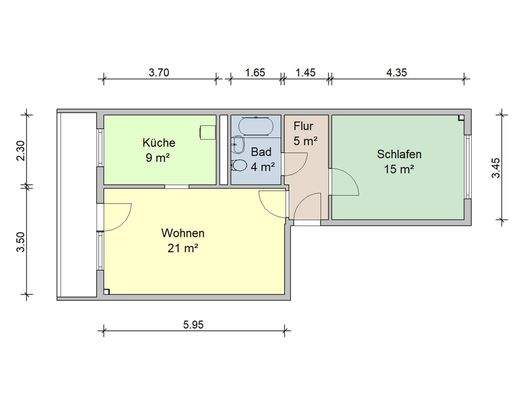
Die Wohnung
Wohnungslage
3. Geschoss
Bezug
sofort
Wohnanlage
Energie & Heizung
Warum sehe ich diese Anzeige? – Du siehst diese Anzeige basierend auf Ihrer Navigation auf unserer Website und den Suchkriterien, die du verwendet hast.
Energieausweistyp
Verbrauchsausweis
Gebäudetyp
Wohngebäude
Wesentliche Energieträger
Fernwärme
Endenergieverbrauch
65,80 kWh/(m²·a)
Weitere Energiedaten
Energieträger
Fernwärme
Details
Objektbeschreibung
Eckersbach mit wenigen Worten zu charakterisieren gleicht dem Versuch, einen Roman in ein paar Sätzen wiederzugeben. Der Stadtteil ist ungemein vielfältig und verschiedenartig. Verschiedenste Wohnformen und ein tolles Wohnumfeld treffen hier aufeinander. Eckersbach bietet für alle etwas: Praktische Wohnungen für den Single...
Ausstattung
Schon gleich nach dem Betreten der Wohnung fällt Ihnen sicher die Gegensprechanlage ins Auge. Mit Ihr wird das Öffnen der Haustür zum Kinderspiel.
Hochwertige und strapazierfähige Boden- und Designbeläge veredeln sämtliche Wohnräume. Bad und Küche verfügen selbstverständlich über schicke Fliesen und moderne...
Weitere Informationen
Sonstiges
zzgl. Genossenschaftsanteile
Stichworte
Anzahl Balkone: 1
Anbieter der Immobilie
Weitere Angebote des Anbieters
Online-ID: 2k6pu5r
Referenznummer: 3114.122.22.42