
Tamke Immobilien, Jörg Tamke
Herr Jörg Tamke
017 ···
Nr. anzeigenPreise & Kosten
Provision für Käufer
3,57 % incl. 19 % MwSt.
Lage
Das geplante Haus liegt im Herzen von Sasel, in einer ruhigen, aber sehr zentralen Wohnstraße. Das nahe Umfeld wird durch schöne, zum Teil auch neu erbaute Einfamilien- und Doppelhäuser geprägt. Die zahlreichen Grünflächen und ruhigen Straßen tragen dazu bei, dass sich hier insbesondere Familien wohlfühlen. Das...
Das Haus
Kategorie
Doppelhaushälfte
Baujahr
2026
Energie & Heizung
Warum sehe ich diese Anzeige? – Du siehst diese Anzeige basierend auf Ihrer Navigation auf unserer Website und den Suchkriterien, die du verwendet hast.
Energieausweistyp
Bedarfsausweis
Gebäudetyp
Wohngebäude
Baujahr laut Energieausweis
2024
Wesentliche Energieträger
Strom
Gültigkeit
27.09.2023 bis 26.09.2033
Effizienzklasse
A+
Endenergiebedarf
19,50 kWh/(m²·a)
Weitere Energiedaten
Haustyp
KfW 40
Heizungsart
Fußbodenheizung, Luft-/Wasser-Wärmepumpe
Details
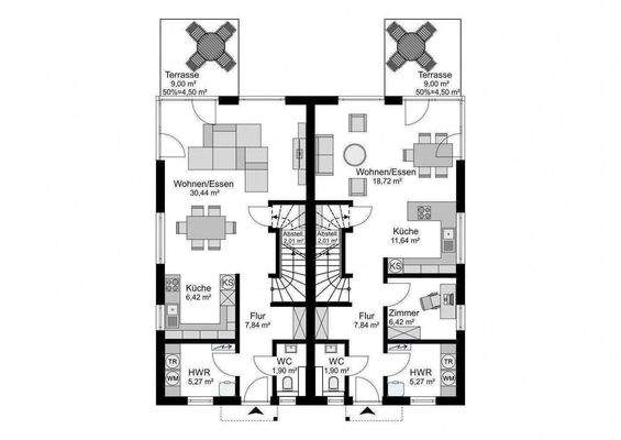
Objektbeschreibung
Auf einem ruhigen, ca. 810 m² großen Grundstück in unmittelbarer Nähe zum Ortszentrum von Sasel entstehen 2 exklusive Doppelhaushälften als moderne Stadthäuser mit gut durchdachten Grundrissen.
Das besonders energiesparsame Doppelhaus (A+) wird im Standard KfW Effizienzhaus 40 mit einer Luft-Wasser-Wärmepumpe und...
Weitere Informationen
Sonstiges
Alle Angaben über dieses Objekt basieren auf Informationen, die uns der Auftraggeber zur Verfügung gestellt hat. Für die Richtigkeit, Aktualität und Vollständigkeit dieser Angaben übernehmen wir keine Gewähr. Für die zu erbringenden Leistungen ist die Baubeschreibung maßgebend.
Anbieter der Immobilie
Tamke Immobilien, Jörg Tamke
Borsteler Reihe 52b, 21635 Jork
Online-ID: 2nk635b
Finde Angebote wie dieses
Hier geht es zu unserem Impressum, den Allgemeinen Geschäftsbedingungen, den Hinweisen zum Datenschutz und nutzungsbasierter Online-Werbung.