Version: 8.22.6Navigation ĂĽberspringen
Lanz & Melzer ImmobilienService GmbH
4.180 €
5 Zimmer  â€˘  190 m² BĂĽrofläche  â€˘  teilbar ab 190 m²

BĂĽro zur Miete
4.180 €
5 Zimmer  â€˘  190 m² BĂĽrofläche  â€˘  teilbar ab 190 m²

Ab sofort! Ruhige und großzügige Büroflächen im Herzen von Prenzlauer Berg.

Der denkmalgeschützte Altbau gehört zum klassischen Gebäudeensemble rund um die Gethsemanekirche im beliebten Prenzlauer Berg. Das Haus wurde um die Jahrtausendwende stilvoll saniert und modernisiert und präsentiert sich heute in gepflegtem Zustand. Gemeinsam mit dem Nachbargebäude umschließt es einen begrünten Innenhof, der typisch für das Kiezflair des Viertels ist.

Die hellen Büroflächen verbinden historischen Charme mit moderner Arbeitsatmosphäre - ideal für Agenturen, Kanzleien oder Kreativunternehmen, die eine repräsentative Adresse in zentraler Lage suchen.

Merkmale

  • Bezug: sofort
  • vermietet
  • Erdgeschoss
  • EinbaukĂĽche
  • Gäste-WC
  • Bodenbelag: Parkett
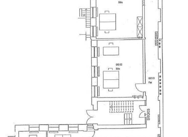
Die großzügigen Büroflächen erstrecken sich über ca. 190 m² im Hochparterre des Seitenflügels und bieten fünf helle, gut geschnittene Räume in ruhiger Hoflage.


Vier der fünf Räume sind separat begehbar, ein Raum dient als Durchgangszimmer, ideal für flexible Arbeits- oder Besprechungsbereiche.

Getrennte WC-Anlagen sorgen fĂĽr praktischen Komfort fĂĽr Mitarbeiter und Besucher.

Ein separater Küchenraum mit Einbauküche ermöglicht eine flexible Nutzung.

Hochwertiger Parkettboden zieht sich durch alle Räume und vermittelt ein professionelles, gepflegtes Ambiente.

Verkabelung für IT und Telekommunikation ist bereits vorhanden, sodass die Büroflächen sofort nutzbar sind.


Es gibt zwei separate Zugänge, die eine flexible Nutzung und Trennung von Bereichen ermöglichen.


Grundsätzlich wird die Fläche leer übergeben. Auf Wunsch können Büromöbel der Vormieter:innen übernommen werden (in Absprache mit den derzeitigen Mieter:innen).


Zusätzlich steht ein Kellerraum zur Verfügung, der weiteren Stauraum bietet.


Die Kombination aus hellen Räumen, hochwertiger Ausstattung und ruhiger Lage macht diese Büroflächen zu einer idealen Adresse für Agenturen, Kanzleien oder Kreativunternehmen, die zentral in Prenzlauer Berg arbeiten möchten.

Grundrisse

Grundrisse
1 / 1

Realisiere Dein Projekt

Bausubstanz und Energie

Energieausweis

Endenergieverbrauch (Wärme)

  • Baujahr1905
  • EnergieträgerGas
MediumRectangleTop

Mietkosten

Warmmiete
5.426,40 €
Nettomiete
4.180 €
Nebenkosten
380 €
Heizkosten
in Warmmiete enthalten
Provision fĂĽr Mieter
gestaffelt nach Laufzeit; startend mit netto 2,0 Monatskaltmieten
Die Anmietung dieser Fläche ist für den Mieter provisionspflichtig. Weitere Informationen siehe Provisionshinweis.
Kaution
12.540 €

Lage

address-icon
Prenzlauer Berg, Berlin (10437)
Der Anbieter hat die genaue Adresse nicht freigegeben

Weitere Informationen

Provisionshinweis gestaffelt nach Laufzeit; startend mit netto 2,0 Monatskaltmieten
Die Anmietung dieser Fläche ist für den Mieter provisionspflichtig. Bei Abschluss eines Mietvertrages ist vom Mieter nachfolgend genannte Provision zzgl. der gesetzlichen Mehrwertsteuer an die Lanz & Melzer ImmobilienService GmbH
fällig und zahlbar:
bei einer Laufzeit bis 35 Monate
2,0 Monatskaltmieten,
bei einer Laufzeit ab 36 bis 59 Monate
3,0 Monatskaltmieten,
bei einer Laufzeit ab 60 Monate Stichworte Gesamtfläche: 190,00 m², Anzahl der Wohneinheiten: 27, Bundesland: Berlin

Weitere Services

Lust auf eine Besichtigung?
Eine Frage zur Immobilie?
Nachricht hinzufĂĽgen
Mit der Nutzung der oben angegebenen Telefonnummer oder durch Klicken auf „Kontaktieren“ akzeptierst Du die Allgemeinen Nutzungsbedingungen, denen Du jederzeit widersprechen kannst. Weitere Informationen zum Datenschutz

Ăśber den Anbieter

MarienstraĂźe 13 a, 10117 Berlin
partner badge
Partnerschaft
Frau Emma SacherDein Kontakt
Online-ID: 2ndq45h
Referenznummer: A3031
Lanz & Melzer ImmobilienService GmbH
Lanz & Melzer ImmobilienService GmbH
Bewertung: 4,6 von 5 Sternen
Nachricht hinzufĂĽgen
Mit der Nutzung der oben angegebenen Telefonnummer oder durch Klicken auf „Kontaktieren“ akzeptierst Du die Allgemeinen Nutzungsbedingungen, denen Du jederzeit widersprechen kannst. Weitere Informationen zum Datenschutz
MediumRectangleTop
MediumRectangleBottom
MediumRectangleTop
Wie zufrieden bist du mit dieser Seite (nicht mit der Immobilie selbst)?