Version: 8.24.1Navigation überspringen
282.300 €
2 Zimmer  •  39,8 m²  •  3. Geschoss  •  frei ab 30.06.2028
Immowelt logo

Wohnung zum Kauf - Erstbezug
282300 €
7.088 €/m²
2 Zimmer  •  39,8 m²  •  3. Geschoss  •  frei ab 30.06.2028

PROVISIONSFREI - Modernes wohnen am Donauufer mit Donaublick!

URBANES LEBENSGEFÜHL MIT DONAUBLICK

Direkt am malerischen Donauufer entfaltet sich das prestigeträchtige Wohnprojekt, Traisengasse 20-22. Der moderne Neubau beeindruckt mit eleganter Architektur, begrüntem Innenhof und spektakulärem Donaublick. 269 Eigentumswohnungen bieten vielfältige Wohnungsvarianten für alle Lebensstile und Generationen. Die Nähe zur Donauinsel und die schnelle Anbindung ans Stadtzentrum versprechen ein privilegiertes Lebensgefühl in einem der lebendigsten Bezirke Wiens.

Die modernen 2-Zimmer-Wohnungen sind ideal für Singles und Paare. Mit 37 bis 45 m² vereinen sie einen offenen Wohn-/Essbereich, ein separates Schlafzimmer sowie Zugang zur Terrasse oder zum eigenen Garten. Höchsten Wohnkomfort bieten auch die Maisonette-, Garten- und Hofwohnungen mit 3 oder 4 Zimmern. Die Gartenwohnungen verfügen über private Grünflächen, während Hofwohnungen direkten Zugang zum begrünten Innenhof haben. Die Dachgeschoßwohnungen und Penthouses bieten luxuriöses Wohnen mit 43 bis 126 m² und 2 bis 4 Zimmern. Atemberaubende Ausblicke und ein begehrter Rückzugsort im Herzen der Stadt zeichnen diese Einheiten aus.

 

Nachhaltigkeit durch Qualität

Im Mittelpunkt dieses Neubauprojekts stehen die Erschaffung von nachhaltigem Lebensraum und das Wohlbefinden der zukünftigen Bewohner. Die DGNB GOLD Nachhaltigkeits-Zertifikat [https://haring-group.us11.list-manage.com/track/click?u=ee55dabd55240b3e43a4270bd&id=d05f5fdfb9&e=6dd5fc2d42] und die angestrebte EU-Taxonomie-Verifizierung unterstreichen unser Engagement für umweltgerechtes Bauen.

 

Provisionsfrei bis zum Baustart!

Kaufen Sie Ihr zukünftiges Zuhause bereits vor dem Baustart und sparen dabei die Provision! Gerne steht Ihnen unser Vertrieb für Informationen zur Verfügung.

 

Alle Infos zu diesem Projekt finden Sie unter www.traisengasse20.at [https://www.traisengasse20.at/]

 

SPAREN SIE JETZT BIS ZU 5,9% NEBENGEBÜHREN!

Ihr Vorteil beim Erwerb einer Haring Group Immobilie:

- Provisionsfrei! Alle Eigentumsobjekte werden ohne Provision (3,6% inkl. MwSt.) angeboten!
- Keine Eintragungsgebühr: Von 1.7.2024 bis 1.7.2026 entfallen die Gebühren für die Grundbucheintragung (1,1%) und die Eintragungsgebühren des Pfandrechts (1,2%).*

 

* Laut Wohn- & Baupaket der Regierung entfallen die Eintragungsgebühren ins Grundbuch bei einem Kaufpreis von bis zu € 500.000,- pro Käufer:in komplett, wenn der Immobilienerwerb für den Hauptwohnsitz dient. Kaufen zwei Personen eine Immobilie, verdoppelt sich die Obergrenze auf € 1.000.000,-.

 

Renderings: Symbolbilder Außenansichten (c) zoom.at, Innenraumansichten (c) JAMJAM - Kreativagentur für Immobilien

Wir weisen darauf hin, dass zwischen dem Vermittler und dem zu vermittelnden Dritten ein familiäres oder wirtschaftliches Naheverhältnis besteht.

Der Vermittler ist als Doppelmakler tätig.

Infrastruktur / Entfernungen

Gesundheit
Arzt <250m
Apotheke <450m
Klinik <550m
Krankenhaus <550m

Kinder & Schulen
Schule <225m
Kindergarten <250m
Universität <1.025m
Höhere Schule <1.825m

Nahversorgung
Supermarkt <25m
Bäckerei <200m
Einkaufszentrum <600m

Sonstige
Geldautomat <525m
Bank <600m
Post <700m
Polizei <475m

Verkehr
Bus <100m
U-Bahn <675m
Straßenbahn <625m
Bahnhof <600m
Autobahnanschluss <1.000m

Angaben Entfernung Luftlinie / Quelle: OpenStreetMap

Merkmale

  • frei ab 30.06.2028
  • 3. Geschoss
  • Balkon
  • Loggia

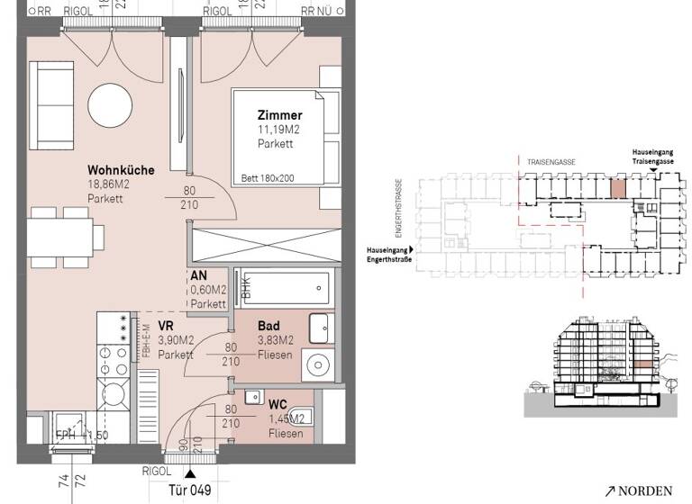
Grundrisse

Grundrisse
1 / 1

Realisiere Dein Projekt

Bausubstanz und Energie

Heizwärmebedarf (HWB)

A

Gesamtenergieeffizienz (fGEE)

A+
  • Baujahr2026
  • Zustand der ImmobilieNeubau, Erstbezug
Immowelt logo

Preisdetails

Kaufpreis
282300 €
7.087,62 €/m²
Provision für Käufer
Provision bezahlt der Abgeber

Lage

address-icon
Traisengasse 20-22Wien (1200)

Weitere Informationen

Stichworte Nutzfläche: 39,83 m², Gesamtfläche: 48,27 m², Freifläche: 8,44 m², Anzahl der Badezimmer: 1, Anzahl der separaten WCs: 1, Anzahl Balkone: 1, Anzahl Loggias: 1, Balkon-Terrassen-Fläche: 8,44 m², Kellerfläche: 1,44 m², Bundesland: Wien, 9 Etagen, Wohnungsnr.: 1-49

Weitere Services

Lust auf eine Besichtigung?
Eine Frage zur Immobilie?
Nachricht hinzufügen
Mit der Nutzung der oben angegebenen Telefonnummer oder durch Klicken auf „Kontaktieren“ akzeptierst Du die Allgemeinen Nutzungsbedingungen, denen Du jederzeit widersprechen kannst. Weitere Informationen zum Datenschutz

Über den Anbieter

Doningasse 12 / Stiege 1 / 2. OG / Top 05, 1220 WIEN
partner badge
Partnerschaft
Frau Jeannette StruppeDein Kontakt
Online-ID: 2j2u35y
Referenznummer: OBGC202408201141450529f1ef60f1c
Haring Immobilientreuhand GmbH
Haring Immobilientreuhand GmbH
Bewertung: 5 von 5 Sternen
Nachricht hinzufügen
Mit der Nutzung der oben angegebenen Telefonnummer oder durch Klicken auf „Kontaktieren“ akzeptierst Du die Allgemeinen Nutzungsbedingungen, denen Du jederzeit widersprechen kannst. Weitere Informationen zum Datenschutz
Wie zufrieden bist du mit dieser Seite (nicht mit der Immobilie selbst)?