Am idyllischen Gudower See befindet sich dieses charmante, kleine Holzhaus - ein Ort zum WohlfĂĽhlen und Erholen.
Objektbeschreibung: Das Häuschen bietet auf ca. 38 m² Wohnfläche alles, was man zum entspannten Wohnen oder für erholsame Ferien benötigt. Es ist aktuell vermietet und erzielt eine monatliche Mieteinnahme von 385 €.
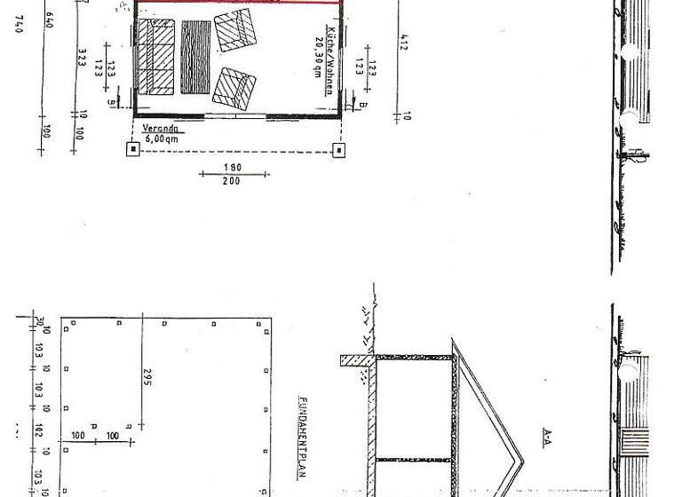
Die Raumaufteilung ist praktisch und gemĂĽtlich: Eingangs-/Flurbereich Kombinierter Wohn- und Essraum mit integrierter KĂĽche Schlafzimmer Badezimmer
Zusätzlich gibt es im oberen Bereich unter der Dachschräge eine kleine Fläche, die sich entweder als Schlafgelegenheit oder als Stauraum nutzen lässt.
Das Haus wird mit einem Kaminofen beheizt, was fĂĽr ein behagliches Wohnklima sorgt.
Grundstück: Das Grundstück umfasst 262 m² und wurde von der jetzigen Mieterin liebevoll angelegt. Hier findet man genügend Platz, um die Natur zu genießen, zu entspannen oder kleine Gartenideen umzusetzen - perfekt für Feierabende oder Ferienaufenthalte.
Nutzungsmöglichkeiten
Das Holzhäuschen eignet sich gleichermaßen als fester Wohnsitz oder als Ferienimmobilie. Durch die Größe, den Charakter und die Lage ist es sowohl für Eigennutzer als auch für Kapitalanleger interessant.
"Da die Immobilie derzeit vermietet ist, bitten wir um Verständnis, dass nur wenige Innenaufnahmen zur Verfügung stehen. Wir möchten zudem höflich darum bitten, das Grundstück nicht zu betreten und von Besuchen oder dem Klingeln am Haus abzusehen." Kontaktaufnahme nur über unser Büro.
Merkmale
262 m² Grundstück
AuĂźen-Stellplatz
Terrasse
offener Kamin
Holzhaus: Baujahr: 1993 Wohnfläche: ca. 38 m² Grundstück: 262 m² Räume: Wohn-/Essbereich mit Küche, Schlafzimmer, Bad, zusätzlicher Bereich unter der kleine Dachschräge Kaminofenheizung Aktuell vermietet (385 € mtl.)
Grundrisse
Grundrisse
1 / 1
Realisiere Dein Projekt
Bausubstanz und Energie
Energieausweis
Ein Energieausweis ist für diesen Gebäudetyp nicht notwendig.
Baujahr1993
Zustand der ImmobilieGepflegt
HeizungsartOfen
EnergieträgerHolz
Preisdetails
Kaufpreis
180000 €180.000 €
4.736,84 €/m²
Provision für Käufer
3,57 % inkl. MwSt.
Weitere Preisinformationen
1 Stellplatz
Geschätzte Gesamtkosten
201.726 €1
Kaufpreis
180.000 €
Kaufnebenkosten
21.726 €
2
Notarkosten (1,5%)
2.700 €
Grunderwerbsteuer (6,5%)
11.700 €
Provision für Käufer (3,57%)
6.426 €
Grundbucheintrag (0,5%)
900 €
1Der angezeigte Wert ist eine automatisch berechnete Schätzung von immowelt.
2Bei den Angaben handelt es sich um ortsübliche Werte. Individuelle Kosten können abweichen.
Lage
Am Segelhafen 42, Gudow (23899)
In Gudow selbst existieren grundlegende Versorgungsangebote: Einkaufsmöglichkeiten - für den täglichen Bedarf gut erreichbar Kindergarten - für Familien vor Ort Weitere lokale Angebote (Gastronomie, kleine Gewerbe, regionaler Service)
Verkehrsanbindung & Umfeld
Die Verbindung zur weiteren Umgebung ist ebenfalls gut: Die Autobahnanschlussstelle zur A24 ist in etwa 10 Minuten erreichbar - so besteht eine schnelle Anbindung nach Hamburg oder Berlin.
Die nächstgrößere Stadt Mölln liegt ca. 12 km entfernt - ideal für zusätzliche Einkaufsmöglichkeiten, kulturelle Angebote oder medizinische Versorgung.
Weitere nahegelegene Orte wie Ratzeburg und Zarrentin sind in kurzer Fahrzeit erreichbar und erweitern das Angebot an Freizeit- und Versorgungsleistungen.
Freizeit & Natur
Der direkte Seezugang und die Nähe zum Naturraum erlauben vielfältige Aktivitäten wie Spaziergänge, Schwimmen, Naturbeobachtungen oder Bootstouren.
In der Umgebung finden sich Wander- und Radwege, die durch Wälder und entlang der Seen führen
Der Gudower See ist durch Zuflüsse (z. B. Stichelsbach, Verbindung zum Segrahner See Teil eines naturräumlichen Gewässerverbunds.
Weitere Informationen
Stichworte
Anzahl der Schlafzimmer: 1, Anzahl der Badezimmer: 1, Anzahl Terrassen: 1, 1 Etagen, Distanz zum Kindergarten: 500.00, Distanz zur Autobahn: 3.00, Distanz vom Zentrum: 300.00