Version: 8.24.0Navigation ĂĽberspringen
Mietkosten auf Anfrage
11 Zimmer  â€˘  299,2 m² BĂĽrofläche
Immowelt logo

Bürofläche zur Miete
Mietkosten auf Anfrage
11 Zimmer  â€˘  299,2 m² BĂĽrofläche

Die perfekte Büro- oder Praxisfläche in sehr guter Lage - unmittelbar am Lübecker Hauptbahnhof !

Die angebotene Immobilie ist eine Bürofläche, die sich im dritten Stock eines dreistöckigen Gebäudes aus dem Baujahr 1998 befindet. Das Gebäude ist barrierefrei zugänglich und verfügt über insgesamt 6 Parkplätze. Die Bürofläche umfasst 7 Zimmer und bietet eine Kellerfläche von 9 m². Der Gebäudezustand wird nach Vereinbarung festgelegt und die Heizung erfolgt über eine Zentralheizung.

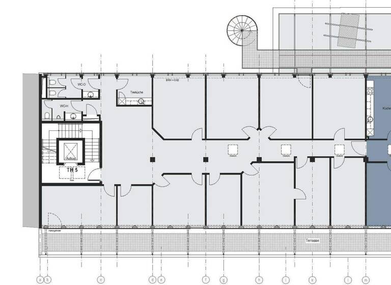
Die Räumlichkeiten der Bürofläche bestehen aus insgesamt 11 Zimmern, die vielseitig genutzt werden können. Durch die großzügige Raumaufteilung und die helle Beleuchtung bieten sich die Räume ideal für Büro- oder Praxisräume an. Die Bürofläche verfügt zudem über ausreichend Platz für Besprechungszimmer und eine Küche, um den Mitarbeitern eine angenehme Arbeitsatmosphäre zu bieten.

Zusätzlich zu den 7 Zimmern bietet die Bürofläche einen separaten Kellerbereich von 9 m² für zusätzlichen Stauraum. Die Bürofläche umfasst außerdem 6 Parkplätze, die Mitarbeitern und Besuchern zur Verfügung stehen. Die zentrale Lage des Gebäudes ermöglicht eine gute Anbindung an öffentliche Verkehrsmittel und die umliegenden Geschäfte und Restaurants. Diese Bürofläche bietet somit ideale Rahmenbedingungen für ein erfolgreiches Büro- oder Praxisumfeld.

Merkmale

  • Bezug: nach Vereinbarung
  • 3. Geschoss
  • EinbaukĂĽche
  • 6 Stellplätze: 6 AuĂźen-Stellplätze
  • Barrierefrei
  • Raumaufteilung flexibel
Ausstattung;

- infrastrukturell beste Lage am Rande der Altstadt
- prägnante Lage am ZOB und Hauptbahnhof
- Aufteilung veränderbar - nach Vereinbarung
- umlaufendende Kabelkanäle
- Decke mit Beleuchtung
- moderne WC-Anlagen
- Tiefgaragenstellplätze
- helle freundliche Räume
- Netzwerk kann von den Vormietern ĂĽbernommen werden
- ggf. Änderung der Aufteilung nach Vereinbarung
- renovierte Ăśbergabe nach Vereinbarung
-9,25m² Lagerfläche - 7€/m²
- Beschattungsanlage.
- Bodentanks
- Netzwerk vom Vormieter
- Fahrstuhl
- ebenerdiger Zugang


Die Mietkaution beträgt 3 Bruttomieten. Alle Angaben ggf. zzgl. 19% Mwst. !

Die Ausstattung, Raumaufteilung Größe und Lage richtet sich nach Ihren Anforderungen und ist in jedem Fall individuell zu vereinbaren.
Der Mietzins richtet sich nach den Umbauwünschen des Mieters, nach Vertragslaufzeit, nach Bonität und nach Mietbeginn und gilt individuell zu verhandeln.

Für einen persönlichen Informationstermin steht Ihnen Katrin Nowatzki gerne zur Verfügung.

Dieses Objekt bieten wir fĂĽr die Mieter provisionsfrei an!

Wir freuen uns auf Ihren Anruf !

Grundrisse

Grundrisse
1 / 1

Realisiere Dein Projekt

Bausubstanz und Energie

Energieausweis

Endenergieverbrauch (Wärme)

Endenergieverbrauch (Strom)

  • Baujahr1998
  • HeizungsartZentralheizung
  • EnergieträgerGas
Immowelt logo

Mietkosten

Miete auf Anfrage
Miete pro Stellplatz
70 €
Provision fĂĽr Mieter
Bitte beachte, das Angebot kann bei Vertragsabschluss die Zahlung einer Provision beinhalten. Weitere Informationen erhältst Du vom Anbieter.
Kaution
keine Angabe
Weitere Preisinformationen
6 Stellplätze, Miete je: 70,00 EUR

Lage

address-icon
St. Lorenz Süd, Lübeck (23558)
Der Anbieter hat die genaue Adresse nicht freigegeben
1A-Lage Die Bürofläche befindet sich im Herzen von Lübeck, in einer A-Lage im Stadtzentrum. Der Stadtteil ist bekannt für seine historische Altstadt mit den charakteristischen Backsteingebäuden und den verwinkelten Gassen. In unmittelbarer Nähe befinden sich zahlreiche Geschäfte, Restaurants und Cafés, die eine lebendige Atmosphäre schaffen. Die Lage bietet außerdem eine gute Anbindung an öffentliche Verkehrsmittel und ist somit optimal erreichbar.

Lübeck selbst ist eine im Norden Deutschlands gelegene Stadt und Weltkulturerbe der UNESCO. Die Stadt beeindruckt mit ihrer mittelalterlichen Architektur, insbesondere der Marienkirche und dem Holstentor. Als Hansestadt hat Lübeck eine lange Geschichte als wichtiger Handelspunkt. Darüber hinaus bietet die Stadt zahlreiche kulturelle Veranstaltungen, Museen und eine vielfältige Gastronomieszene, die Besucher aus der ganzen Welt anlocken.

Die Region um Lübeck ist geprägt von der Nähe zur Ostsee und den zahlreichen Küstenstädten. Die Ostseeküste bietet eine Vielzahl an Freizeit- und Erholungsmöglichkeiten, von Wassersportaktivitäten bis hin zu entspannten Strandtagen. Zudem befinden sich in der Umgebung viele Naturschutzgebiete und historische Sehenswürdigkeiten, die die Region zu einem attraktiven Wohn- und Arbeitsort machen.

Weitere Informationen

Stichworte Tiefgarage vorhanden, Gesamtfläche: 299,24 m², Anzahl der separaten WCs: 3, Kellerfläche: 9,00 m², 3 Etagen, Zustand nach Vereinbarung Sonstiges: EDV-Verkabelung

Weitere Services

Lust auf eine Besichtigung?
Eine Frage zur Immobilie?
Nachricht hinzufĂĽgen
Mit der Nutzung der oben angegebenen Telefonnummer oder durch Klicken auf „Kontaktieren“ akzeptierst Du die Allgemeinen Nutzungsbedingungen, denen Du jederzeit widersprechen kannst. Weitere Informationen zum Datenschutz

Ăśber den Anbieter

Goethestr. 1, 23564 lĂĽbeck
partner badge
Partnerschaft
Frau Katrin NowatzkiDein Kontakt

Weitere Unterlagen

Online-ID: 2n77c5d
Referenznummer: 7806#2tt845
Nowatzki Immobilien GmbH & Co. KG
Nowatzki Immobilien GmbH & Co. KG
Bewertung: 5 von 5 Sternen
Nachricht hinzufĂĽgen
Mit der Nutzung der oben angegebenen Telefonnummer oder durch Klicken auf „Kontaktieren“ akzeptierst Du die Allgemeinen Nutzungsbedingungen, denen Du jederzeit widersprechen kannst. Weitere Informationen zum Datenschutz
Wie zufrieden bist du mit dieser Seite (nicht mit der Immobilie selbst)?