

Wohnung zum Kauf285000 €4.625 €/m²2 Zimmer • 61,6 m² • 3. Geschoss
285000 €
4.625 €/m²
2 Zimmer • 61,6 m² • 3. Geschoss
Brixlegg: Dachgeschoßwohnung
Merkmale
- Bezug: ab sofort
- Dachgeschoss, 3. Geschoss
- Einbauküche
- Tiefgarage
- Terrasse
- Raumaufteilung flexibel
- Badezimmer: Badewanne, Bad mit Fenster
- Bodenbelag: Fliesen, Parkett
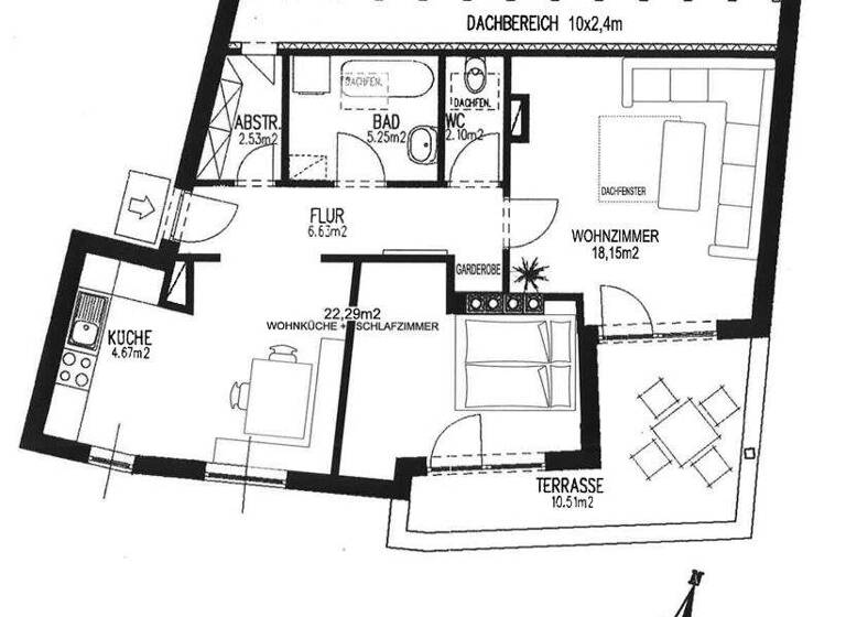
Grundrisse
Grundrisse
1 / 1
Realisiere Dein Projekt
Bausubstanz und Energie
Heizwärmebedarf (HWB)
C
Gesamtenergieeffizienz (fGEE)
- Baujahr1998
- HeizungsartFußbodenheizung
- EnergieträgerGas
Preisdetails
Kaufpreis
285000 €
4.625,12 €/m²
Provision für Käufer
3,00% zzgl. 20% MwSt. vom Kaufpreis
Weitere Preisinformationen
1 Tiefgaragenstellplatz
Lage

Brixlegg (6230)
Der Anbieter hat die genaue Adresse nicht freigegeben
Weitere Informationen
Weitere Services
Lust auf eine Besichtigung?
Eine Frage zur Immobilie?
Über den Anbieter
Ludwig ImmobilienMaklerbüro
Innstraße 26, 6241 RADFELD
6 Jahre Partnerschaft
Herr Matthias LudwigDein Kontakt
Online-ID: 2l93y5p
Referenznummer: 2025-0321

Ludwig Immobilien
Wie zufrieden bist du mit dieser Seite (nicht mit der Immobilie selbst)?

