++ Begehrte Lage - an Wiesen und Weiden! Modernisierter Bungalow mit Garage in Vreschen-Bokel! ++
Dieser Walmdachbungalow befindet sich in begehrter Sackgassenlage von Vreschen-Bokel bei Augustfehn und bietet einen unverbaubaren Blick auf Wiesen und Felder - eine der begehrtesten Lagen!
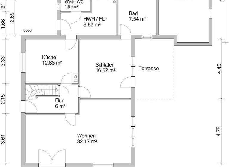
Gliederung der Räumlichkeiten:
a) Kellergeschoss Teilkeller bestehend aus einem Vorratsraum und Heizungsraum.
b) Erdgeschoss Eingangsdiele mit Garderobe, großzügiges Wohnzimmer, Küche mit Essbereich, Schlafzimmer mit Zugang zum Badezimmer, Hauswirtschaftsraum, Gäste-WC und Flur.
b) Dachgeschoss Zwei Kinderzimmer, Büro, Badezimmer und Flur.
Die Wohnfläche beträgt ca. 120 m². Die Nutzfläche beträgt ca. 69 m².
Weiter verfügt das Immobilienangebot über einen Garagenanbau in Flachdachausführung mit einem großzügigen Hobbyraum, der vielfältige Nutzungsmöglichkeiten bietet - etwa als Werkstattbereich oder Raum zur kreativen Entfaltung.
Der sehr gepflegte Walmdach-Bungalow wurde im Jahre 1968 in konventioneller Massivbauweise mit Teilkeller, Erdgeschoss und ausgebautem Dachgeschoss errichtet.
In den Jahre 2015 und 2016 erfuhr das Haus laut Eigentümer eine grundlegende Modernisierung:
- Neueindeckung des Walmdaches mit Dämmung und neuen Regenrinnen - Einbau einer neuen Erdgas-Brennwert-Therme - Einbau neuer Flachheizkörper (überwiegend) - Einbau eines neuen Badezimmers im Erdgeschoss - Modernisierung des Gäste-WC im Erdgeschoss - Modernisierung des Badezimmers im Dachgeschoss - Einbau neuer Kunststofffenster mit Isolierverglasung (überwiegend) (im Wohnzimmer und der Küche stammen die Fenster aus 2013) - die Hauseingangstür und die Nebeneingangstür stammen aus dem Jahre 2009 - Einbau eines neuen Garagen-Sektionaltores - Einbau neuer Dachflächenfenster im Zuge der Neueindeckung des Daches - Modernisierung der Elektro-Installation (überwiegend) - Einbau neuer Innentüren - Einbau einer neuen Einbauküche - komplette Maler- und Bodenbelagsarbeiten
Das Verkaufsobjekt befindet sich in einem gepflegten Gesamtzustand.
Das Haus ist auf unbestimmte Zeit vermietet.
Der Energieausweis ist in Vorbereitung.
Merkmale
Bezug: nach Vereinbarung
800 m² Grundstück
Garage
Terrasse
Bad mit Dusche
Grundrisse
Grundrisse
1 / 3
Realisiere Dein Projekt
Bausubstanz und Energie
Der Anbieter hat keine Informationen zum Energieverbrauch bereit gestellt.
Baujahr1968
Zustand der ImmobilieMassivhaus, Gepflegt
HeizungsartZentralheizung
Preisdetails
Kaufpreis
329000 €329.000 €
2.741,67 €/m²
Provision für Käufer
Die Käuferprovision beträgt 3,57 % inkl. 19 % MwSt. vom beurkundeten Kaufpreis. inkl. MwSt.
Weitere Preisinformationen
1 Garagenstellplatz
Geschätzte Gesamtkosten
363.775 €1
Kaufpreis
329.000 €
Kaufnebenkosten
34.775 €
2
Notarkosten (1,5%)
4.935 €
Grunderwerbsteuer (5%)
16.450 €
Provision für Käufer (3,57%)
11.745 €
Grundbucheintrag (0,5%)
1.645 €
1Der angezeigte Wert ist eine automatisch berechnete Schätzung von immowelt.
2Bei den Angaben handelt es sich um ortsübliche Werte. Individuelle Kosten können abweichen.
Lage
Vreschen-Bokel, Apen / Vreschen-Bokel (26689)
Der Anbieter hat die genaue Adresse nicht freigegeben
Der Bahnhof und sämtliche Versorgungseinrichtungen (Aldi, Edeka, Lidl usw.) befinden sich in Umkreis von nur ca. 1.000 m und sind allesamt bequem zu Fuß zu erreichen!
Die Kreisstadt Westerstede ist ca. 13 km entfernt. Hier befinden sich u.a. die Ammerland-Klinik, Fachärzte, sämtliche Kreisbehörden und das Gymnasium als weiterführende Schule. Augustfehn verfügt über sehr gute Verkehrsanbindungen.
Die BAB 28 (Anschlussstelle Nr. 4) ist nur ca. 6 km entfernt.
Weiter verfügt Augustfehn über einen Bahnhof an der Bahnstrecke Oldenburg - Leer. Von hier fahren Züge im stündlichen Wechsel in beide Richtungen. Der bekannte Kurort Bad Zwischenahn ist in ca. 15 Auto- bzw. Bahnminuten zu erreichen, die Oberzentren Oldenburg und Bremen in ca. ½ bzw. 1 Auto- bzw. Bahnstunde.
Weitere Informationen
Sonstiges
Zu diesem Objekt liegt ein ausführliches Exposé mit weiteren Detailinformationen vor, das Sie gerne bei uns anfordern können.
Sie möchten Ihre Immobilie verkaufen..... ..... und suchen den passenden Käufer?
Unabhängig davon, ob Sie aktuell oder erst in unbestimmter Zeit Ihre Immobilie verkaufen möchten, ist eine fundierte Beratung bares Geld wert. Wir wissen, worauf es beim professionellen Verkauf Ihrer Immobilie ankommt.
Über 60 Jahre Marktpräsenz und tausende Vermittlungen sprechen für sich.
Für ein kostenfreies und informatives Beratungsgespräch stehen wir Ihnen jederzeit gerne zur Verfügung.
Stichworte
Süd-Ost-Balkon/Terrasse, Nutzfläche: 69,00 m², Anzahl der Schlafzimmer: 4, Anzahl der Badezimmer: 2, Anzahl der separaten WCs: 1, Anzahl Terrassen: 1