
Assetando Property Management GmbH
Herr Michael Thelen
022 ···
Nr. anzeigenPreise & Kosten
Provision für Mieter
provisionsfrei
Warum sehe ich diese Anzeige? – Du siehst diese Anzeige basierend auf Ihrer Navigation auf unserer Website und den Suchkriterien, die du verwendet hast.
Lage
Die Fläche befindet sich im Bürgerverwaltungszentrum Moritzhof in der Bahnhofstraße 53 im Zentrum der Forschungs- und Industriestadt Chemnitz.
Die wichtigste Einkaufsstraße ist nur wenige hundert Meter entfernt. Der Moritzhof ist bestens mit dem PKW zu erreichen, eine Station des ÖPNV liegt direkt am Zentrum.
Die Ladenfläche
Kategorie
Laden
Bezug
nach Vereinbarung
Erdgeschoss
Energie & Heizung
Warum sehe ich diese Anzeige? – Du siehst diese Anzeige basierend auf Ihrer Navigation auf unserer Website und den Suchkriterien, die du verwendet hast.
Wärme
Strom
Energieausweistyp
Verbrauchsausweis
Gebäudetyp
Nicht-Wohngebäude
Gültigkeit
bis 26.02.2031
Endenergieverbrauch (Wärme)
71,00 kWh/(m²·a) - Warmwasser enthalten
Endenergieverbrauch (Strom)
36,60 kWh/(m²·a) - Warmwasser enthalten
Details
Objektbeschreibung
Das Bürgerverwaltungszentrum wird mehrheitlich von der Stadt Chemnitz genutzt. Darüber hinaus befinden sich ein Blumengeschäft, ein Frisör und ein Nagelstudio am Standort. Es ist wegen seines hohen Besucheraufkommens und der großen Anzahl städtischer Mitarbeiter für viele Nutzungskonzepte äußerst attraktiv.
Ausstattung
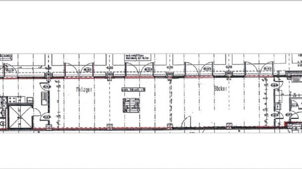
Die Fläche befindet sich im Erdgeschoss des Bürgerverwaltungszentrums mit Ausrichtung zur Hauptstraße. Die Fläche wurde bisher als Bäckerei und Imbiss genutzt und teilt sich in diese zwei Bereiche auf.
Andere Nutzungsmöglichkeiten, abhängig vom Konzept, sind möglich.
- Bodenbelag ist zum Großteil gefliest...
Weitere Informationen
Sonstiges
Der Mietzins kann je nach Laufzeit und Umbauten variieren. Die gewünschte Laufzeit beträgt 5 Jahre. Kürzere Laufzeiten und Optionen sind verhandelbar.
Es besteht die Möglichkeit einen kleinen Kellerraum (ca. 12,30 m²) zusätzlich anzumieten.
Anbieter der Immobilie
Assetando Property Management GmbH
Jakob-Kaiser-Str. 13, 50858 Köln
Online-ID: 2yb2j4r
Finde Angebote wie dieses
Hier geht es zu unserem Impressum, den Allgemeinen Geschäftsbedingungen, den Hinweisen zum Datenschutz und nutzungsbasierter Online-Werbung.