

ZELLMANN IMMOBILIEN GmbH
Herr Christian Zellmann
+43 ···
Nr. anzeigenPreise & Kosten
Kaution
3 Bruttomonatsmieten
Provision für Mieter
3 Bruttomonatsmieten zzgl. 20% USt.
Warum sehe ich diese Anzeige? – Du siehst diese Anzeige basierend auf Ihrer Navigation auf unserer Website und den Suchkriterien, die du verwendet hast.
Lage
Schwarzenbergplatz
Büro-/Praxisfläche
Baujahr
1896
Bezug
sofort
Geschoss
2. Geschoss
Energie & Heizung
Warum sehe ich diese Anzeige? – Du siehst diese Anzeige basierend auf Ihrer Navigation auf unserer Website und den Suchkriterien, die du verwendet hast.
Heizwärmebedarf (HWB)
108,90 kWh/(m²·a)
Gesamtenergieeffizienz (fGEE)
1,41
Weitere Energiedaten
Energieträger
Gas
Heizungsart
Etagenheizung
Details
Objektbeschreibung
ELEGANZ TRIFFT FUNKTION - REPRÄSENTATIVES BÜRO NAHE DEM WIENER SCHWARZENBERGPLATZ
(Miete auch unbefristet möglich)
-------------------------
Diese großzügige, hochwertig modernisierte Altbaufläche vereint klassische Wiener Architektur mit zeitgemäßer Ausstattung auf eindrucksvolle...
Preisinformation
Nettokaltmiete: 2.587,50 EUR
Weitere Informationen
Stichworte
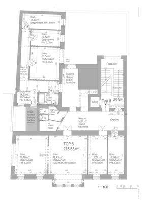
Süd-Balkon/Terrasse, Wohnfläche: 215,62 m², Nutzfläche: 215,62 m², Gesamtfläche: 215,62 m², Anzahl der Badezimmer: 1, Anzahl der separaten WCs: 2, Anzahl Loggias: 1, Balkon-Terrassen-Fläche: 6,00 m², Bundesland: Wien, 5 Etagen, modernisiert: 2020, modernisiert
Sonstiges: EDV-Verkabelung, Kabelkanäle
Anbieter der Immobilie
ZELLMANN IMMOBILIEN GmbH
Stuhlhofergasse 8, 1230 WIEN

Online-ID: 2m53z5j
Referenznummer: OBGC20251202085037120d569984240
Finde Angebote wie dieses
Hier geht es zu unserem Impressum, den Allgemeinen Geschäftsbedingungen, den Hinweisen zum Datenschutz und nutzungsbasierter Online-Werbung.