Version: 8.26.0Navigation überspringen
850 €
124 m² Bürofläche
Immowelt logo

Büro zur Miete
850 €
124 m² Bürofläche

Büro/Ladenlokal in zentraler Lage von Hornberg, heller Raum, barrierefrei, ab sofort zu vermieten

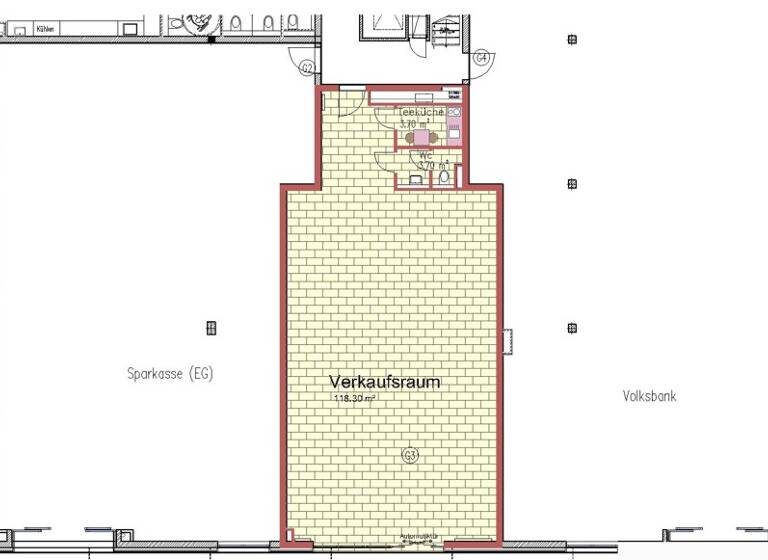
Objektbeschreibung Elegante Gewerbeeinheit im Zentrum von Hornberg. Aufteilung siehe Grundriss. Ein großer Raum, kleine Teeküche und WC.

Merkmale

  • voll erschlossen
  • Personenaufzug
  • Tiefgarage
  • Fenster: Kunststoff
Die Ausstattung/Aufteilung kann nach Absprache mit dem Bauträger zum Teil noch nach Ihren Wünschen erfolgen.

Wir bieten Ihnen außerdem:
-Barrierefreier Hauszugang
-Rundumbetreuung durch einen Hausmeisterservice
-Tiefgaragenstellplätze nach Bedarf
-Und vieles mehr...

Grundrisse

Grundrisse
1 / 3

Bausubstanz und Energie

Energieausweis

Endenergieverbrauch (Wärme)

  • Baujahr2007
  • Zustand der ImmobilieNeubau, Massivhaus
  • HaustypNiedrigenergiehaus
  • HeizungsartZentralheizung
  • EnergieträgerGas
Immowelt logo

Mietkosten

Warmmiete
1.100 €
Nettomiete
850 €
Nebenkosten
250 €
Provision für Mieter
Bitte beachte, das Angebot kann bei Vertragsabschluss die Zahlung einer Provision beinhalten. Weitere Informationen erhältst Du vom Anbieter.
Kaution
2550 €

Lage

address-icon
Hauptstraße 85StadtgebietHornberg (78132)
Attraktive Gewerbeeinheit in bester Innenstadtlage von Hornberg. Banken, Ärzte und ein Café befinden sich bereits im Haus - somit bietet Ihnen das Objekt ideale Voraussetzungen für eine hohe Kundenfrequenz!

Weitere Informationen

Sonstiges Die Gewerbeeinheit befindet sich im EG und ist ab sofort beziehbar.

Mietkonditionen:

EUR 850,-- Kaltmiete
EUR 250,-- Nebenkostenvorauszahlung

EUR 1.100,-- Warmmiete

EUR 2.550,-- Kaution Stichworte Serviceleistungen: Hausmeister

Weitere Services

Lust auf eine Besichtigung?
Eine Frage zur Immobilie?
Mit einer persönlichen Nachricht hast du bessere Chancen auf eine Antwort.
Mit der Nutzung der oben angegebenen Telefonnummer oder durch Klicken auf „Kontaktieren“ akzeptierst Du die Allgemeinen Nutzungsbedingungen, denen Du jederzeit widersprechen kannst. Weitere Informationen zum Datenschutz

Über den Anbieter

St.- Nepomuk-Str. 4, 78048 Villingen-Schwenningen
partner badge
Partnerschaft
Frau Barbara SaierDein Kontakt

Weitere Unterlagen

Online-ID: 247CHSILS6Q2
Referenznummer: 36
Wie zufrieden bist du mit dieser Seite (nicht mit der Immobilie selbst)?